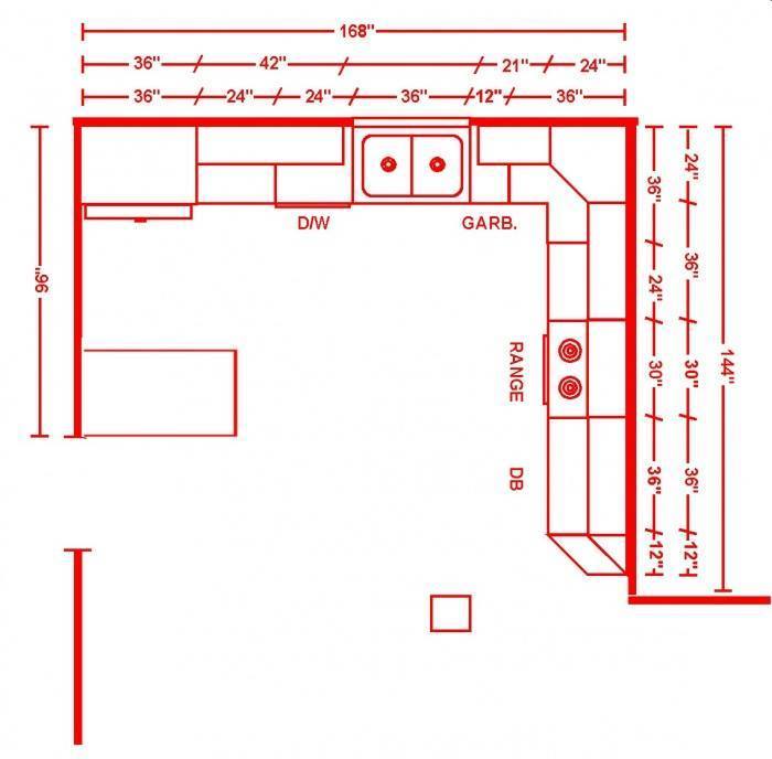
Lưu lại những kích thước cần thiết khi làm bếp
Yếu tố làm nên thành công của một mẫu bếp đẹp không thể không kể đến các thông số chuẩn của chiếc tủ bếp. Điều quan trọng hơn, việc lựa chọn kích thước tủ bếp phù hợp tiêu chuẩn người dùng sẽ góp phần quan trong nên nên những thuận tiện trong việc bếp núc.
Tuy nhiên, trong thiết kế nội thất không phải ai cũng nắm được điều này. Nhằm giúp ae có cách tiếp cận thông tin nhanh nhất về các thông số kích thước tủ bếp tiêu chuẩn và phong thủy nhất cho người Việt, mình đã tổng hợp các thông tin này thành bài viết .
Mời anh em xơi ngon ...
Mời anh em xơi ngon ...






























Phương Đông
thích điều này
2 Bình luận
Hãy đăng nhập để viết bình luận...