Tham gia KIENTRUC để nhận tư vấn mới nhất
Khi đăng kí, tôi thừa nhận và đồng ý với điều khoản sử dụng và chính sách bảo mật của KIENTRUC.com
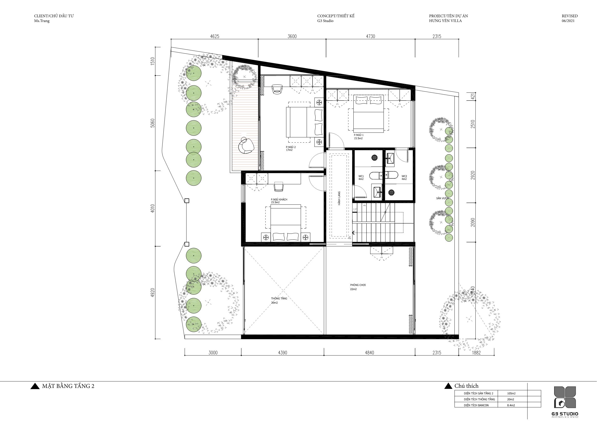
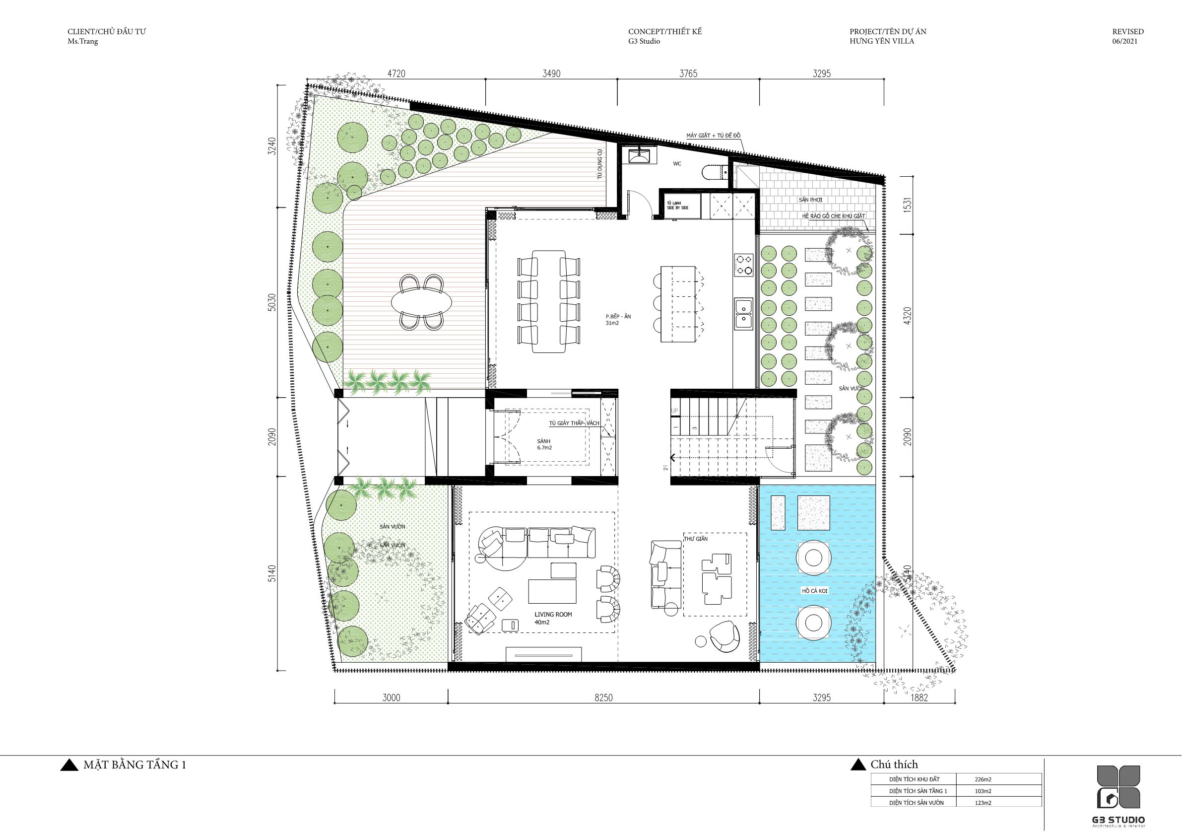
Tvilla - Hưng Yên
















































Kiến trúc sư
Lê Trung Kiên
Hà Nội, Hà Đông
Đã có 3 người đánh giá dự án này
Đánh giá
-
4.73 đánh giá từ chủ nhà
-
00 đánh giá từ chuyên gia