KIENTRUC.com
tạiShowroom
    tạiKiến Trúc Sư
      tạiDự án
        tạiTạp chí
          tạiCộng đồng
            • CHUYÊN GIA
            • DỰ ÁN
            • CỘNG ĐỒNG
            • SẢN PHẨM
            • VIỆC LÀM
            • TRANG CHỦ
            • CHUYÊN GIA
            • DỰ ÁN
            • CỘNG ĐỒNG
            • SẢN PHẨM
            • VIỆC LÀM
            Đăng nhập Đăng ký
            © 2015-2026 KIENTRUC.com jsc.
            All right reserved
            1. Biệt Thự
            2. Chuyên gia

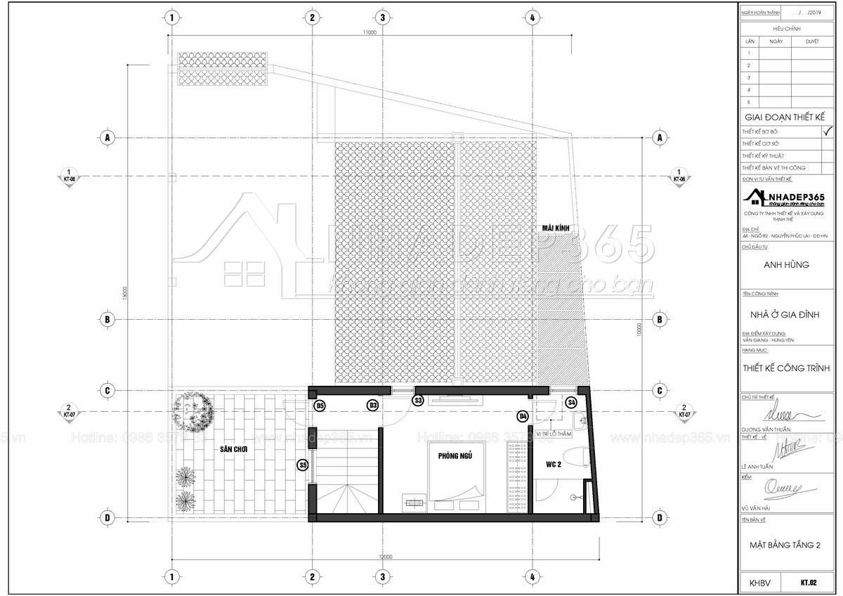
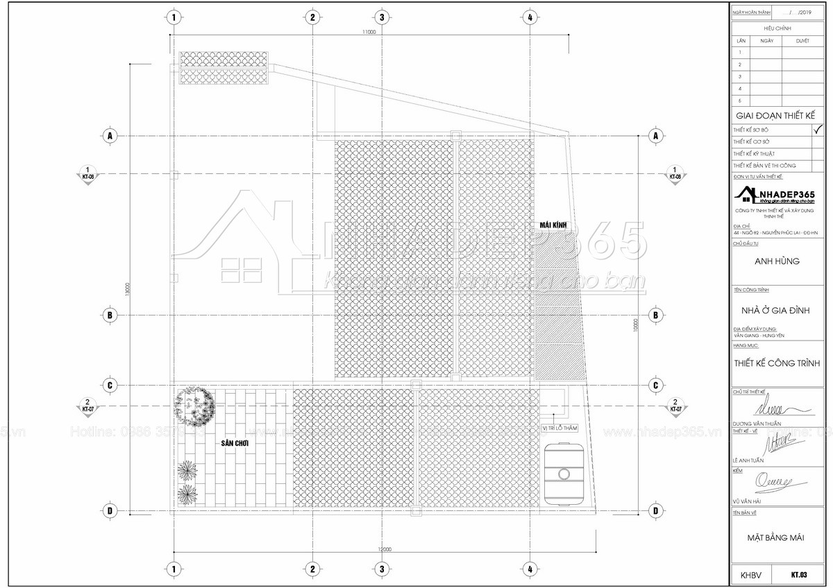
            Thiết Kế Biệt Thự Vườn 2 Tầng Trên Đất 12x13m Văn Giang, Hưng Yên

            no-image
            no-image
            no-image
            no-image
            no-image
            no-image
            no-image

            PROFESSIONAL | DỰ ÁN

            no-image

            Thiết Kế Nhà Phố 4 Tầng Diện Tích 4×16,5m Hiện Đại Tại Bắc Ninh

            1 6
            Nhà Mặt Phố
            no-image

            Thiết Kế Nhà Phố 4 Tầng Diện Tích 3,7×17m Hiện Đại

            0 6
            Nhà Mặt Phố
            no-image

            Nhà Ở 5 Tầng Kết Hợp Văn Phòng Cho Thuê Diện Tích 10×20m

            16 24
            Nhà Mặt Phố
            no-image
            Kiến trúc sư Truong Tran
            Hà Nội, Đống Đa
            Nhóm thiết kế
            • no-image
              Truong Tran Chủ trì thiết kế
            Thông tin dự án
            Thiết Kế Biệt Thự Vườn 2 Tầng Trên Đất 12x13m Văn Giang, Hưng Yên
            • Loại công trình
              Biệt Thự
            • Tầng
              2 tầng
            • Hạng mục
              Ngoại thất
            • Phong cách
              Truyền Thống
            • Trạng thái
              Ảnh 3D
            • Phần mềm
              3D Max
            • Vị trí
              Hưng Yên, Văn Lâm

            Đã có 0 người đánh giá dự án này

            Đánh giá
            • 0
              0 đánh giá từ chủ nhà
            • 0
              0 đánh giá từ chuyên gia
            Xem chi tiết
            Có 0 người đánh giá
            Chia sẻ dự án
            Sản phẩm đề xuất
            no-image

            MÁY LỌC KHÔNG KHÍ Ô TÔ BONECO P50

            2.860.000 Đánh giá 0
            no-image

            Sofa băng da thật FIORE FE19

            0 Đánh giá 0
            no-image

            Ghế ăn ALVA KDC838

            10.400.000 Đánh giá 0
            no-image

            Phễu Thoát Sàn MAGdrain Pc30q3-B

            569.000 Đánh giá 7
            no-image

            Phễu Thoát Sàn Ban Công

            495.000 Đánh giá 0
            Tìm kiếm dự án
            Địa điểm
            Loại công trình
            Hạng mục thiết kế
            Phong cách thiết kế
            Bản vẽ
            Không gian
            Nhận E-book & Tài liệu chuyên môn từ KIENTRUC.com
            Cập nhật xu hướng thiết kế, thư viện vật liệu, chi tiết kỹ thuật và kinh nghiệm triển khai dự án dành cho Kiến trúc sư.
            FOLLOW US

            no-image
            © 2015 - 2026 KIENTRUC.com jsc. All right reserved
            • CHUYÊN GIA
            • DỰ ÁN
            • CỘNG ĐỒNG
            • SẢN PHẨM
            • LIÊN HỆ