KIENTRUC.com
tạiShowroom
    tạiKiến Trúc Sư
      tạiDự án
        tạiTạp chí
          tạiCộng đồng
            • CHUYÊN GIA
            • DỰ ÁN
            • CỘNG ĐỒNG
            • SẢN PHẨM
            • VIỆC LÀM
            • TRANG CHỦ
            • CHUYÊN GIA
            • DỰ ÁN
            • CỘNG ĐỒNG
            • SẢN PHẨM
            • VIỆC LÀM
            Đăng nhập Đăng ký
            © 2015-2026 KIENTRUC.com jsc.
            All right reserved
            1. Biệt Thự
            2. Chuyên gia

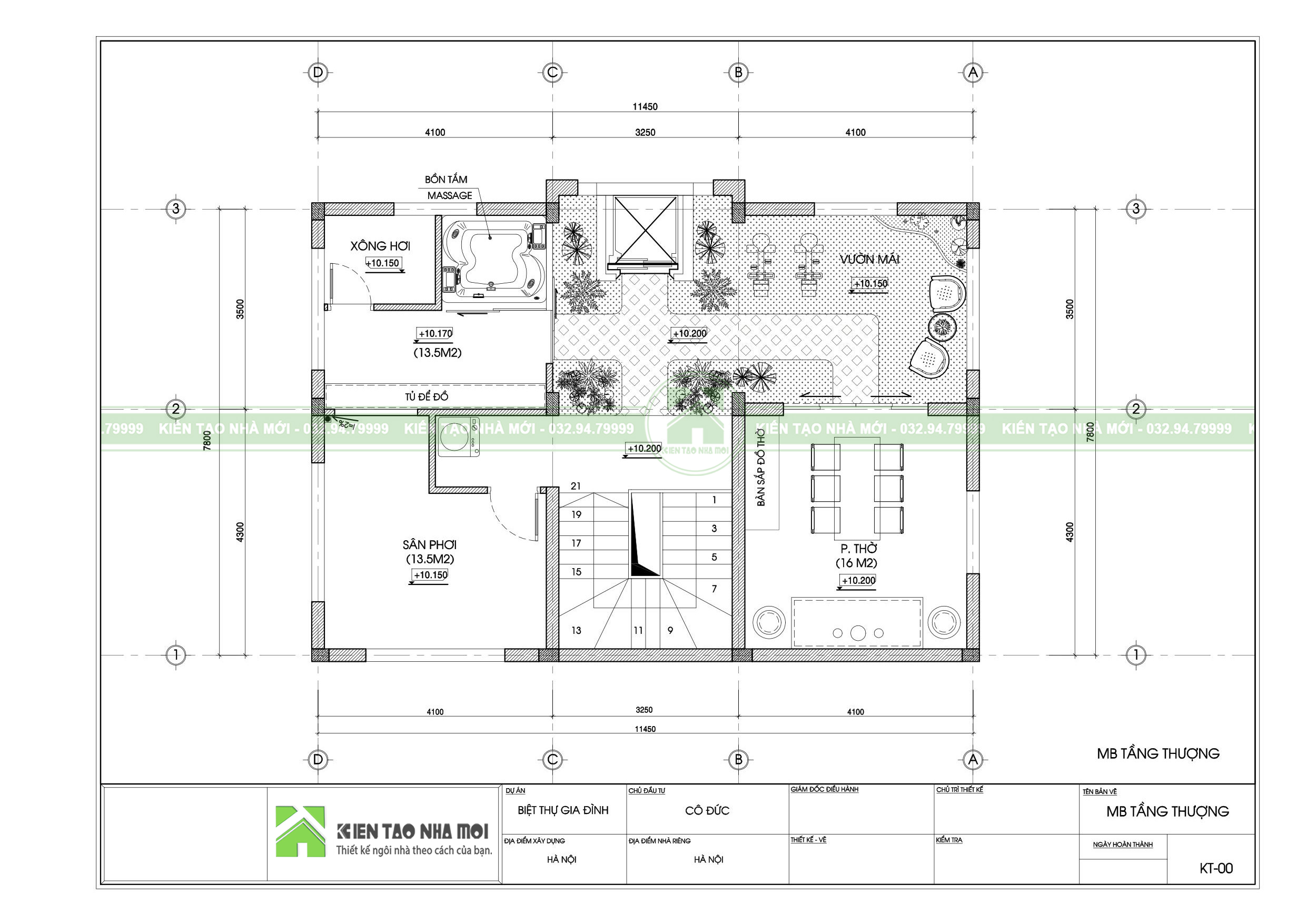
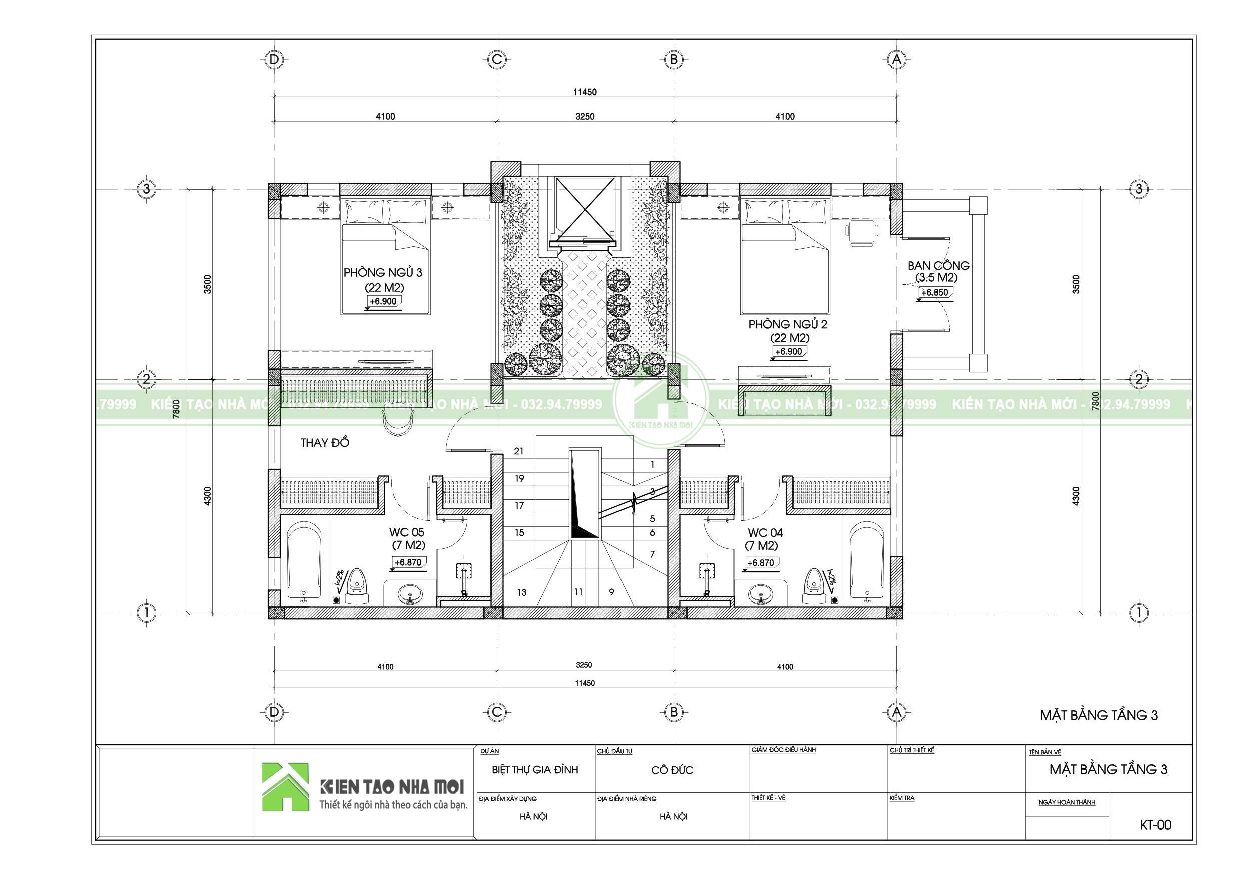
            THIẾT KẾ THI CÔNG BIỆT THỰ 3 TẦNG TÂN CỔ ĐIỂN TẠI KĐT NAM CƯỜNG, CỔ NHUẾ, HÀ NỘI BT1843

            no-image
            no-image
            no-image
            no-image
            no-image
            no-image
            no-image
            no-image
            no-image

            PROFESSIONAL | DỰ ÁN

            no-image

            THIẾT KẾ NỘI THẤT LÂU ĐÀI CỔ ĐIỂN ĐẸP, ẤN TƯỢNG TẠI ĐÀ LẠT NT1857

            3 6
            Biệt Thự
            no-image

            Thiết kế nội thất lâu đài đẳng cấp cổ điển kiểu Pháp, hoa lệ tại Đà Lạt LD1835

            3 6
            Biệt Thự
            no-image

            Thiết kế nội thất nhà ở đẹp, hiện đại tại Phú Thọ

            2 12
            Biệt Thự
            no-image
            Kiến trúc sư Đoàn Mạnh Thắng
            Hà Nội, Thanh Xuân
            Nhóm thiết kế
            • no-image
              Đoàn Mạnh Thắng Chủ trì thiết kế
            Thông tin dự án
            • Loại công trình
              Biệt Thự
            • Hạng mục
              Ngoại thất
            • Phong cách
              Tân Cổ Điển
            • Trạng thái
              Ảnh 3D
            • Tầng
              3 tầng
            • Phần mềm
              3D Max
            • Vị trí
              Hà Nội, Từ Liêm

            Đã có 0 người đánh giá dự án này

            Đánh giá
            • 0
              0 đánh giá từ chủ nhà
            • 0
              0 đánh giá từ chuyên gia
            Xem chi tiết
            Có 0 người đánh giá
            Chia sẻ dự án
            Sản phẩm đề xuất
            no-image

            Sofa băng da thật FIORE FE19

            0 Đánh giá 0
            no-image

            Tủ Ướp Rượu Vang KS54TL/TR

            40.000.000 Đánh giá 0
            no-image

            Máy Làm Sữa Hạt Đa Năng MK-240A

            1.150.000 Đánh giá 0
            no-image

            Sofa băng SOFTY

            0 Đánh giá 0
            no-image

            Phễu Thoát Sàn MAGdrain C21Q6-G

            1.410.000 Đánh giá 4
            Tìm kiếm dự án
            Địa điểm
            Loại công trình
            Hạng mục thiết kế
            Phong cách thiết kế
            Bản vẽ
            Không gian
            Nhận E-book & Tài liệu chuyên môn từ KIENTRUC.com
            Cập nhật xu hướng thiết kế, thư viện vật liệu, chi tiết kỹ thuật và kinh nghiệm triển khai dự án dành cho Kiến trúc sư.
            FOLLOW US

            no-image
            © 2015 - 2026 KIENTRUC.com jsc. All right reserved
            • CHUYÊN GIA
            • DỰ ÁN
            • CỘNG ĐỒNG
            • SẢN PHẨM
            • LIÊN HỆ