Tham gia KIENTRUC để nhận tư vấn mới nhất
Khi đăng kí, tôi thừa nhận và đồng ý với điều khoản sử dụng và chính sách bảo mật của KIENTRUC.com
TD Apartment






PROFESSIONAL | DỰ ÁN
Nhóm thiết kế
-
Le Quang Anh Chủ trì thiết kế
Thông tin dự án
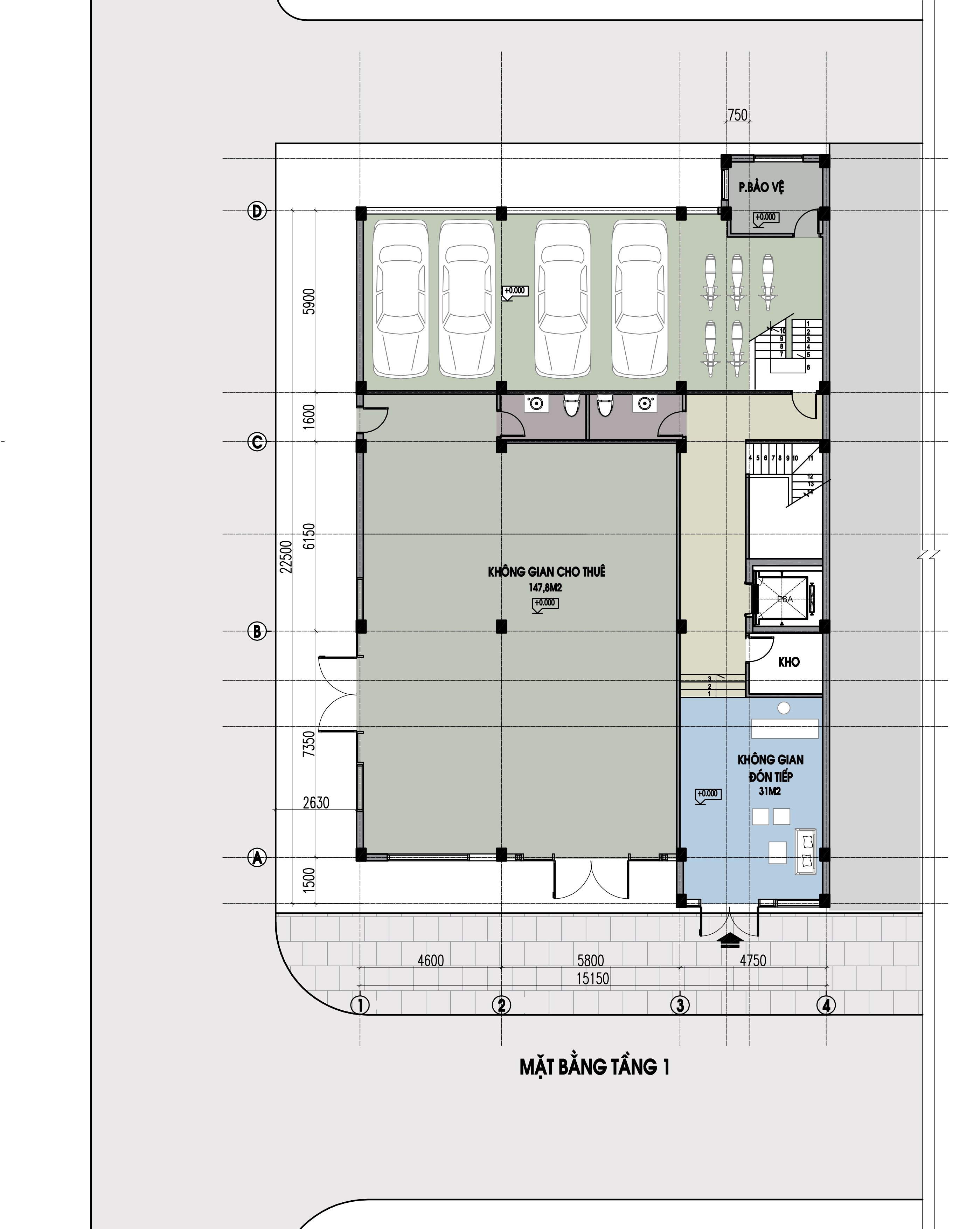
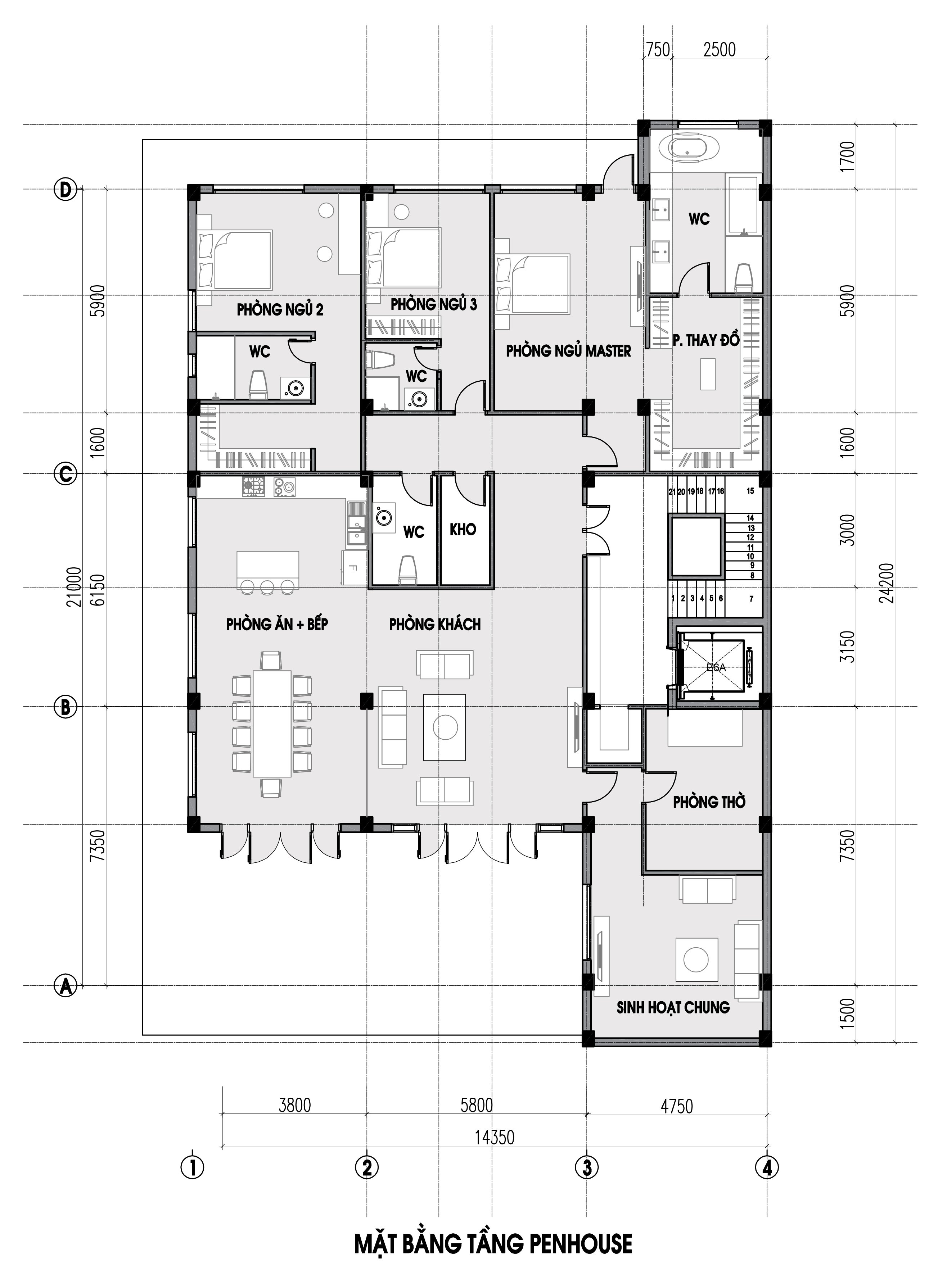
Căn hộ cho thuê cho các chuyên gia nước ngoài ở Hải Phòng
-
Loại công trìnhChung Cư
-
Hạng mụcNgoại thất
-
Phong cáchHiện đại
-
Trạng tháiẢnh 3D
-
Phần mềm3D Max
-
Vị tríHải Phòng, Hải An
Đã có 0 người đánh giá dự án này
Đánh giá
-
00 đánh giá từ chủ nhà
-
00 đánh giá từ chuyên gia
Có 0 người đánh giá
Chia sẻ dự án
Sản phẩm đề xuất