KIENTRUC.com
tạiShowroom
    tạiKiến Trúc Sư
      tạiDự án
        tạiTạp chí
          tạiCộng đồng
            • CHUYÊN GIA
            • DỰ ÁN
            • CỘNG ĐỒNG
            • SẢN PHẨM
            • VIỆC LÀM
            • TRANG CHỦ
            • CHUYÊN GIA
            • DỰ ÁN
            • CỘNG ĐỒNG
            • SẢN PHẨM
            • VIỆC LÀM
            Đăng nhập Đăng ký
            © 2015-2026 KIENTRUC.com jsc.
            All right reserved
            1. Cafe
            2. Chuyên gia

            CHAN Coffee & Tea + House

            no-image
            no-image
            no-image
            no-image
            no-image
            no-image
            no-image
            no-image
            no-image
            no-image
            no-image
            no-image
            no-image
            no-image
            no-image
            no-image

            PROFESSIONAL | DỰ ÁN

            no-image

            MINY COFFEE

            12 22
            Cafe
            no-image

            Thiết kế nội thất K104 Hà Huy Tập - Đà Nẵng

            18 21
            Nhà Mặt Phố
            no-image

            Cải tạo nội thất LyLy House

            15 22
            Nhà
            no-image
            Kiến trúc sư Doãn Trung Dũng
            Đà Nẵng, Sơn Trà
            Nhóm thiết kế
            • no-image
              Doãn Trung Dũng Chủ trì thiết kế
            Thông tin dự án
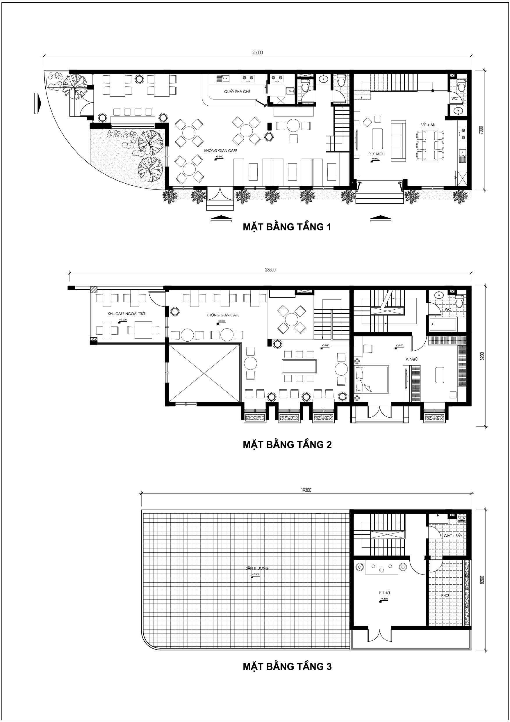
            Đây là một công trình mà được hoàn thành cuối năm 2019 tương đối phức tạp, với yêu cầu phải lồng ghép 3 chức năng kinh doanh Cafe & Trà + Nhà ở tách biệt + Căn hộ cho thuê (trong tương lai) trong 1 công trình.
            • Loại công trình
              Cafe
            • Hạng mục
              Kiến trúc & nội thất
            • Phong cách
              Hiện đại
            • Trạng thái
              Ảnh Hoàn Thiện
            • Vị trí
              Đà Nẵng, Liên Chiểu

            Đã có 2 người đánh giá dự án này

            Đánh giá
            • 5
              2 đánh giá từ chủ nhà
            • 0
              0 đánh giá từ chuyên gia
            Xem chi tiết
            Có 2 người đánh giá
            Chia sẻ dự án
            Sản phẩm đề xuất
            no-image

            Máy Lọc Không Khí Để Bàn KZ120G-A01

            2.460.000 Đánh giá 7
            no-image

            Kệ gia vị đa năng kèm 2 ống đũa, móc treo Moen - KAC0104SL

            2.080.000 Đánh giá 4
            no-image

            Phễu Thoát Sàn Dài MAGdrain JXC600Q6-B

            3.959.000 Đánh giá 0
            no-image

            Ghế ăn ALVA KDC838

            10.400.000 Đánh giá 0
            no-image

            QUẠT ĐỐI LƯU CAO CẤP THỤY SĨ BONECO F235

            12.900.000 Đánh giá 0
            Tìm kiếm dự án
            Địa điểm
            Loại công trình
            Hạng mục thiết kế
            Phong cách thiết kế
            Bản vẽ
            Không gian
            Nhận E-book & Tài liệu chuyên môn từ KIENTRUC.com
            Cập nhật xu hướng thiết kế, thư viện vật liệu, chi tiết kỹ thuật và kinh nghiệm triển khai dự án dành cho Kiến trúc sư.
            FOLLOW US

            no-image
            © 2015 - 2026 KIENTRUC.com jsc. All right reserved
            • CHUYÊN GIA
            • DỰ ÁN
            • CỘNG ĐỒNG
            • SẢN PHẨM
            • LIÊN HỆ