Tham gia KIENTRUC để nhận tư vấn mới nhất
                Khi đăng kí, tôi thừa nhận và đồng ý với điều khoản sử dụng và chính sách bảo mật của KIENTRUC.com
            
            
            
            
        CF Kết Hợp Nhà Ở
 
                 
                 
                 
                 
                 
                 
                 
                 
                 
                 
                 
                 
                 
                 
                 
                 
                 
                 
                 
                 
                 
                 
                 
                 
                 
                 
                 
                 
                 
                 
                 
                 
                 
                 
                 
                 
                 
                 
                 
                 
                 
                 
                PROFESSIONAL | DỰ ÁN
                Nhóm thiết kế
                
            
            - 
                                 Nguyễn Thành Nam Chủ trì thiết kế Nguyễn Thành Nam Chủ trì thiết kế
                Thông tin dự án
            
            
            - 
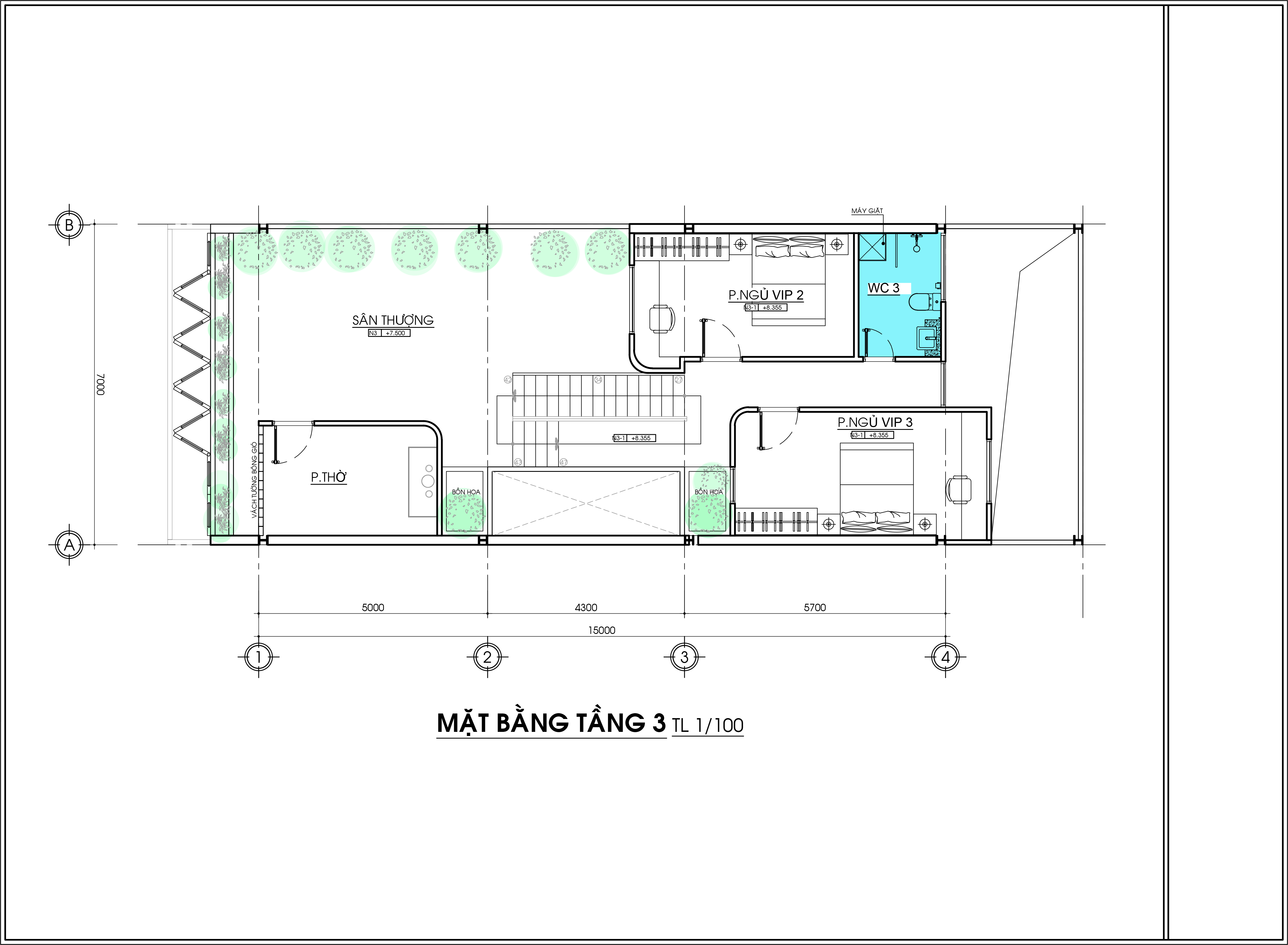
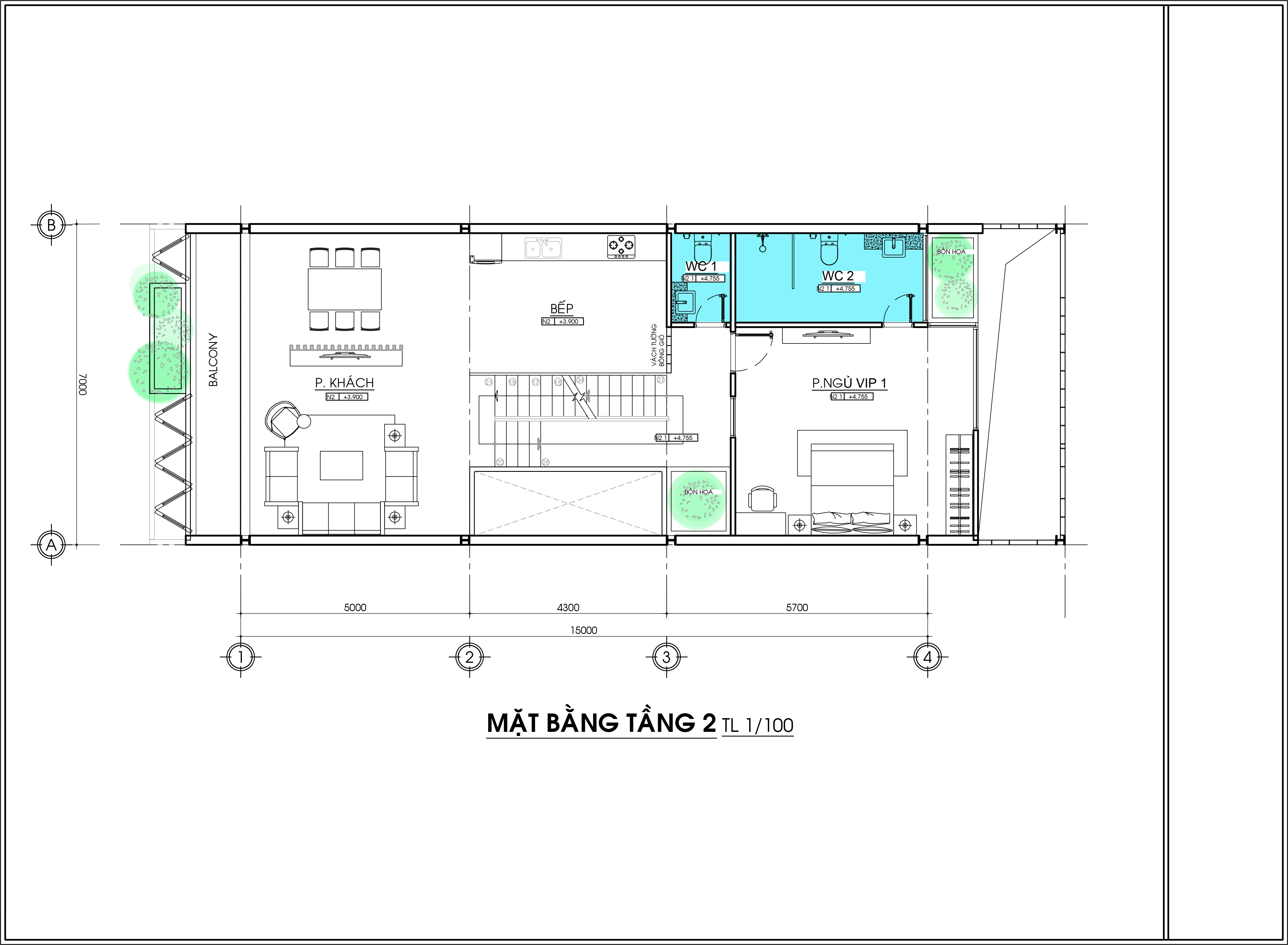
                        Loại công trìnhNhà
- 
                        Hạng mụcKiến trúc & nội thất
- 
                        Phong cáchHiện đại
- 
                        Trạng tháiẢnh 3D
- 
                        Phần mềmSketchUp
- 
                        Vị tríBình Dương, Thuận An
Đã có 0 người đánh giá dự án này
        
            Đánh giá
        
    
    - 
            00 đánh giá từ chủ nhà
- 
            00 đánh giá từ chuyên gia
Có 0 người đánh giá
            
        
                Chia sẻ dự án
            
            
                Sản phẩm đề xuất
            
             
                                         
                                         
                                         
                     
                                         
                                         
                                         
                                        