KIENTRUC.com
tạiShowroom
    tạiKiến Trúc Sư
      tạiDự án
        tạiTạp chí
          tạiCộng đồng
            • CHUYÊN GIA
            • DỰ ÁN
            • CỘNG ĐỒNG
            • SẢN PHẨM
            • VIỆC LÀM
            • TRANG CHỦ
            • CHUYÊN GIA
            • DỰ ÁN
            • CỘNG ĐỒNG
            • SẢN PHẨM
            • VIỆC LÀM
            Đăng nhập Đăng ký
            © 2015-2026 KIENTRUC.com jsc.
            All right reserved
            1. Nhà Mặt Phố
            2. Chuyên gia

            B_House

            no-image
            no-image
            no-image
            no-image
            no-image
            no-image
            no-image
            no-image

            PROFESSIONAL | DỰ ÁN

            no-image

            T'bb House

            1 6
            Cafe
            no-image

            P'i House

            1 8
            Nhà Mặt Phố
            no-image

            TD House

            3 6
            Nhà Mặt Phố
            no-image
            Kiến trúc sư Nguyễn Thành Nam
            Bình Dương, Thủ Dầu Một
            Nhóm thiết kế
            • no-image
              Nguyễn Thành Nam Chủ trì thiết kế
            Thông tin dự án
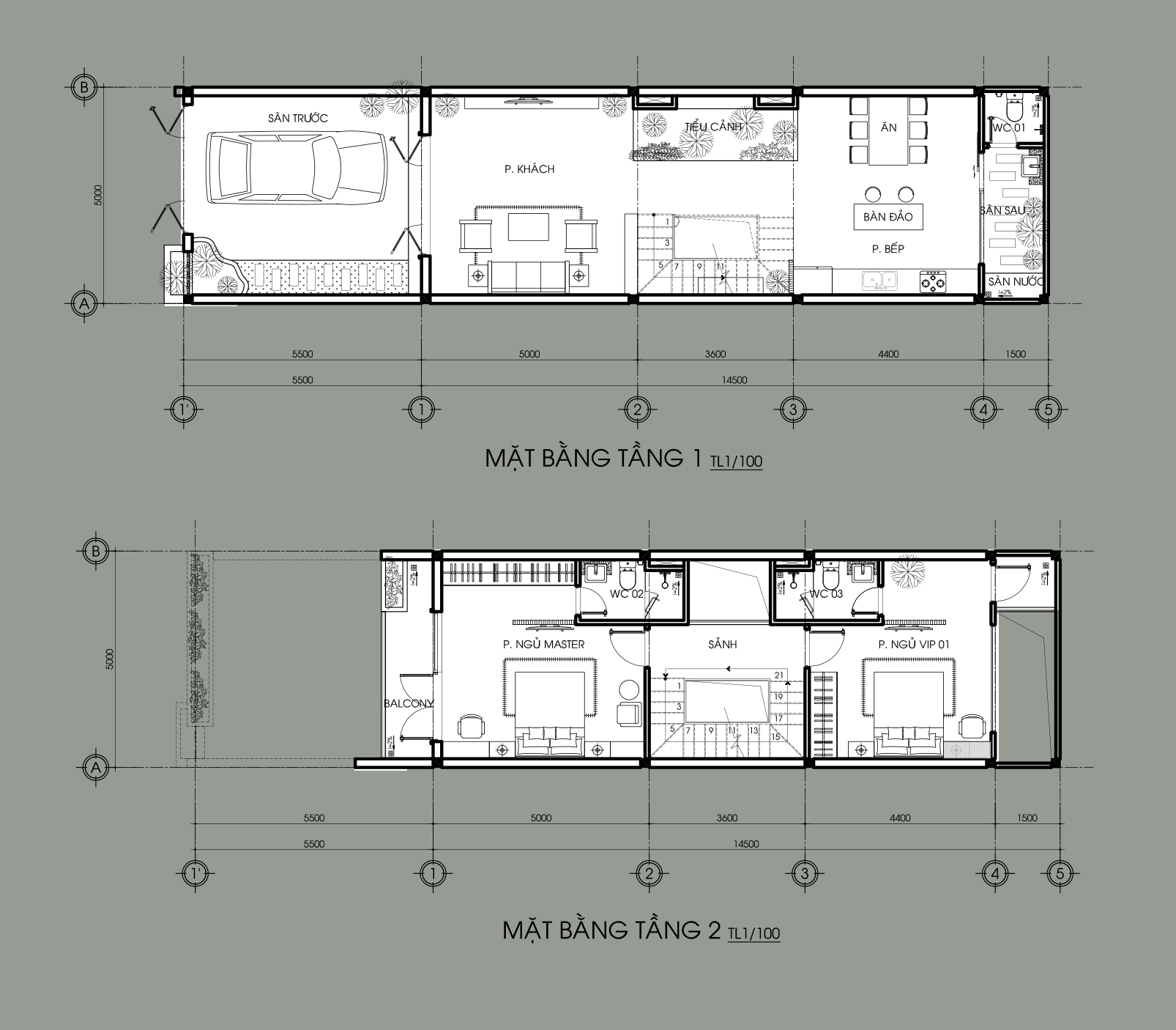
            • Loại công trình
              Nhà Mặt Phố
            • Tầng
              4 tầng
            • Hạng mục
              Ngoại thất
            • Phong cách
              Hiện đại
            • Trạng thái
              Ảnh 3D
            • Phần mềm
              Lumion
            • Vị trí
              Bình Dương, Thuận An

            Đã có 0 người đánh giá dự án này

            Đánh giá
            • 0
              0 đánh giá từ chủ nhà
            • 0
              0 đánh giá từ chuyên gia
            Xem chi tiết
            Có 0 người đánh giá
            Chia sẻ dự án
            Sản phẩm đề xuất
            no-image

            MÁY LỌC KHÍ, KHỬ MÙI BONECO P500

            21.000.000 Đánh giá 0
            no-image

            Ghế ăn JEESE KDC830

            9.300.000 Đánh giá 0
            no-image

            Sofa băng da thật KINGDOM E052

            0 Đánh giá 0
            no-image

            Tủ Ướp Rượu Vang KS54TL/TR

            40.000.000 Đánh giá 0
            no-image

            Sofa băng da thật CANALETTO 3422

            0 Đánh giá 0
            Tìm kiếm dự án
            Địa điểm
            Loại công trình
            Hạng mục thiết kế
            Phong cách thiết kế
            Bản vẽ
            Không gian
            Nhận E-book & Tài liệu chuyên môn từ KIENTRUC.com
            Cập nhật xu hướng thiết kế, thư viện vật liệu, chi tiết kỹ thuật và kinh nghiệm triển khai dự án dành cho Kiến trúc sư.
            FOLLOW US

            no-image
            © 2015 - 2026 KIENTRUC.com jsc. All right reserved
            • CHUYÊN GIA
            • DỰ ÁN
            • CỘNG ĐỒNG
            • SẢN PHẨM
            • LIÊN HỆ