Tham gia KIENTRUC để nhận tư vấn mới nhất
Khi đăng kí, tôi thừa nhận và đồng ý với điều khoản sử dụng và chính sách bảo mật của KIENTRUC.com
Kien' House






PROFESSIONAL | DỰ ÁN
Nhóm thiết kế
-
Lê thành chung Chủ trì thiết kế
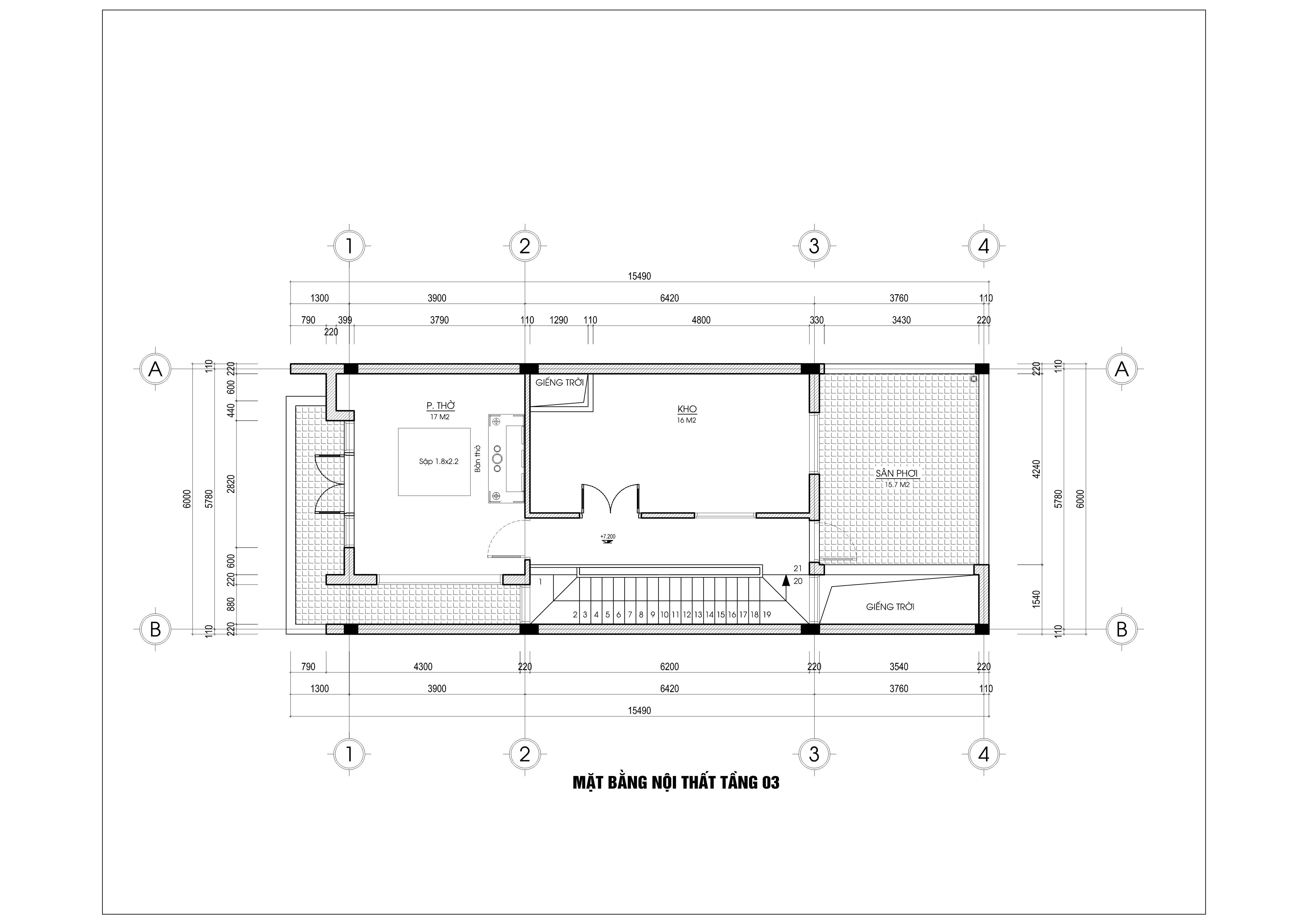
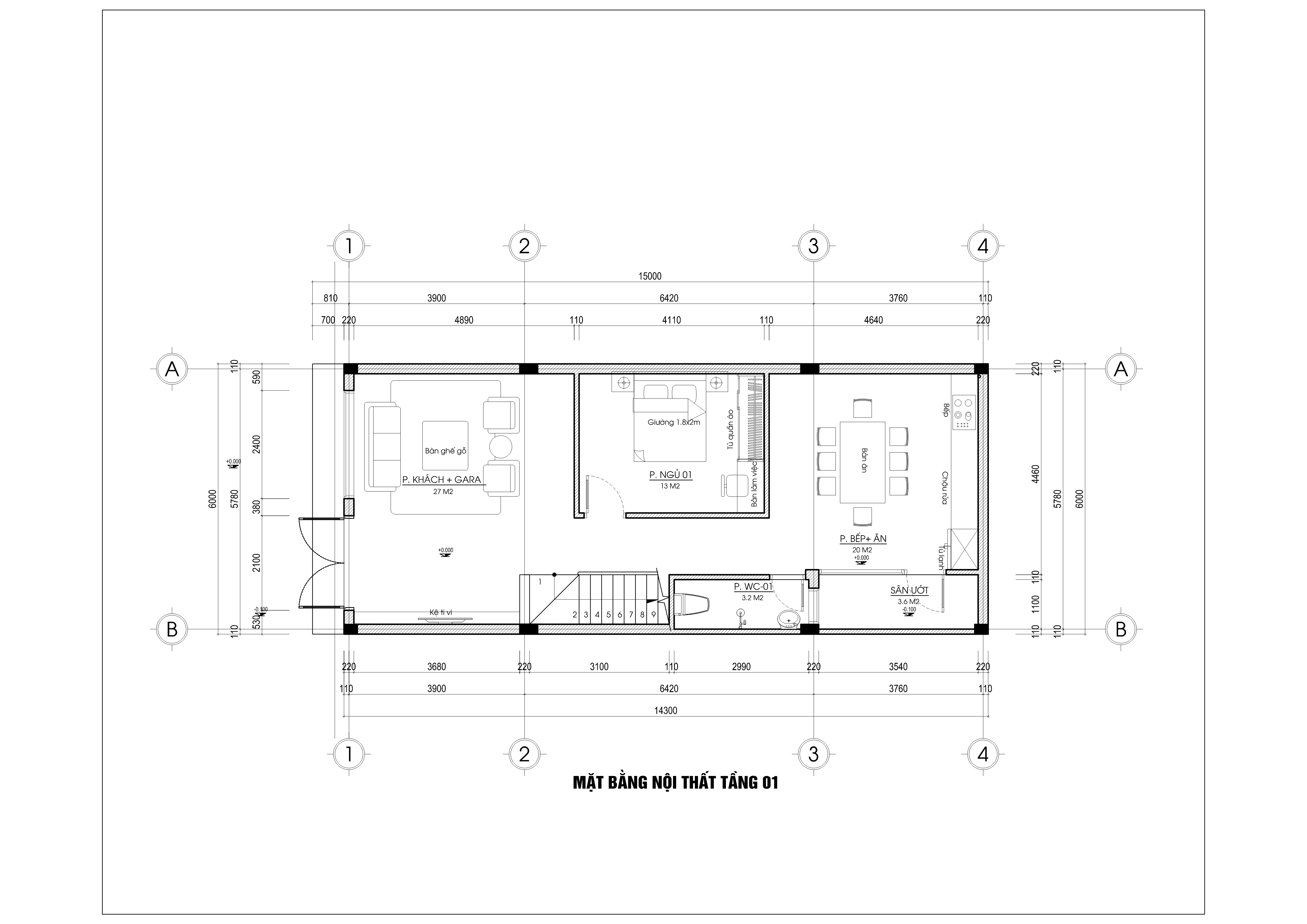
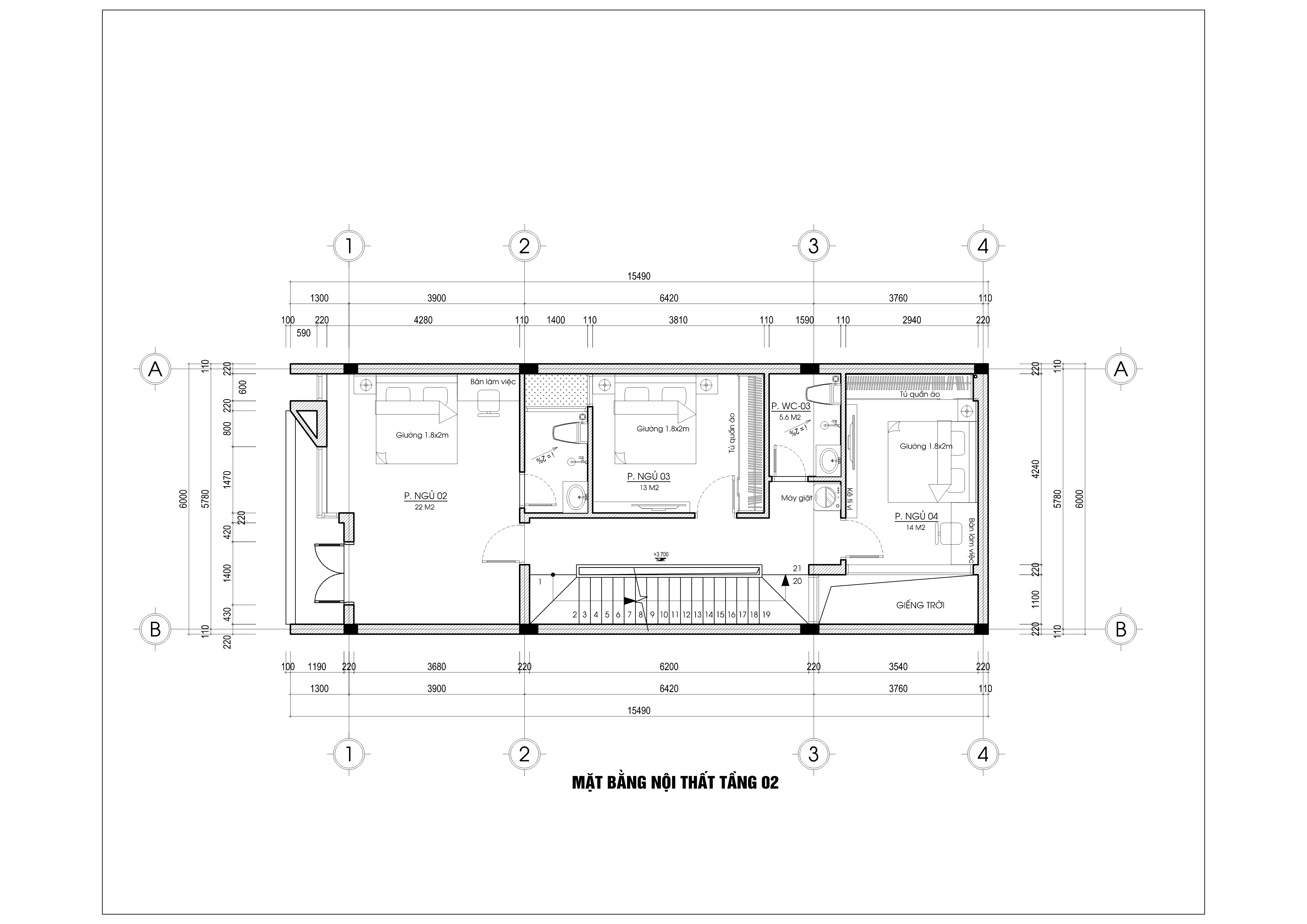
Thông tin dự án
Chủ nhà đã tìm đến chúng tôi với nhiều tâm sự và mong muốn có một ngôi nhà ở cho 3 thế hệ mà không gian vẫn rộng rãi và nhiều ánh sáng. Nắm bắt được nhu cầu đó chung tôi đã tối ưu hoá không gian với không gian mở vách kính lớn, bên trong nhà có khoảng giếng trời lớn lấy sáng lấy gió và không khí cho ngôi
-
Loại công trìnhNhà Mặt Phố
-
Tầng3 tầng
-
Hạng mụcNgoại thất
-
Phong cáchHiện đại
-
Trạng tháiẢnh 3D
-
Phần mềm3D Max
-
Vị tríPhú Thọ, Việt Trì
Đã có 0 người đánh giá dự án này
Đánh giá
-
00 đánh giá từ chủ nhà
-
00 đánh giá từ chuyên gia
Có 0 người đánh giá
Chia sẻ dự án
Sản phẩm đề xuất