Tham gia KIENTRUC để nhận tư vấn mới nhất
Khi đăng kí, tôi thừa nhận và đồng ý với điều khoản sử dụng và chính sách bảo mật của KIENTRUC.com
Nhà dân






PROFESSIONAL | DỰ ÁN
Nhóm thiết kế
-
Nguyễn Ngọc Hưng Chủ trì thiết kế
Thông tin dự án
-
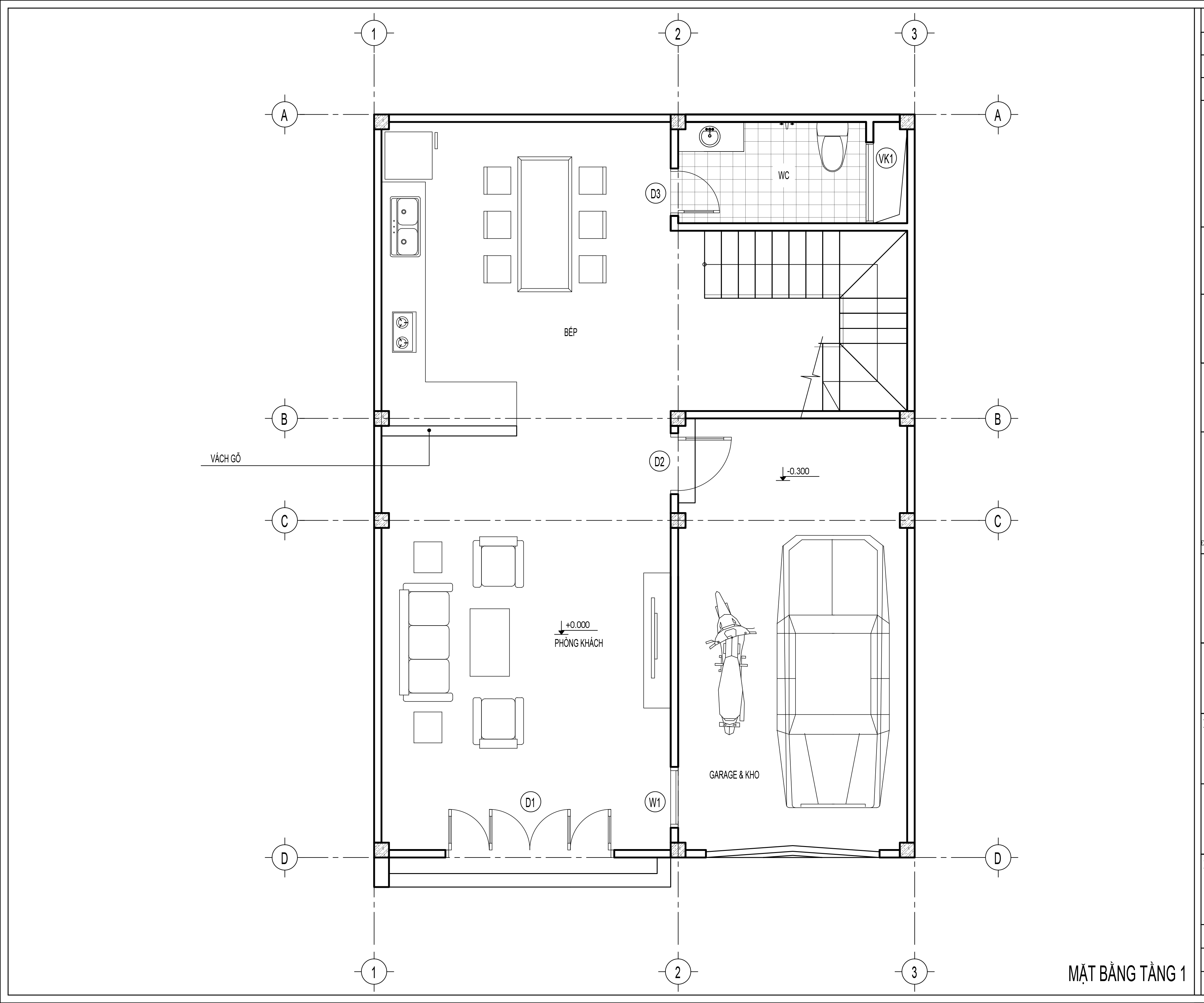
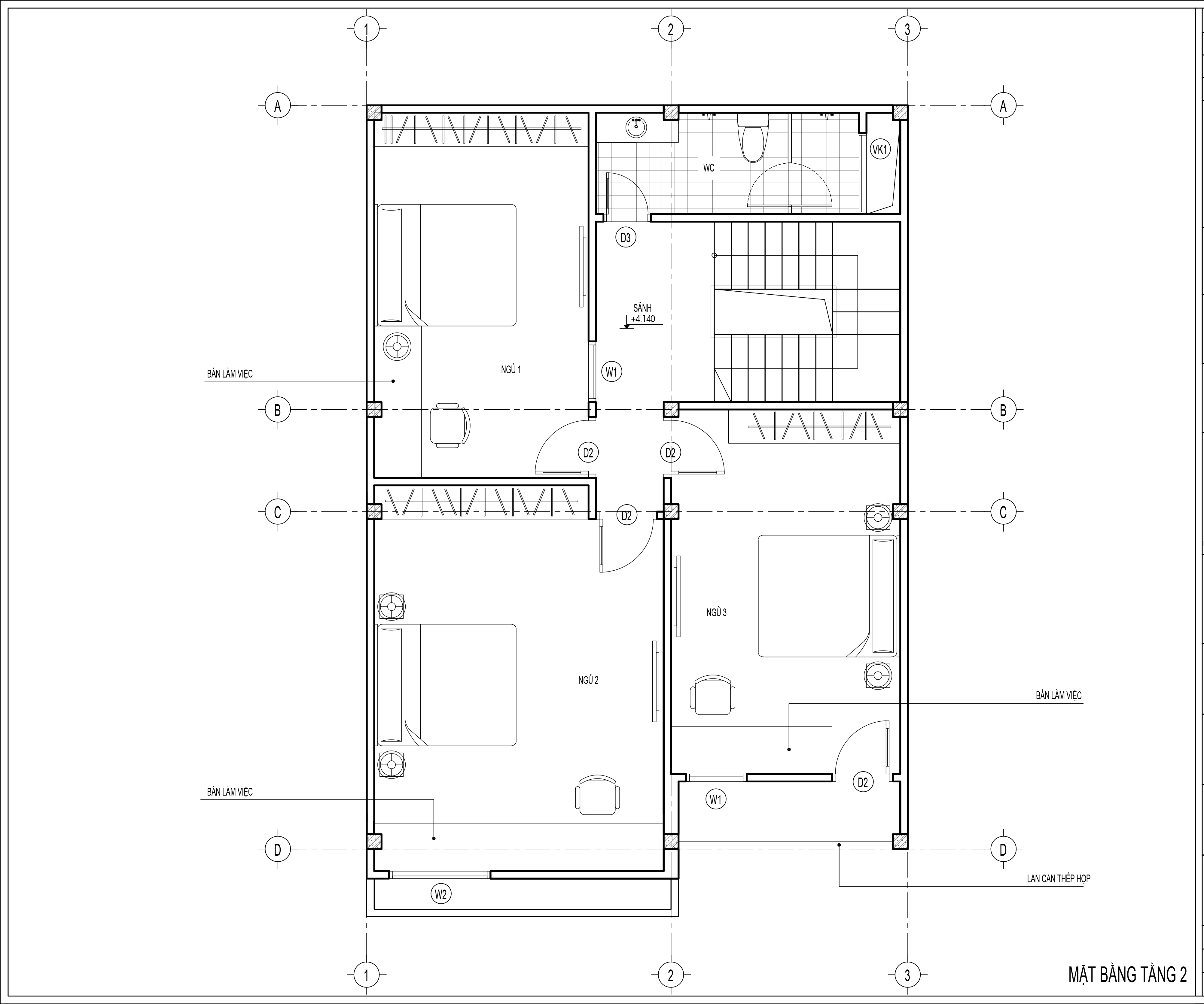
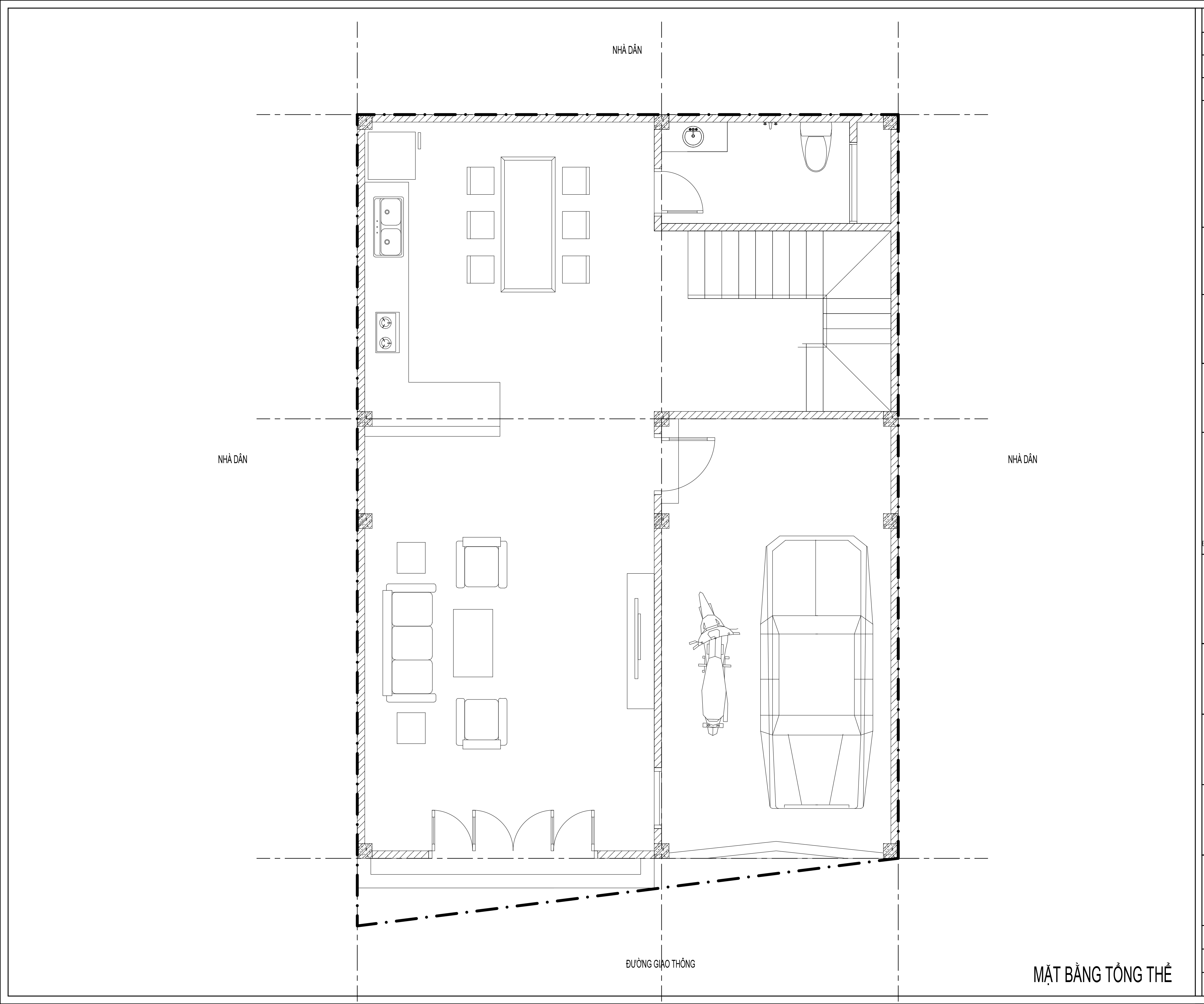
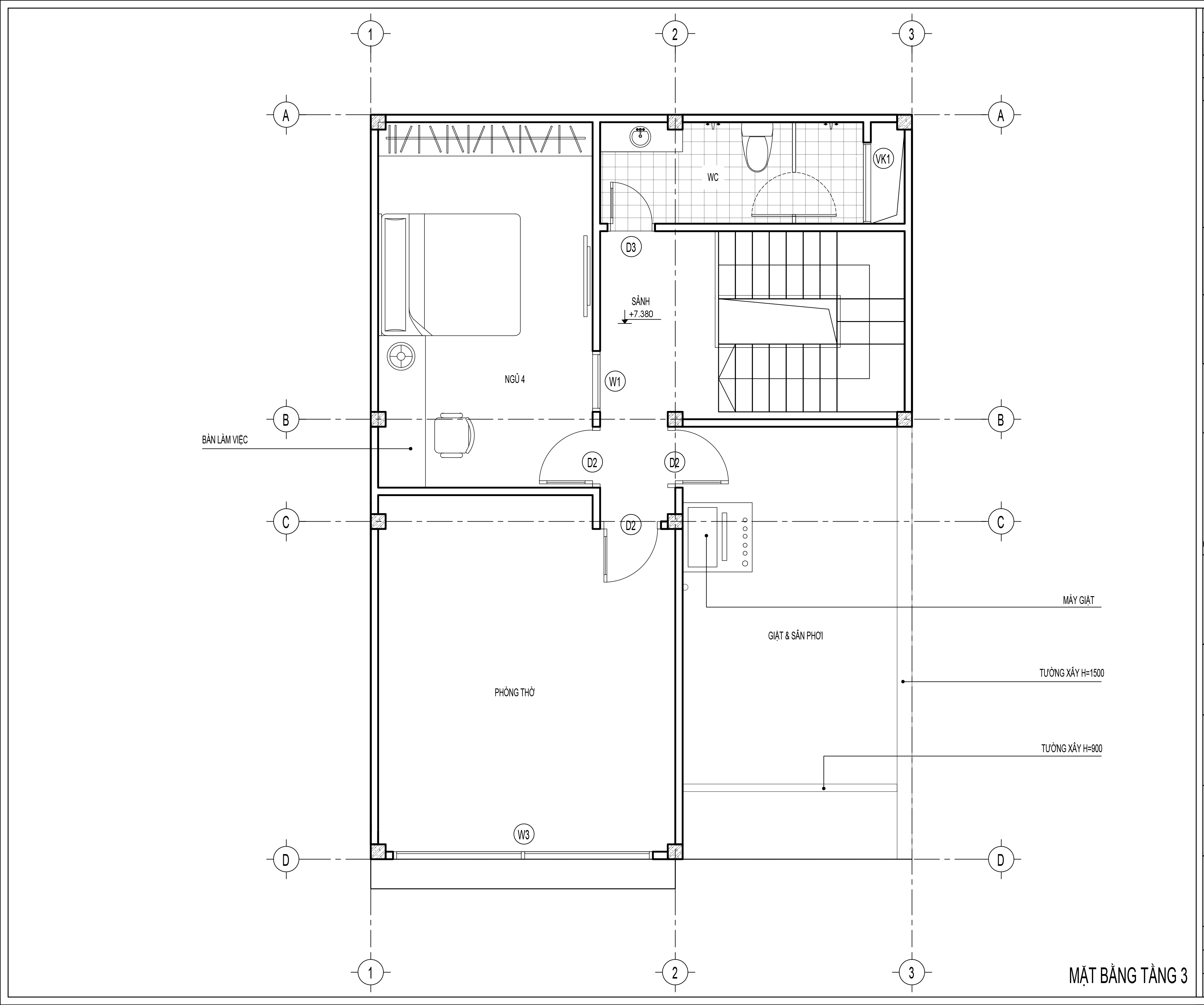
Loại công trìnhNhà Mặt Phố
-
Tầng3 tầng
-
Hạng mụcNgoại thất
-
Phong cáchTối Giản
-
Trạng tháiẢnh 3D
-
Phần mềm3D Max
-
Vị tríHà Nội, Đông Anh
Đã có 1 người đánh giá dự án này
Đánh giá
-
41 đánh giá từ chủ nhà
-
00 đánh giá từ chuyên gia
Có 1 người đánh giá
Chia sẻ dự án
Sản phẩm đề xuất