KIENTRUC.com
tạiShowroom
    tạiKiến Trúc Sư
      tạiDự án
        tạiTạp chí
          tạiCộng đồng
            • TRANG CHỦ
            • CHUYÊN GIA
            • DỰ ÁN
            • CỘNG ĐỒNG
            • MARKETING PLACE
            • VIỆC LÀM
            • TRANG CHỦ
            • CHUYÊN GIA
            • DỰ ÁN
            • CỘNG ĐỒNG
            • MARKETING PLACE
            • VIỆC LÀM
            Đăng nhập Đăng ký
            © 2015-2026 KIENTRUC.com jsc.
            All right reserved
            1. Chung Cư
            2. Chuyên gia

            Đẹp lạ với mẫu thiết kế nội thất chung cư cho gia chủ mệnh Thủy

            no-image
            no-image
            no-image
            no-image
            no-image
            no-image
            no-image
            no-image
            no-image

            PROFESSIONAL | DỰ ÁN

            no-image

            Thiết kế nội thất căn hộ chung cư N05 Hoàng Đạo Thuý phong cách Hiện Đại

            1 8
            Chung Cư
            no-image

            Chất phát ngất với thiết kế nội thất căn hộ chung cư Time City Tân cổ điển

            31 6
            Chung Cư
            no-image

            Thiết kế nội thất căn hộ 2 phòng ngủ 55m2 Vinhomes Smart City

            38 6
            Chung Cư
            no-image
            Kiến trúc sư Minh Tuấn Arhome
            Hà Nội, Hà Đông
            Nhóm thiết kế
            • no-image
              Minh Tuấn Arhome Chủ trì thiết kế
            Thông tin dự án
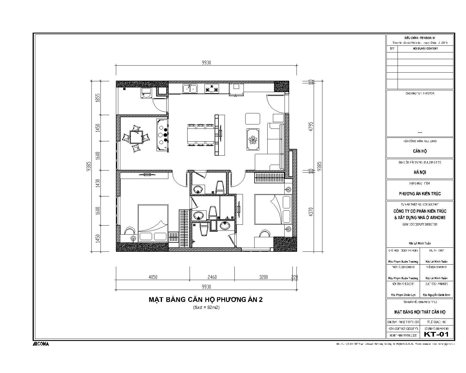
            Gia chủ sinh Đinh Mùi 1967 mệnh thủy khá dễ chọn đồ nội thất cho căn hộ chung cư của mình do thủy có hoạt tính mạnh át chế được các mệnh khác. Tuy nhiên để gia tăng tài lộc và sức khỏe thì chọn đúng màu sắc tương sinh hợp mệnh sẽ tốt hơn rất nhiều. Vậy làm sao có thể sử dụng tông màu đen hợp mệnh thủy trong thiết kế nội thất chung cư sao cho phù hợp và độc đáo, hãy cùng Arhome khám phá thiết kế nội thất căn hộ Eurowindow đầy mạnh mẽ, khác biệt với tông đen huyền bí này nhé!
            • Loại công trình
              Chung Cư
            • Hạng mục
              Nội thất
            • Phong cách
              Hiện đại
            • Trạng thái
              Ảnh 3D
            • Phần mềm
              3D Max
            • Vị trí
              Hà Nội, Đông Anh

            Đã có 1 người đánh giá dự án này

            Đánh giá
            • 5
              1 đánh giá từ chủ nhà
            • 0
              0 đánh giá từ chuyên gia
            Xem chi tiết
            Có 1 người đánh giá
            Chia sẻ dự án
            Sản phẩm đề xuất
            no-image

            Phễu Thoát Sàn MAGdrain PC30Q3-B

            599.000 Đánh giá 14
            no-image

            Máy Khoan Pin

            680.000 Đánh giá 0
            no-image

            Ghế ăn KOR KDC828

            9.300.000 Đánh giá 0
            no-image

            Ghế ăn OLÉ 11620

            27.500.000 Đánh giá 0
            no-image

            Máy Lọc Không Khí Để Bàn KZ120G-A01

            2.460.000 Đánh giá 7
            Tìm kiếm dự án
            Địa điểm
            Loại công trình
            Hạng mục thiết kế
            Phong cách thiết kế
            Bản vẽ
            Không gian
            Nhận E-book & Tài liệu chuyên môn từ KIENTRUC.com
            Cập nhật xu hướng thiết kế, thư viện vật liệu, chi tiết kỹ thuật và kinh nghiệm triển khai dự án dành cho Kiến trúc sư.
            FOLLOW US

            no-image
            © 2015 - 2026 KIENTRUC.com jsc. All right reserved
            • CHUYÊN GIA
            • DỰ ÁN
            • CỘNG ĐỒNG
            • SẢN PHẨM
            • LIÊN HỆ