KIENTRUC.com
tạiShowroom
    tạiKiến Trúc Sư
      tạiDự án
        tạiTạp chí
          tạiCộng đồng
            • CHUYÊN GIA
            • DỰ ÁN
            • CỘNG ĐỒNG
            • SẢN PHẨM
            • VIỆC LÀM
            • TRANG CHỦ
            • CHUYÊN GIA
            • DỰ ÁN
            • CỘNG ĐỒNG
            • SẢN PHẨM
            • VIỆC LÀM
            Đăng nhập Đăng ký
            © 2015-2026 KIENTRUC.com jsc.
            All right reserved
            1. Chung Cư
            2. Chuyên gia

            nha ở anh Lâm

            no-image
            no-image
            no-image
            no-image
            no-image
            no-image
            no-image
            no-image

            PROFESSIONAL | DỰ ÁN

            no-image

            nhà ở anh Tý

            16 7
            Biệt Thự
            no-image

            BIỆT THỰ TÂN CỔ ĐIỂN

            46 11
            Biệt Thự
            no-image

            nhà ở anh Toàn

            56 10
            Nhà
            no-image
            Kiến trúc sư Đặng Quốc Khôi
            Lâm Đồng, Đà Lạt
            Nhóm thiết kế
            • no-image
              Đặng Quốc Khôi Chủ trì thiết kế
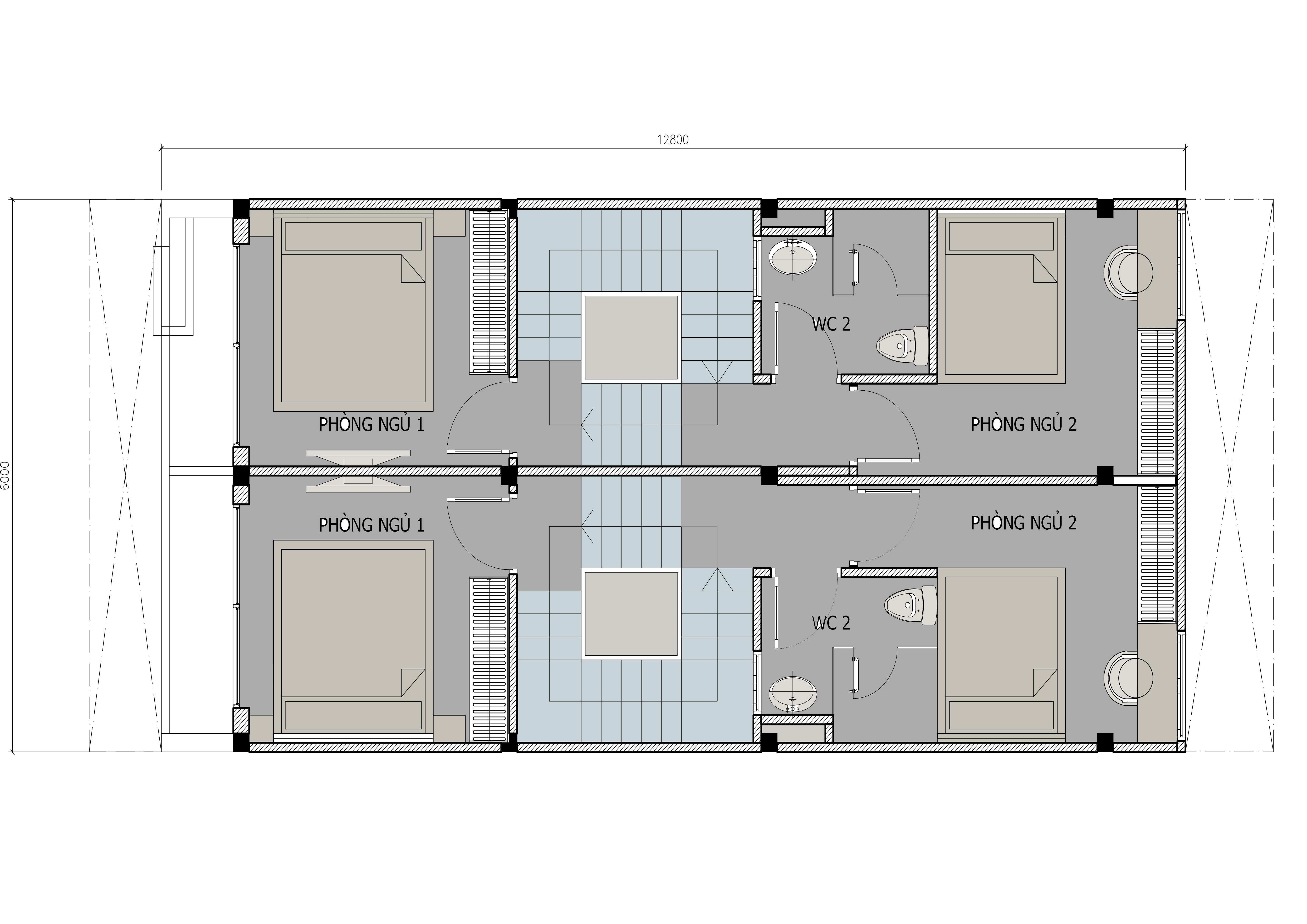
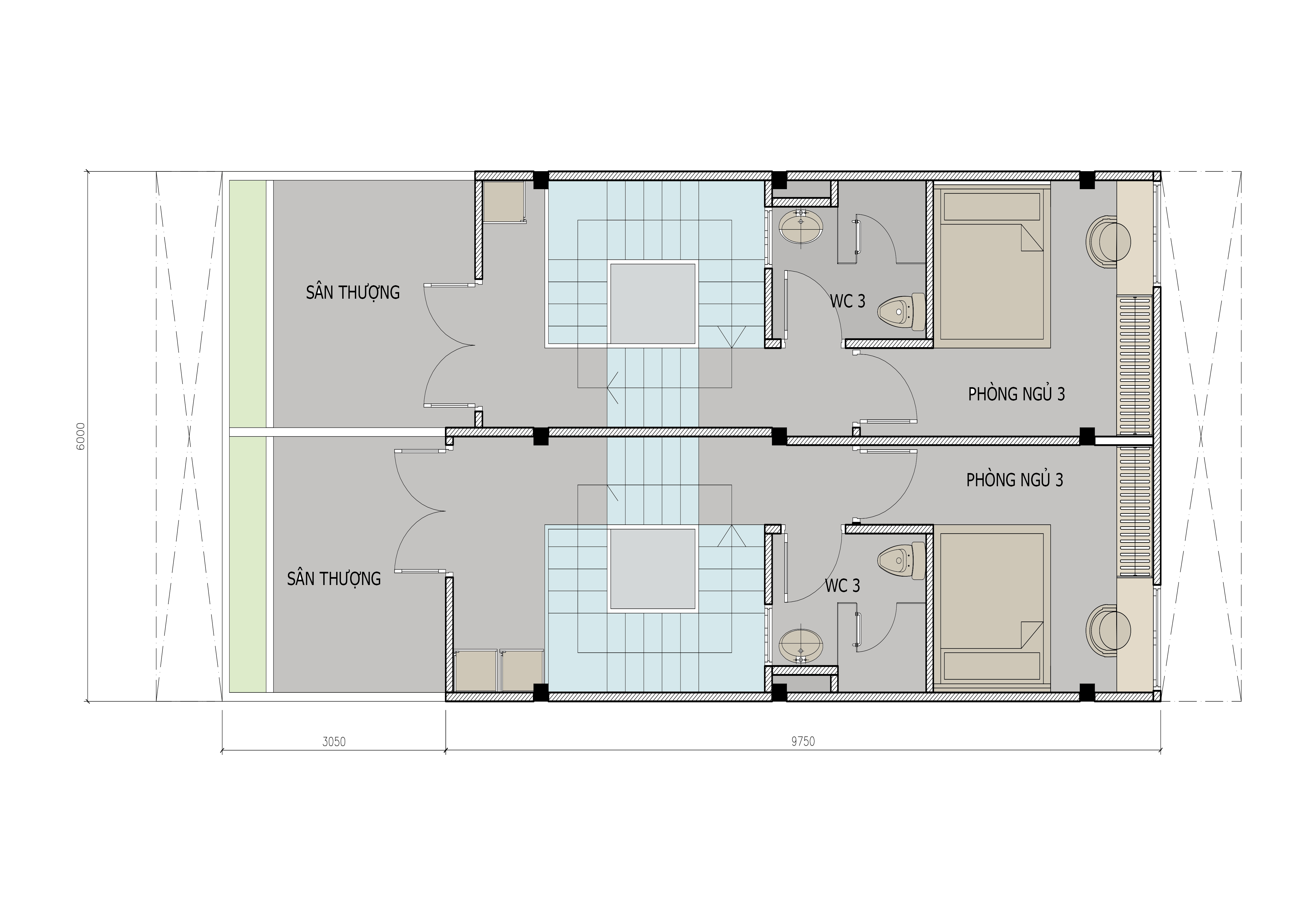
            Thông tin dự án
            • Loại công trình
              Chung Cư
            • Hạng mục
              Nội thất
            • Phong cách
              Hiện đại
            • Trạng thái
              Ảnh 3D
            • Phần mềm
              3D Max
            • Vị trí
              Lâm Đồng, Đà Lạt

            Đã có 0 người đánh giá dự án này

            Đánh giá
            • 0
              0 đánh giá từ chủ nhà
            • 0
              0 đánh giá từ chuyên gia
            Xem chi tiết
            Có 0 người đánh giá
            Chia sẻ dự án
            Sản phẩm đề xuất
            no-image

            Ghế ăn KENNEDY KDC604

            5.800.000 Đánh giá 0
            no-image

            Phễu Thoát Sàn MAGdrain C21Q6-G

            1.410.000 Đánh giá 4
            no-image

            Sofa băng da thật FIORE FE19

            0 Đánh giá 0
            no-image

            Máy Làm Sữa Hạt Đa Năng MK-240A

            1.150.000 Đánh giá 0
            no-image

            Kệ Chén Dĩa iNox KCM 3655

            2.050.000 Đánh giá 0
            Tìm kiếm dự án
            Địa điểm
            Loại công trình
            Hạng mục thiết kế
            Phong cách thiết kế
            Bản vẽ
            Không gian
            Nhận E-book & Tài liệu chuyên môn từ KIENTRUC.com
            Cập nhật xu hướng thiết kế, thư viện vật liệu, chi tiết kỹ thuật và kinh nghiệm triển khai dự án dành cho Kiến trúc sư.
            FOLLOW US

            no-image
            © 2015 - 2026 KIENTRUC.com jsc. All right reserved
            • CHUYÊN GIA
            • DỰ ÁN
            • CỘNG ĐỒNG
            • SẢN PHẨM
            • LIÊN HỆ