KIENTRUC.com
tạiShowroom
    tạiKiến Trúc Sư
      tạiDự án
        tạiTạp chí
          tạiCộng đồng
            • CHUYÊN GIA
            • DỰ ÁN
            • CỘNG ĐỒNG
            • SẢN PHẨM
            • VIỆC LÀM
            • TRANG CHỦ
            • CHUYÊN GIA
            • DỰ ÁN
            • CỘNG ĐỒNG
            • SẢN PHẨM
            • VIỆC LÀM
            Đăng nhập Đăng ký
            © 2015-2026 KIENTRUC.com jsc.
            All right reserved
            1. Nhà Hàng
            2. Chuyên gia

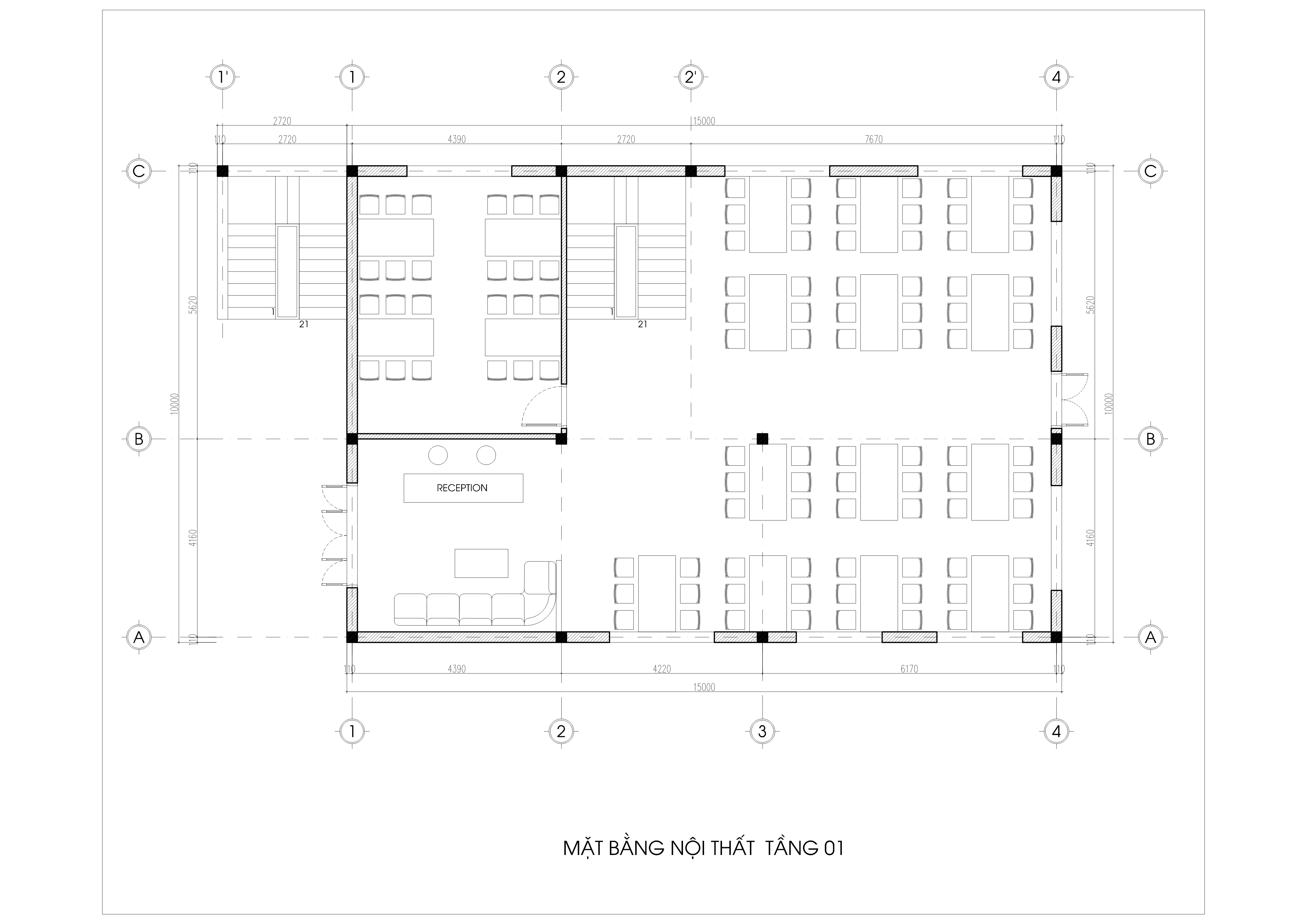
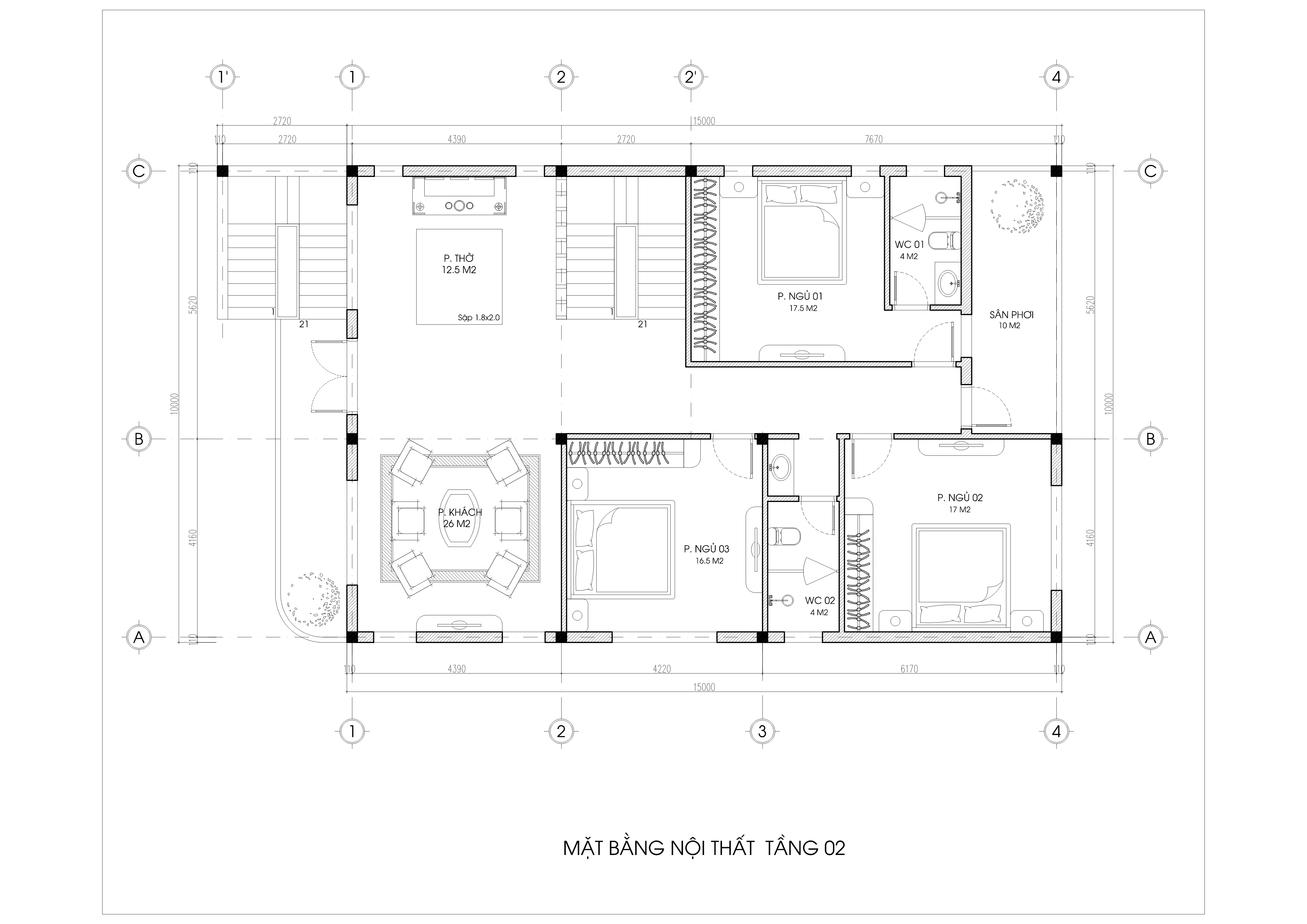
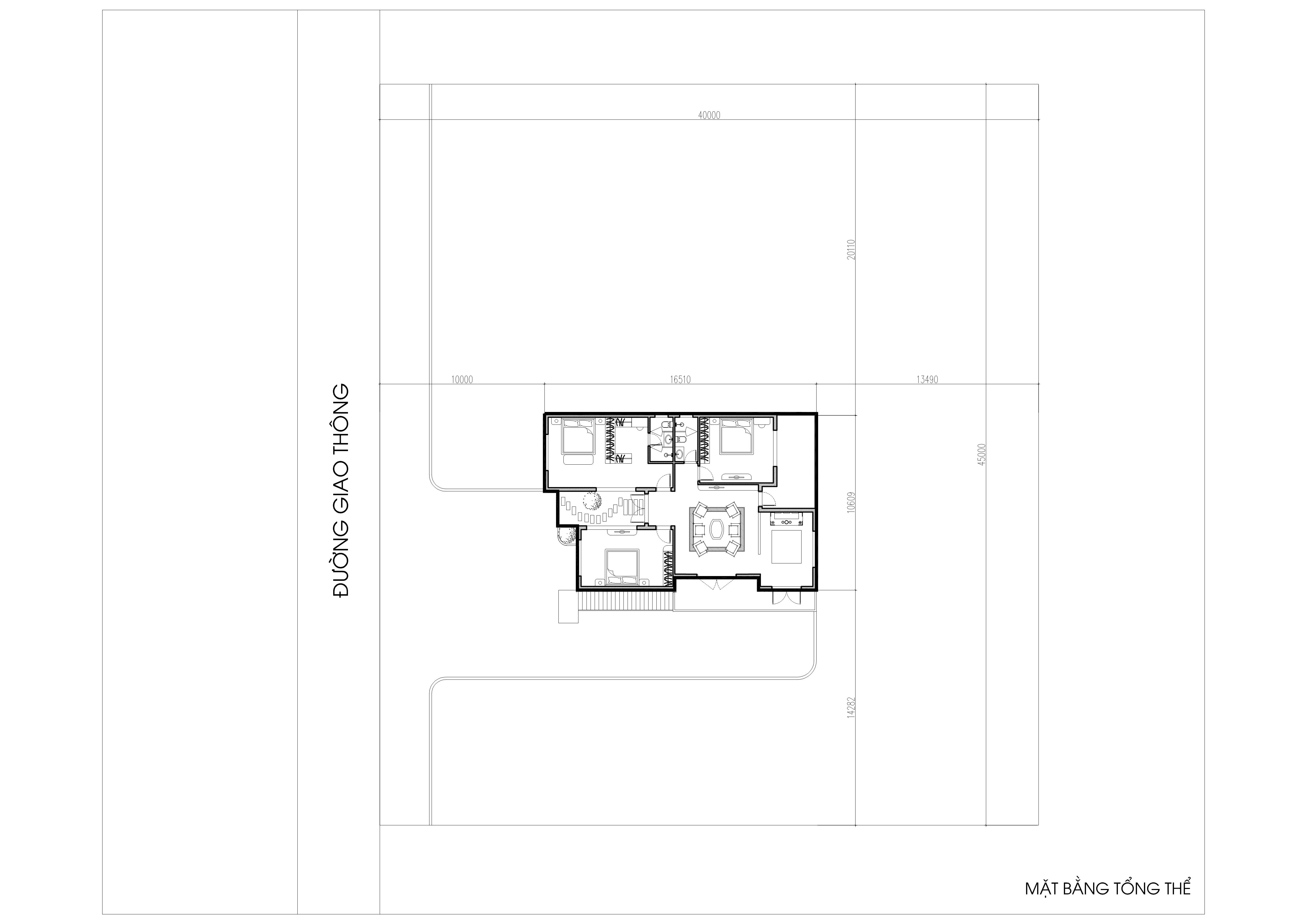
            Nhà hàng ăn uống _ Đoan Hùng

            no-image
            no-image
            no-image
            no-image
            no-image
            no-image

            PROFESSIONAL | DỰ ÁN

            no-image

            Ha'House

            11 6
            Nhà Mặt Phố
            no-image

            Duc'house

            0 6
            Nhà Mặt Phố
            no-image

            Tien'house

            0 6
            Biệt Thự
            no-image
            Kiến trúc sư Lê thành chung
            Phú Thọ, Việt Trì
            Nhóm thiết kế
            • no-image
              Lê thành chung Chủ trì thiết kế
            Thông tin dự án
            Ngôi nhà với phong cách hiện đại , nhẹ nhàng gần gũi với thiên thiên với hệ thống cột gỗ và song gỗ là nét chấm phá mang hởi thở của truyền thống gây ấn tượng cho công trình. Nhà hàng có ví trí rất thuận lợi trên Đoan Hùng- Phú Thọ , với không gian cảnh quan xung quanh thoáng đãng và rộng rãi . Nhà sử dụng
            • Loại công trình
              Nhà Hàng
            • Hạng mục
              Nội thất
            • Phong cách
              Hiện đại
            • Trạng thái
              Ảnh 3D
            • Phần mềm
              3D Max
            • Vị trí
              Phú Thọ, Đoan Hùng

            Đã có 0 người đánh giá dự án này

            Đánh giá
            • 0
              0 đánh giá từ chủ nhà
            • 0
              0 đánh giá từ chuyên gia
            Xem chi tiết
            Có 0 người đánh giá
            Chia sẻ dự án
            Sản phẩm đề xuất
            no-image

            MÁY LỌC KHÔNG KHÍ Ô TÔ BONECO P50

            2.860.000 Đánh giá 0
            no-image

            Ghế ăn ALVA KDC838

            10.400.000 Đánh giá 0
            no-image

            Phễu Thoát Sàn MAGdrain C21Q6-G

            1.410.000 Đánh giá 4
            no-image

            Phễu Thoát Sàn MAGdrain PC02Q3-G

            560.000 Đánh giá 3
            no-image

            Máy Lọc Nước A. O. Smith S600

            12.860.000 Đánh giá 0
            Tìm kiếm dự án
            Địa điểm
            Loại công trình
            Hạng mục thiết kế
            Phong cách thiết kế
            Bản vẽ
            Không gian
            Nhận E-book & Tài liệu chuyên môn từ KIENTRUC.com
            Cập nhật xu hướng thiết kế, thư viện vật liệu, chi tiết kỹ thuật và kinh nghiệm triển khai dự án dành cho Kiến trúc sư.
            FOLLOW US

            no-image
            © 2015 - 2026 KIENTRUC.com jsc. All right reserved
            • CHUYÊN GIA
            • DỰ ÁN
            • CỘNG ĐỒNG
            • SẢN PHẨM
            • LIÊN HỆ