Tham gia KIENTRUC để nhận tư vấn mới nhất
Khi đăng kí, tôi thừa nhận và đồng ý với điều khoản sử dụng và chính sách bảo mật của KIENTRUC.com
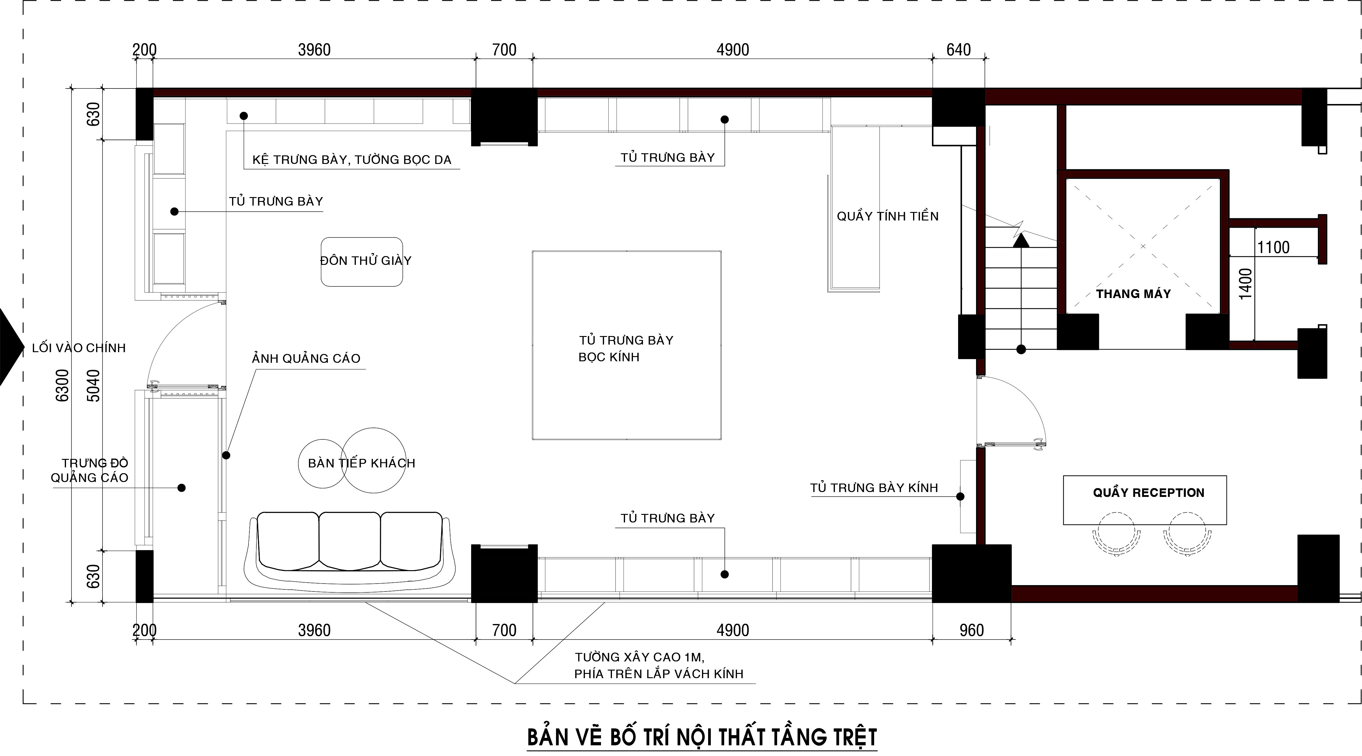
shop thời trang







PROFESSIONAL | DỰ ÁN
Nhóm thiết kế
-
Nguyễn Hướng Thiết kế 3D
Thông tin dự án
-
Loại công trìnhShop
-
Hạng mụcNội thất
-
Phong cáchHiện đại
-
Trạng tháiẢnh Hoàn Thiện
-
Vị tríHồ Chí Minh, 1
Đã có 0 người đánh giá dự án này
Đánh giá
-
00 đánh giá từ chủ nhà
-
00 đánh giá từ chuyên gia
Có 0 người đánh giá
Chia sẻ dự án
Sản phẩm đề xuất