Tham gia KIENTRUC để nhận tư vấn mới nhất
Khi đăng kí, tôi thừa nhận và đồng ý với điều khoản sử dụng và chính sách bảo mật của KIENTRUC.com
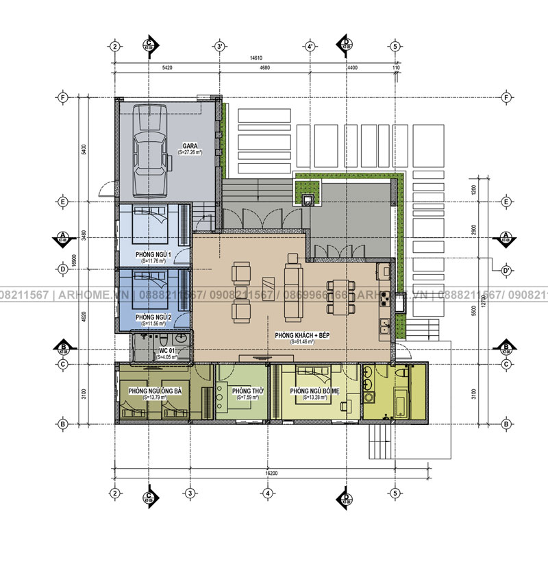
Thiết kế biệt thự 01 tầng mái Thái diện tích 175m2






PROFESSIONAL | DỰ ÁN
Nhóm thiết kế
-
Minh Tuấn Arhome Chủ trì thiết kế
Thông tin dự án
Chủ đầu tư: Chị Giang - Diện tích khu đất: 270m2 - Phong cách thiết kế: Biệt thự 01 tầng mái thái - Địa điểm xây dựng: Tổ 8 , phường Sông Cầu, TP. Bắc Cạn
Xem thêm tại: http://arhome.vn/thiet-ke-biet-thu-01-tang-mai-thai-dien-tich-175m2.html
Hotline: 0869966166
-
Loại công trìnhBiệt Thự
-
Hạng mụcThiết kế & xây dựng
-
Phong cáchTruyền Thống
-
Trạng tháiẢnh 3D
-
Phần mềm3D Max
-
Vị tríBắc Kạn, Bắc Kạn
Đã có 0 người đánh giá dự án này
Đánh giá
-
00 đánh giá từ chủ nhà
-
00 đánh giá từ chuyên gia
Có 0 người đánh giá
Chia sẻ dự án
Sản phẩm đề xuất