Tham gia KIENTRUC để nhận tư vấn mới nhất
Khi đăng kí, tôi thừa nhận và đồng ý với điều khoản sử dụng và chính sách bảo mật của KIENTRUC.com
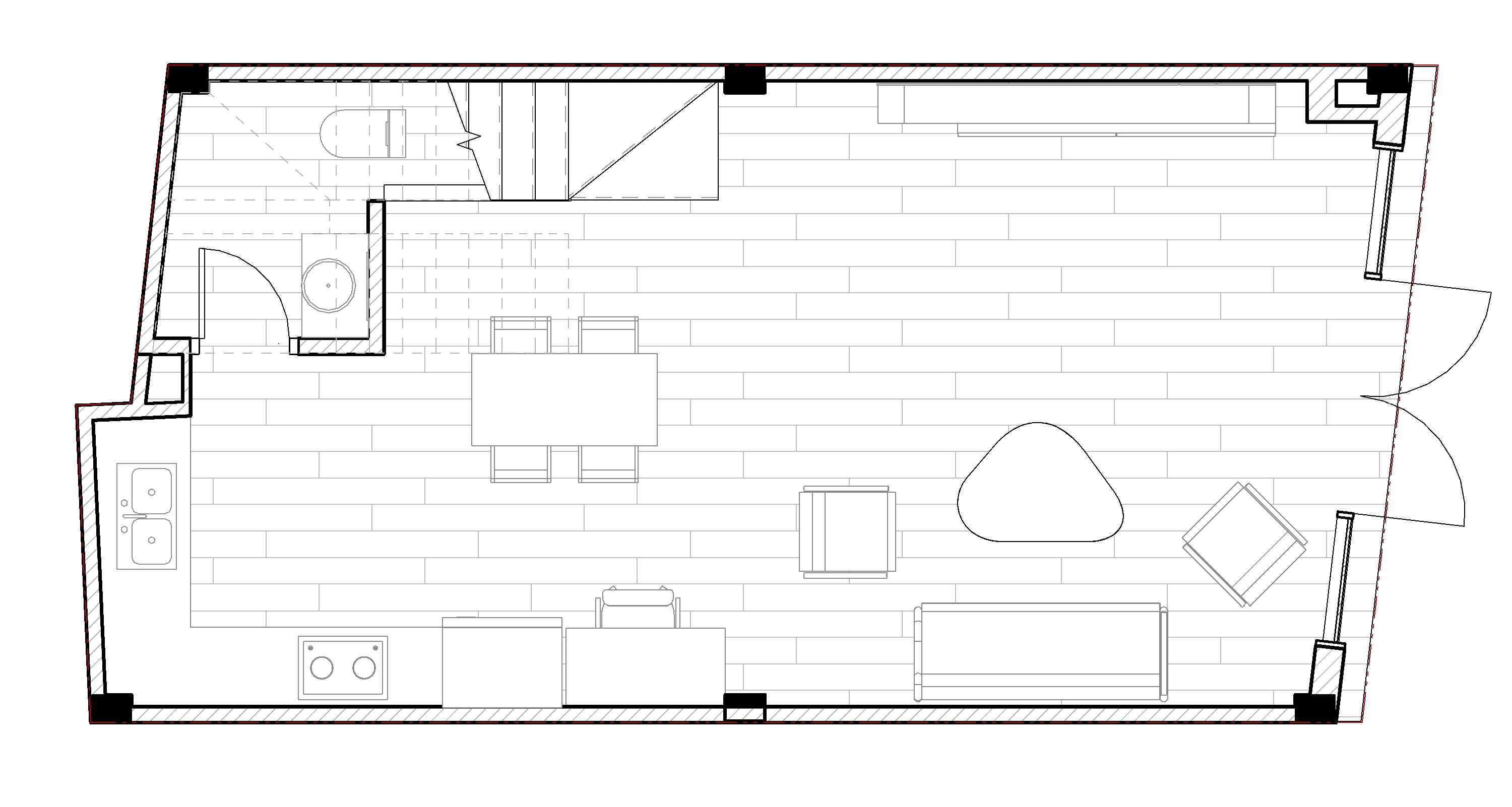
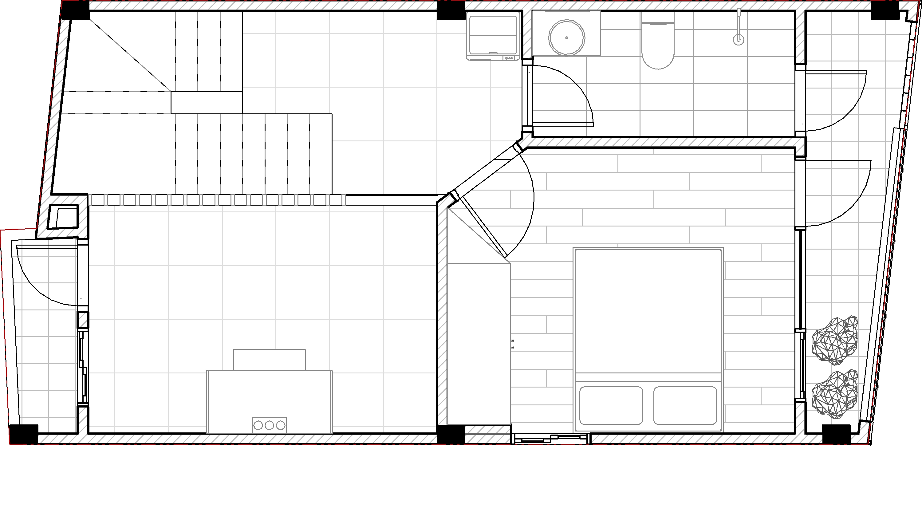
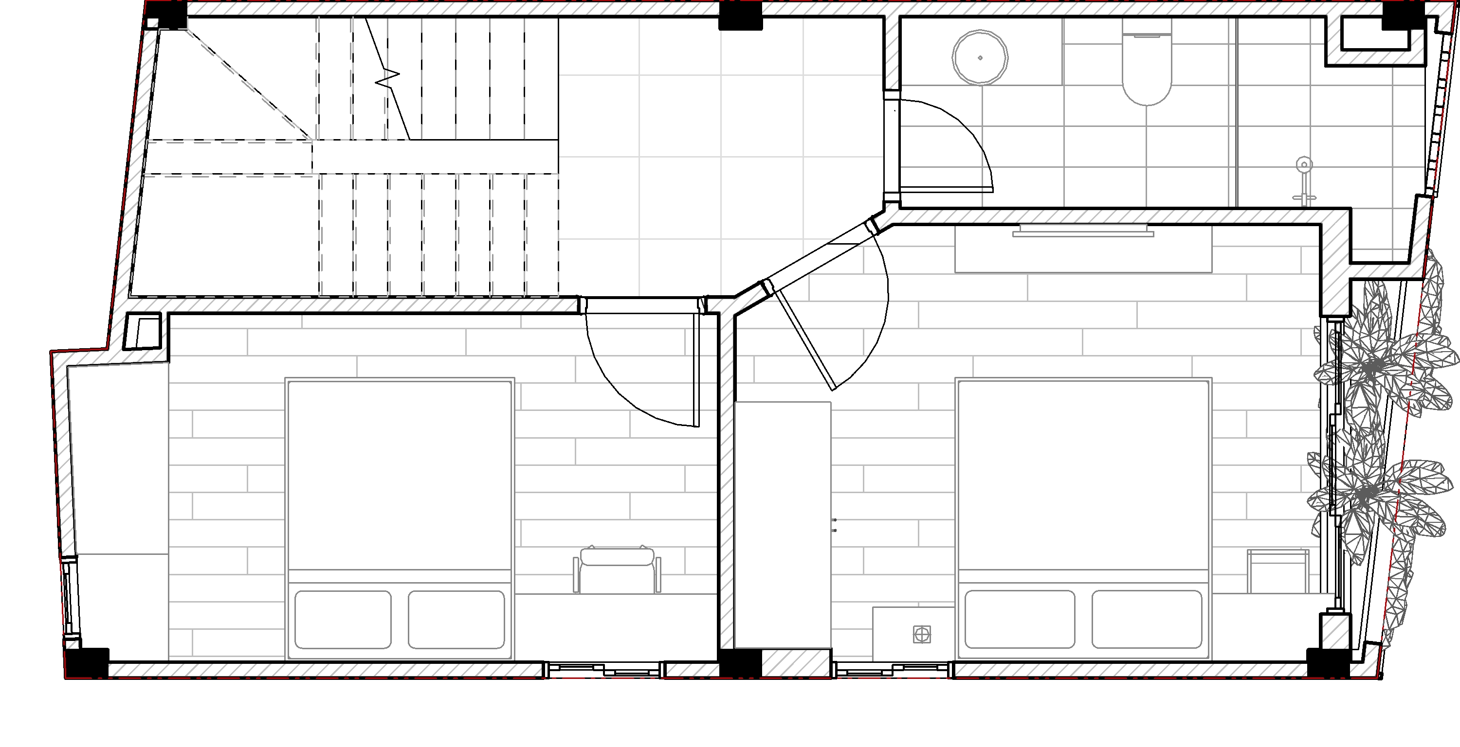
DHN House






PROFESSIONAL | DỰ ÁN
Nhóm thiết kế
-
Phạm Đình Khảm Chủ trì thiết kế
Thông tin dự án
-
Loại công trìnhNhà
-
Tầng3 tầng
-
Hạng mụcThiết kế & xây dựng
-
Phong cáchHiện đại
-
Trạng tháiẢnh 3D
-
Phần mềmRevit
-
Vị tríHà Nội, Hoài Đức
Đã có 0 người đánh giá dự án này
Đánh giá
-
00 đánh giá từ chủ nhà
-
00 đánh giá từ chuyên gia
Có 0 người đánh giá
Chia sẻ dự án
Sản phẩm đề xuất