Tham gia KIENTRUC để nhận tư vấn mới nhất
Khi đăng kí, tôi thừa nhận và đồng ý với điều khoản sử dụng và chính sách bảo mật của KIENTRUC.com
HT.VQ House








PROFESSIONAL | DỰ ÁN
Nhóm thiết kế
-
Phạm Đình Khảm Chủ trì thiết kế
Thông tin dự án
-
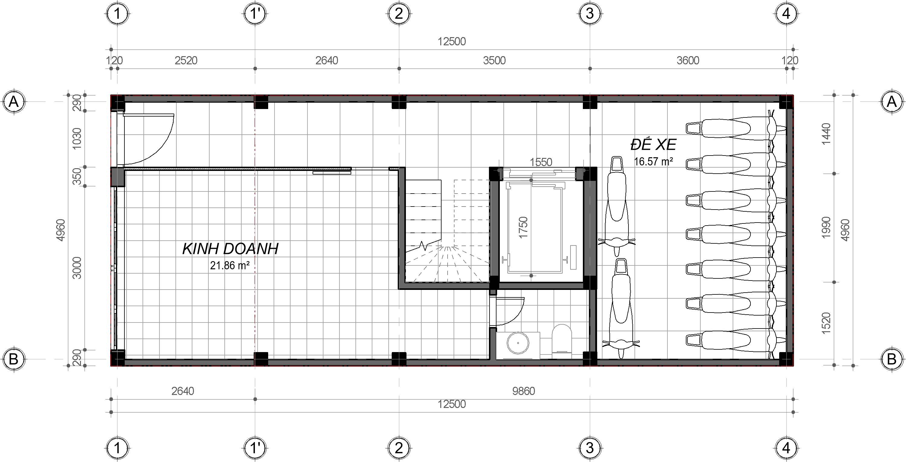
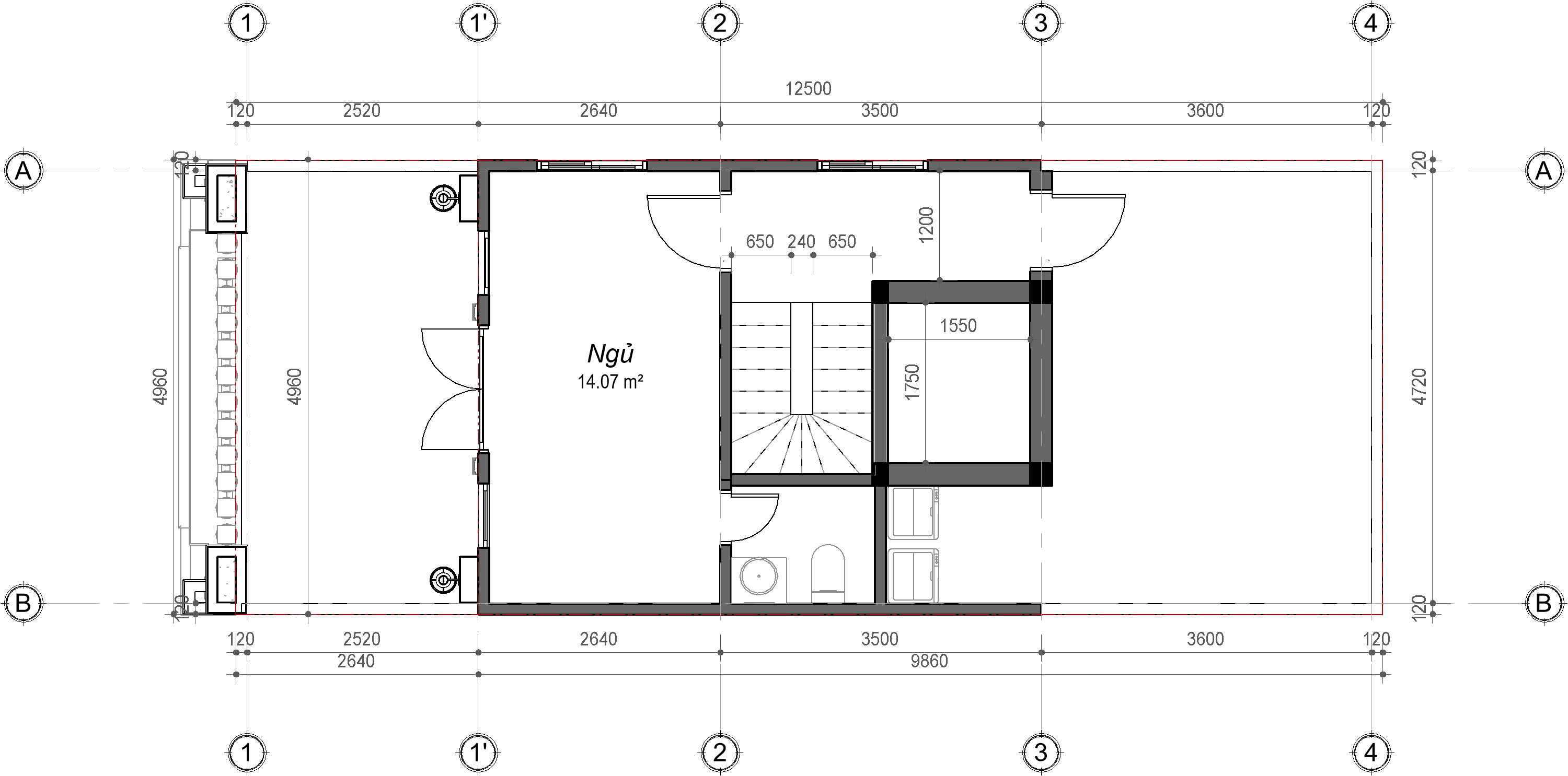
Loại công trìnhNhà Mặt Phố
-
Tầng6 tầng
-
Hạng mụcThiết kế & xây dựng
-
Phong cáchTân Cổ Điển
-
Trạng tháiẢnh 3D
-
Phần mềm3D Max
-
Vị tríHà Nội, Hà Đông
Đã có 1 người đánh giá dự án này
Đánh giá
-
00 đánh giá từ chủ nhà
-
41 đánh giá từ chuyên gia
Có 1 người đánh giá
Chia sẻ dự án
Sản phẩm đề xuất