Tham gia KIENTRUC để nhận tư vấn mới nhất
Khi đăng kí, tôi thừa nhận và đồng ý với điều khoản sử dụng và chính sách bảo mật của KIENTRUC.com
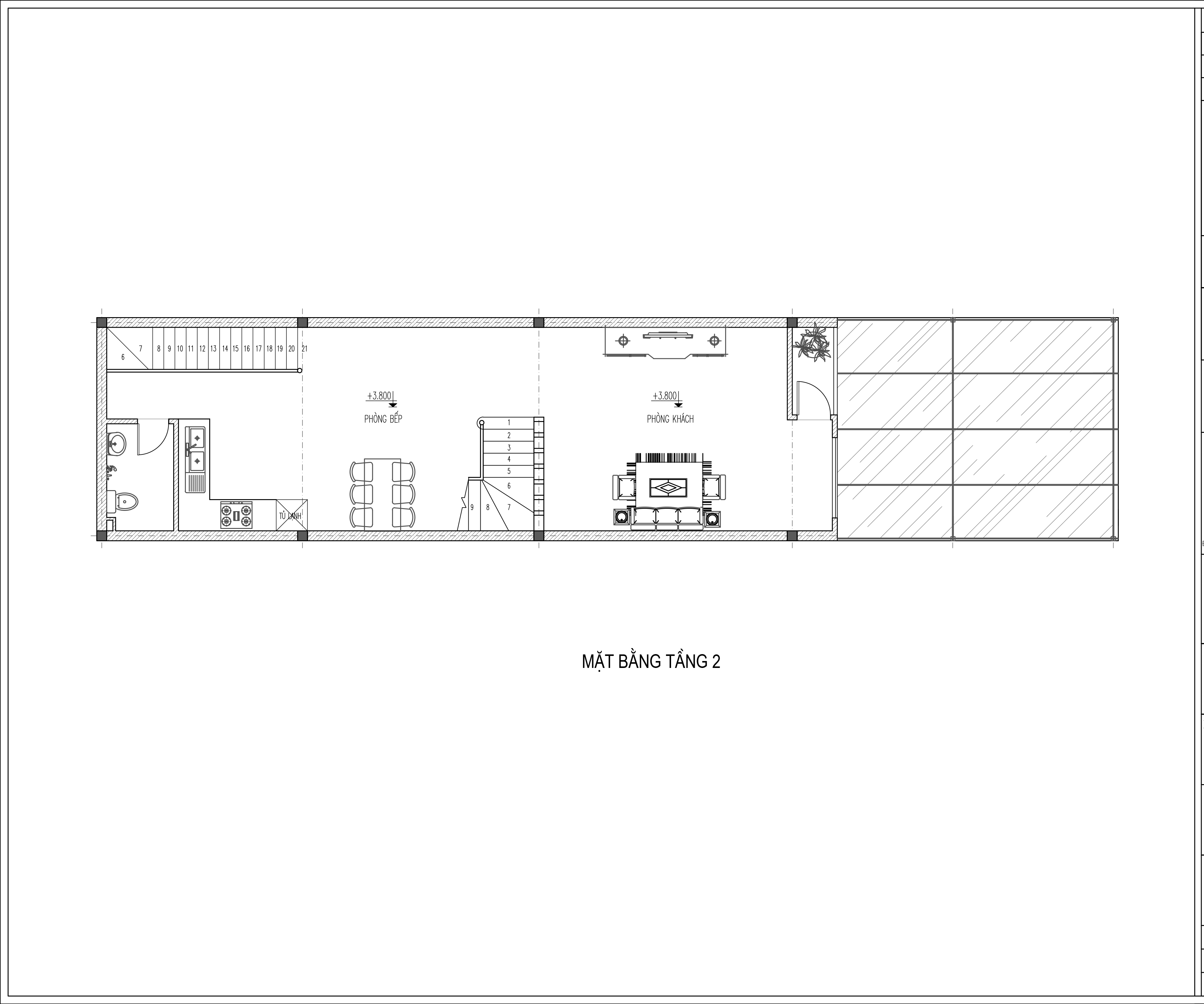
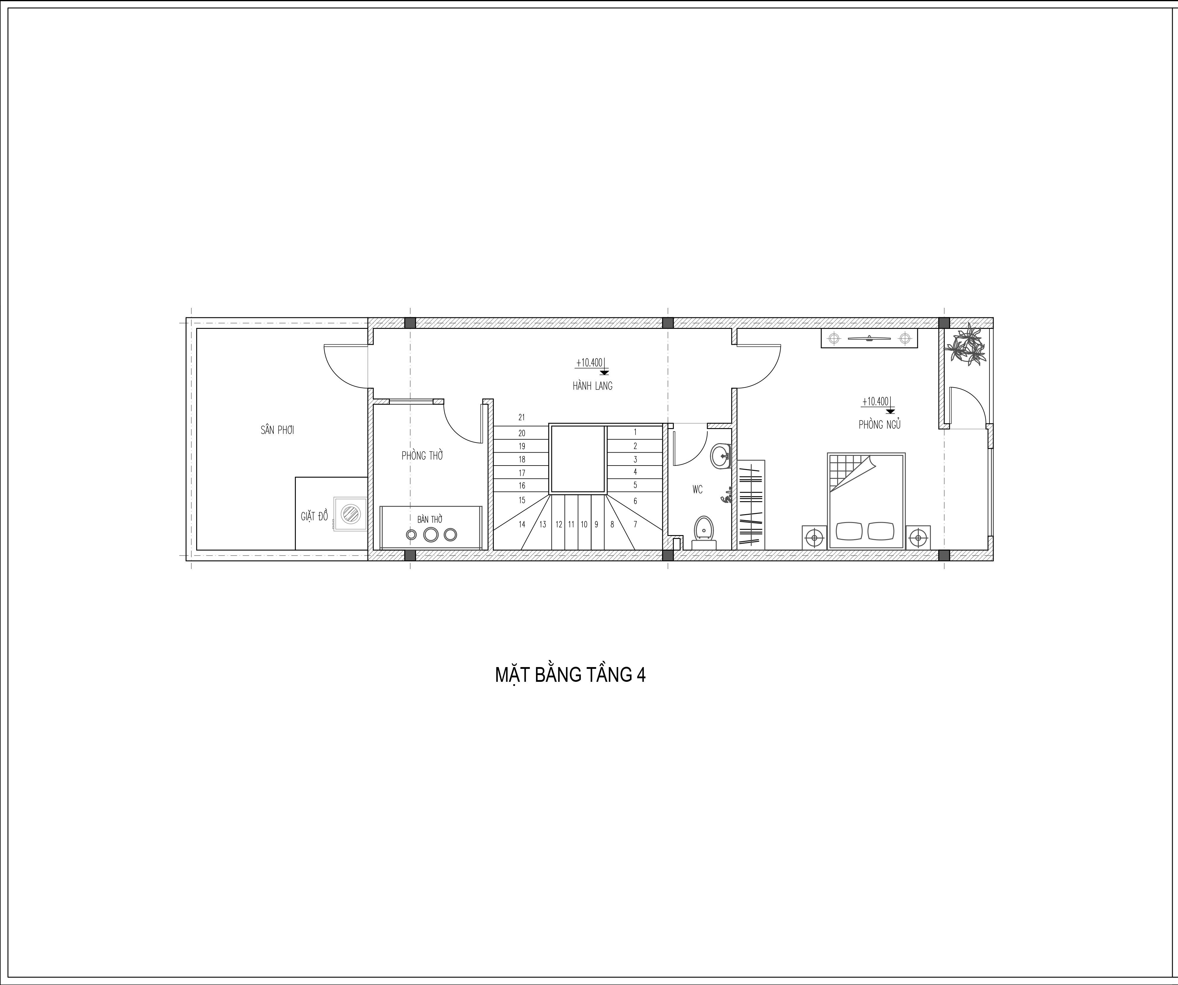
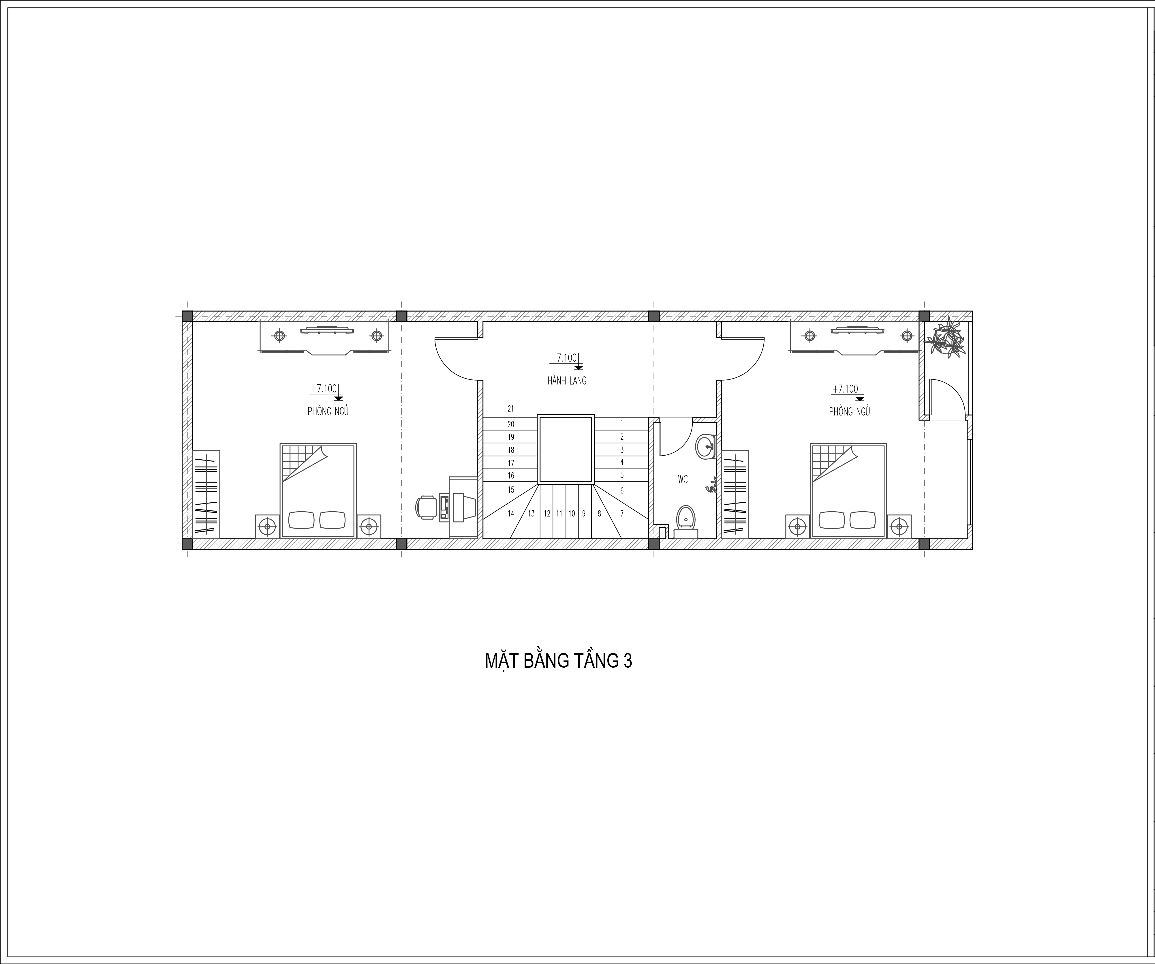
Nhà anh Khánh






PROFESSIONAL | DỰ ÁN
Nhóm thiết kế
-
Nguyễn Ngọc Hưng Chủ trì thiết kế
Thông tin dự án
-
Loại công trìnhNhà Mặt Phố
-
Tầng4 tầng
-
Hạng mụcThiết kế & xây dựng
-
Phong cáchHiện đại
-
Trạng tháiẢnh 3D
-
Phần mềmSketchUp
-
Vị tríHà Nội, Đông Anh
Đã có 4 người đánh giá dự án này
Đánh giá
-
4.52 đánh giá từ chủ nhà
-
3.52 đánh giá từ chuyên gia
Có 4 người đánh giá
Chia sẻ dự án
Sản phẩm đề xuất