Tham gia KIENTRUC để nhận tư vấn mới nhất
Khi đăng kí, tôi thừa nhận và đồng ý với điều khoản sử dụng và chính sách bảo mật của KIENTRUC.com
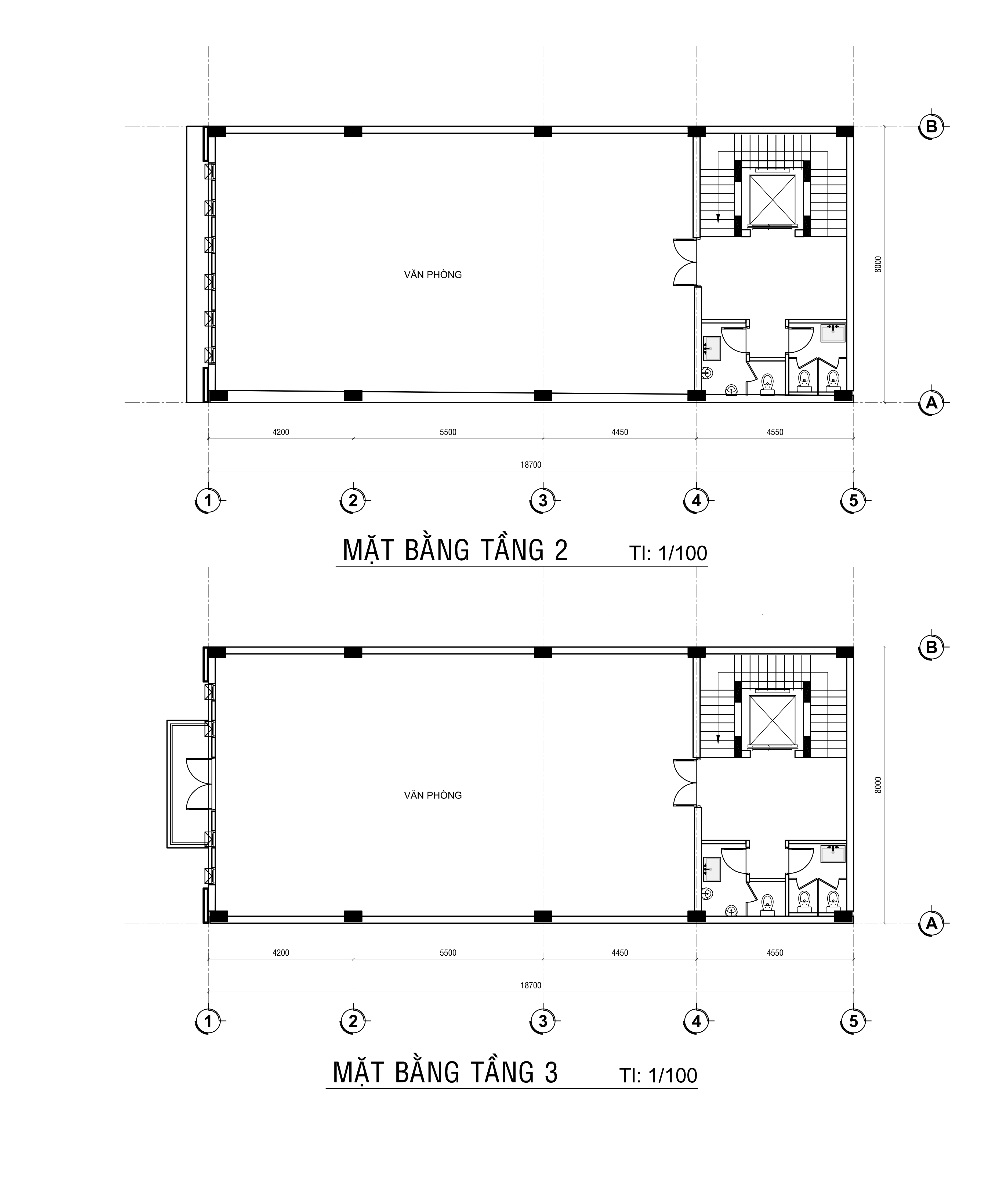
ShopHouse_Office HCM








PROFESSIONAL | DỰ ÁN
Nhóm thiết kế
-
Nguyễn Thành Nam Chủ trì thiết kế
Thông tin dự án
-
Loại công trìnhVăn Phòng
-
Hạng mụcNgoại thất
-
Phong cáchTân Cổ Điển
-
Trạng tháiẢnh 3D
-
Phần mềmSketchUp
-
Vị tríHồ Chí Minh, 9
Đã có 0 người đánh giá dự án này
Đánh giá
-
00 đánh giá từ chủ nhà
-
00 đánh giá từ chuyên gia
Có 0 người đánh giá
Chia sẻ dự án
Sản phẩm đề xuất