KIENTRUC.com
tạiShowroom
    tạiKiến Trúc Sư
      tạiDự án
        tạiTạp chí
          tạiCộng đồng
            • CHUYÊN GIA
            • DỰ ÁN
            • CỘNG ĐỒNG
            • SẢN PHẨM
            • VIỆC LÀM
            • TRANG CHỦ
            • CHUYÊN GIA
            • DỰ ÁN
            • CỘNG ĐỒNG
            • SẢN PHẨM
            • VIỆC LÀM
            Đăng nhập Đăng ký
            © 2015-2026 KIENTRUC.com jsc.
            All right reserved
            1. Biệt Thự
            2. Chuyên gia

            Biệt thự 3 tầng tân cổ

            no-image
            no-image
            no-image
            no-image
            no-image
            no-image
            no-image

            PROFESSIONAL | DỰ ÁN

            no-image

            Biệt thự 3 tầng tân cổ

            4 7
            Biệt Thự
            no-image

            Biệt thự 3 tầng tân cổ điển

            6 7
            Biệt Thự
            no-image

            BTV - NTTM DESIGN

            13 14
            Biệt Thự
            no-image
            Kiến trúc sư Lê Văn Nhung
            Bắc Ninh, Bắc Ninh
            Nhóm thiết kế
            • no-image
              Lê Văn Nhung Chủ trì thiết kế
            Thông tin dự án
            • Loại công trình
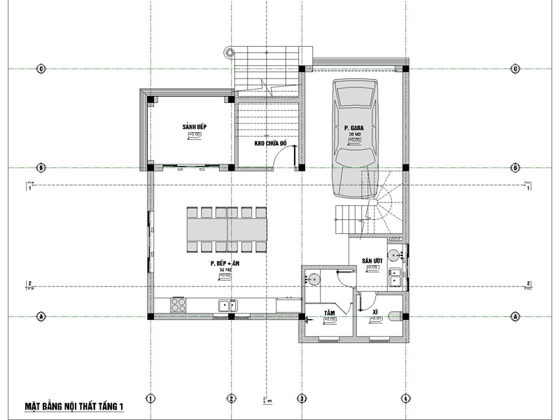
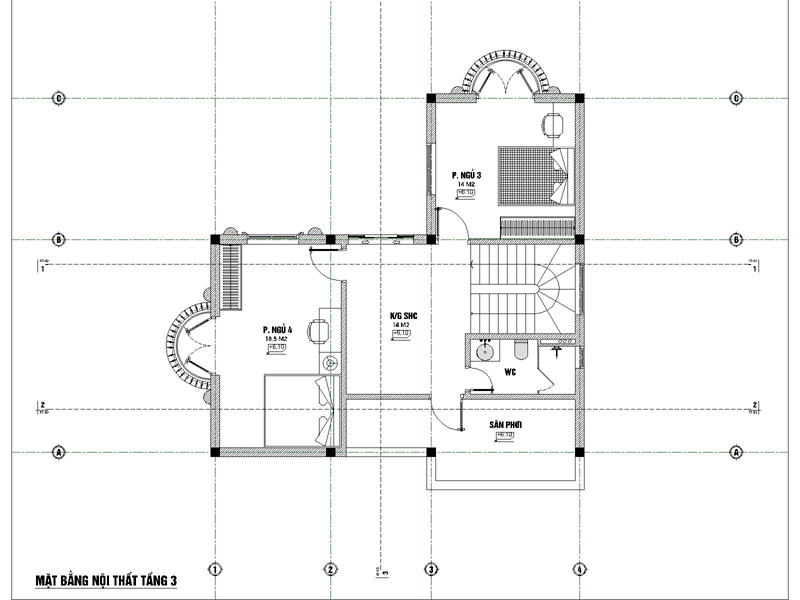
              Biệt Thự
            • Tầng
              3 tầng
            • Hạng mục
              Ngoại thất
            • Phong cách
              Tân Cổ Điển
            • Trạng thái
              Ảnh 3D
            • Phần mềm
              SketchUp
            • Vị trí
              Bắc Ninh, Bắc Ninh

            Đã có 0 người đánh giá dự án này

            Đánh giá
            • 0
              0 đánh giá từ chủ nhà
            • 0
              0 đánh giá từ chuyên gia
            Xem chi tiết
            Có 0 người đánh giá
            Chia sẻ dự án
            Sản phẩm đề xuất
            no-image

            Phễu Thoát Sàn Chống Hôi MOEN

            732.000 Đánh giá 3
            no-image

            Phễu Thoát Sàn Dài MAGdrain JXC600Q6-B

            3.959.000 Đánh giá 0
            no-image

            Máy Làm Sữa Hạt Đa Năng MK-240A

            1.150.000 Đánh giá 0
            no-image

            Phễu Thoát Sàn MAGdrain C21Q6-G

            1.410.000 Đánh giá 4
            no-image

            Máy Khoan Tốc Độ Cao ( Makita 6501)

            2.109.000 Đánh giá 0
            Tìm kiếm dự án
            Địa điểm
            Loại công trình
            Hạng mục thiết kế
            Phong cách thiết kế
            Bản vẽ
            Không gian
            Nhận E-book & Tài liệu chuyên môn từ KIENTRUC.com
            Cập nhật xu hướng thiết kế, thư viện vật liệu, chi tiết kỹ thuật và kinh nghiệm triển khai dự án dành cho Kiến trúc sư.
            FOLLOW US

            no-image
            © 2015 - 2026 KIENTRUC.com jsc. All right reserved
            • CHUYÊN GIA
            • DỰ ÁN
            • CỘNG ĐỒNG
            • SẢN PHẨM
            • LIÊN HỆ