Tham gia KIENTRUC để nhận tư vấn mới nhất
Khi đăng kí, tôi thừa nhận và đồng ý với điều khoản sử dụng và chính sách bảo mật của KIENTRUC.com
Biệt Thự nhà chú Sơn






PROFESSIONAL | DỰ ÁN
Nhóm thiết kế
-
Lê Xuân Thành Thiết kế ngoại thất
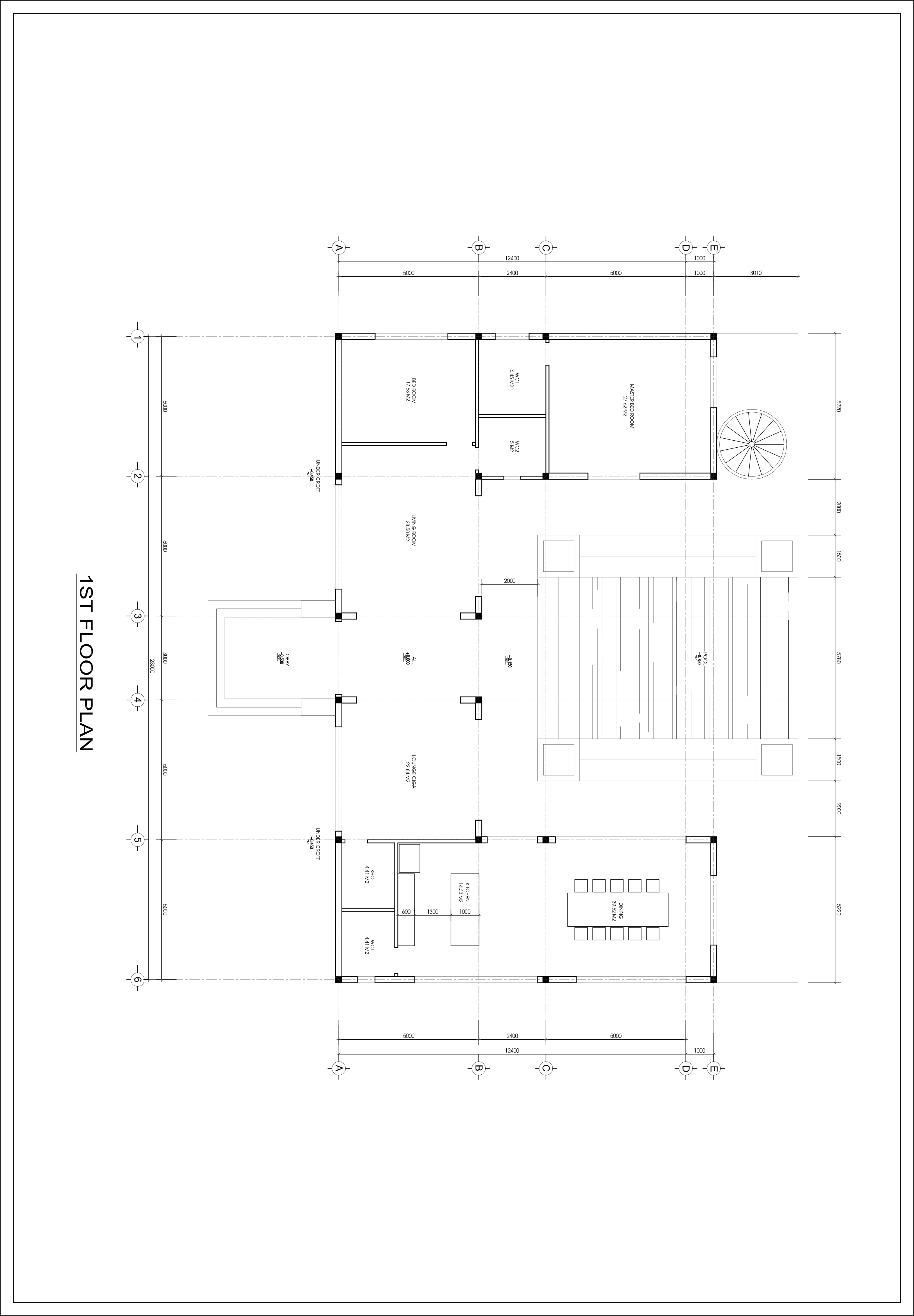
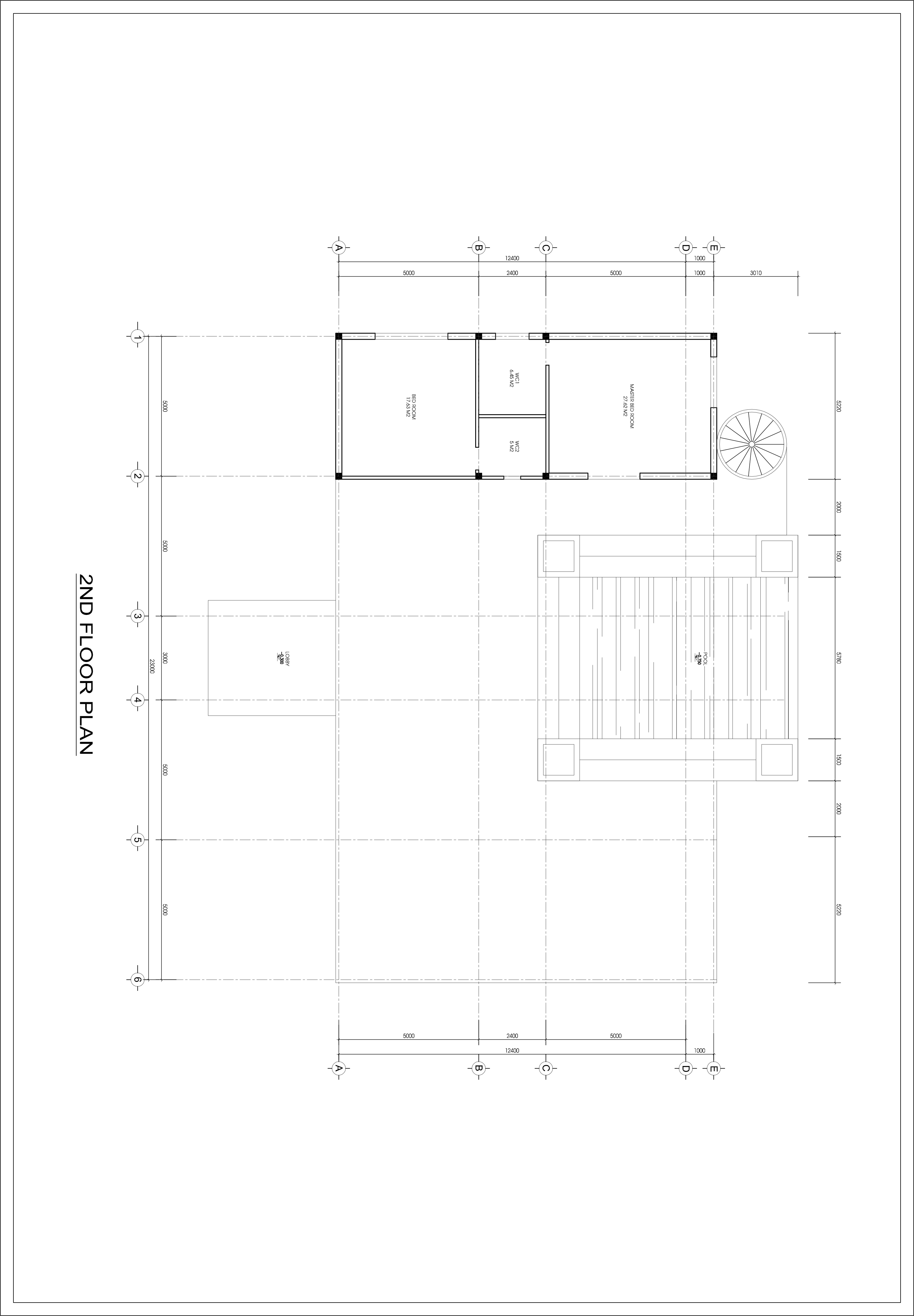
Thông tin dự án
Trên mảnh đất anh dự tính xây dựng có quá nhiều điểm ưu việt. Mảnh đất rộng, không gian yên tĩnh, nhẹ nhàng, không khí thoáng mát trong lành, cạnh bên còn có dòng sông Đáy chảy qua. Ở đó quá thích hợp cho một nơi để nghỉ ngơi – thư giãn.Ở biệt thự nhà vườn này thể hiện rõ ngôi nhà không chỉ là chỗ che
-
Loại công trìnhBiệt Thự
-
Tầng2 tầng
-
Hạng mụcNgoại thất
-
Phong cáchHiện đại
-
Trạng tháiẢnh 3D
-
Phần mềm3D Max
-
Vị tríHà Nội, Hoài Đức
Đã có 0 người đánh giá dự án này
Đánh giá
-
00 đánh giá từ chủ nhà
-
00 đánh giá từ chuyên gia
Có 0 người đánh giá
Chia sẻ dự án
Sản phẩm đề xuất