Tham gia KIENTRUC để nhận tư vấn mới nhất
Khi đăng kí, tôi thừa nhận và đồng ý với điều khoản sử dụng và chính sách bảo mật của KIENTRUC.com
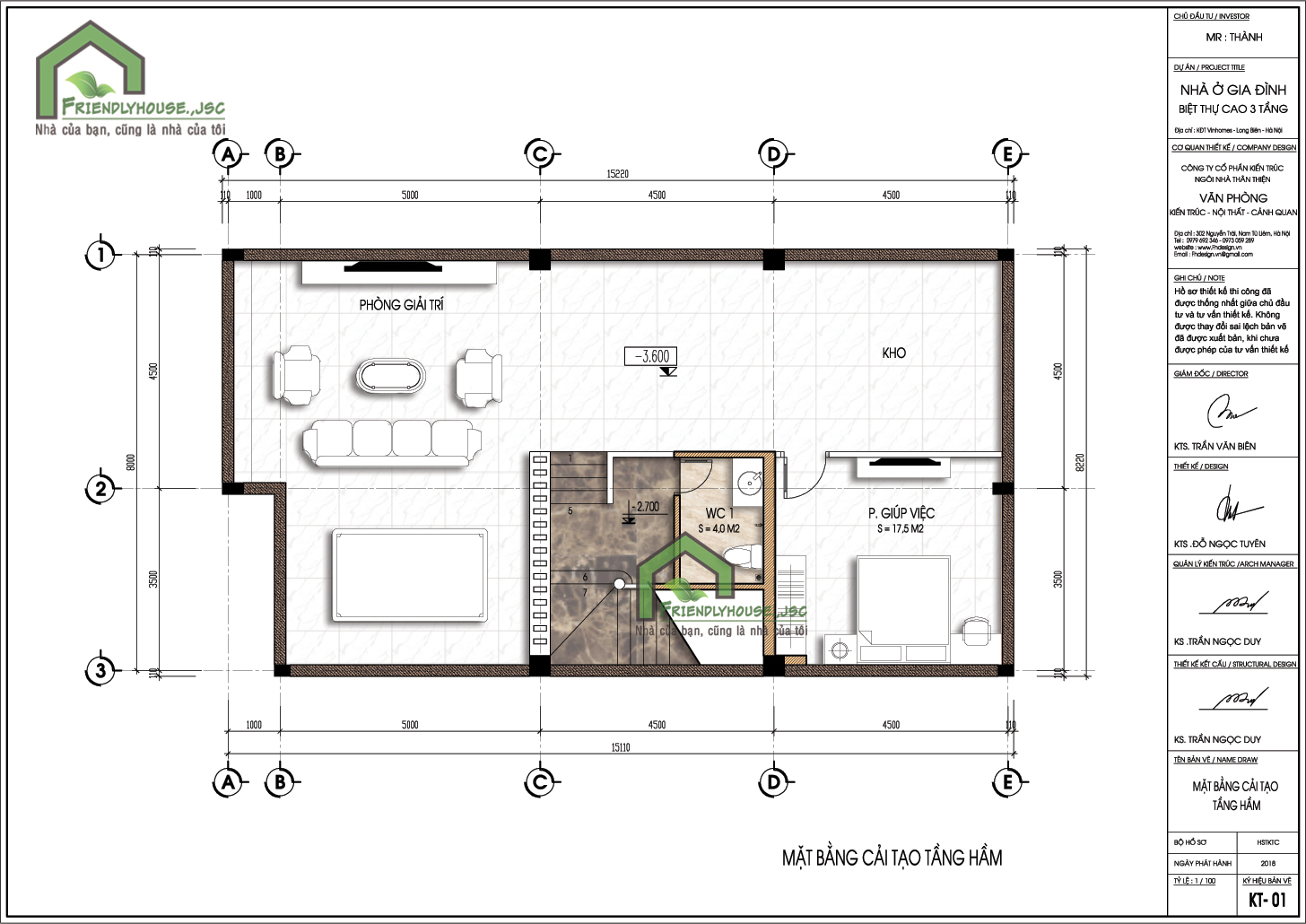
Cải tạo Biệt thự 3 tầng KĐT Vinhomes Riverside - Hà Nội










PROFESSIONAL | DỰ ÁN
Nhóm thiết kế
-
Tranbien Kts Chủ trì thiết kế
Thông tin dự án
-
Loại công trìnhBiệt Thự
-
Tầng3 tầng
-
Hạng mụcNgoại thất
-
Phong cáchTân Cổ Điển
-
Trạng tháiẢnh 3D
-
Phần mềm3D Max
-
Vị tríHà Nội, Long Biên
Đã có 0 người đánh giá dự án này
Đánh giá
-
00 đánh giá từ chủ nhà
-
00 đánh giá từ chuyên gia
Có 0 người đánh giá
Chia sẻ dự án
Sản phẩm đề xuất