Tham gia KIENTRUC để nhận tư vấn mới nhất
Khi đăng kí, tôi thừa nhận và đồng ý với điều khoản sử dụng và chính sách bảo mật của KIENTRUC.com
Thiết kế biệt thự 3 tầng hiện đại tại Nghệ An






PROFESSIONAL | DỰ ÁN
Nhóm thiết kế
-
Chu Minh Công Chủ trì thiết kế
Thông tin dự án
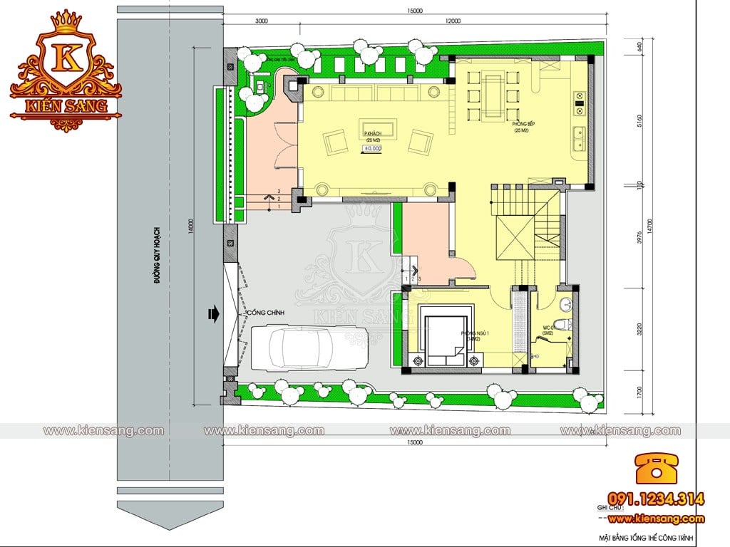
Ngày 27/8/2019, Nhà Đẹp Kiến Sang vui mừng nhận được yêu cầu thiết kế biệt thự 3 tầng hiện đại tại Nghệ An của gia đình anh Hoài. Với sự tư vấn của KTS. Bình anh quyết định lựa chọn phương án thiết kế theo bản vẽ thiết kế được thể hiện dưới đây:
-
Loại công trìnhBiệt Thự
-
Tầng3 tầng
-
Hạng mụcNgoại thất
-
Phong cáchHiện đại
-
Trạng tháiẢnh 3D
-
Phần mềm3D Max
-
Vị tríNghệ An, Cửa Lò
Đã có 1 người đánh giá dự án này
Đánh giá
-
00 đánh giá từ chủ nhà
-
41 đánh giá từ chuyên gia
Có 1 người đánh giá
Chia sẻ dự án
Sản phẩm đề xuất