Tham gia KIENTRUC để nhận tư vấn mới nhất
Khi đăng kí, tôi thừa nhận và đồng ý với điều khoản sử dụng và chính sách bảo mật của KIENTRUC.com
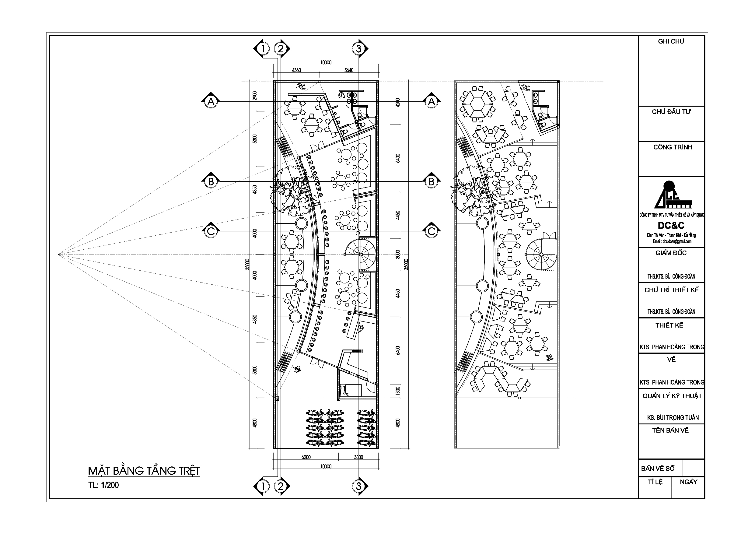
Sành Coffee













PROFESSIONAL | DỰ ÁN
Nhóm thiết kế
-
Phan Hoàng Trọng Chủ trì thiết kế
Thông tin dự án
-
Loại công trìnhCafe
-
Hạng mụcNgoại thất
-
Phong cáchHiện đại
-
Trạng tháiẢnh 3D
-
Phần mềm3D Max
-
Vị tríKon Tum, Kon Tum
Đã có 6 người đánh giá dự án này
Đánh giá
-
53 đánh giá từ chủ nhà
-
4.73 đánh giá từ chuyên gia
Có 6 người đánh giá
Chia sẻ dự án
Sản phẩm đề xuất