Tham gia KIENTRUC để nhận tư vấn mới nhất
                Khi đăng kí, tôi thừa nhận và đồng ý với điều khoản sử dụng và chính sách bảo mật của KIENTRUC.com
            
            
            
            
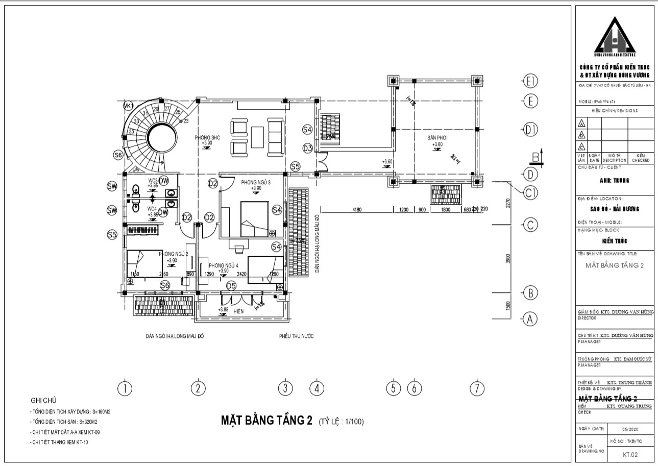
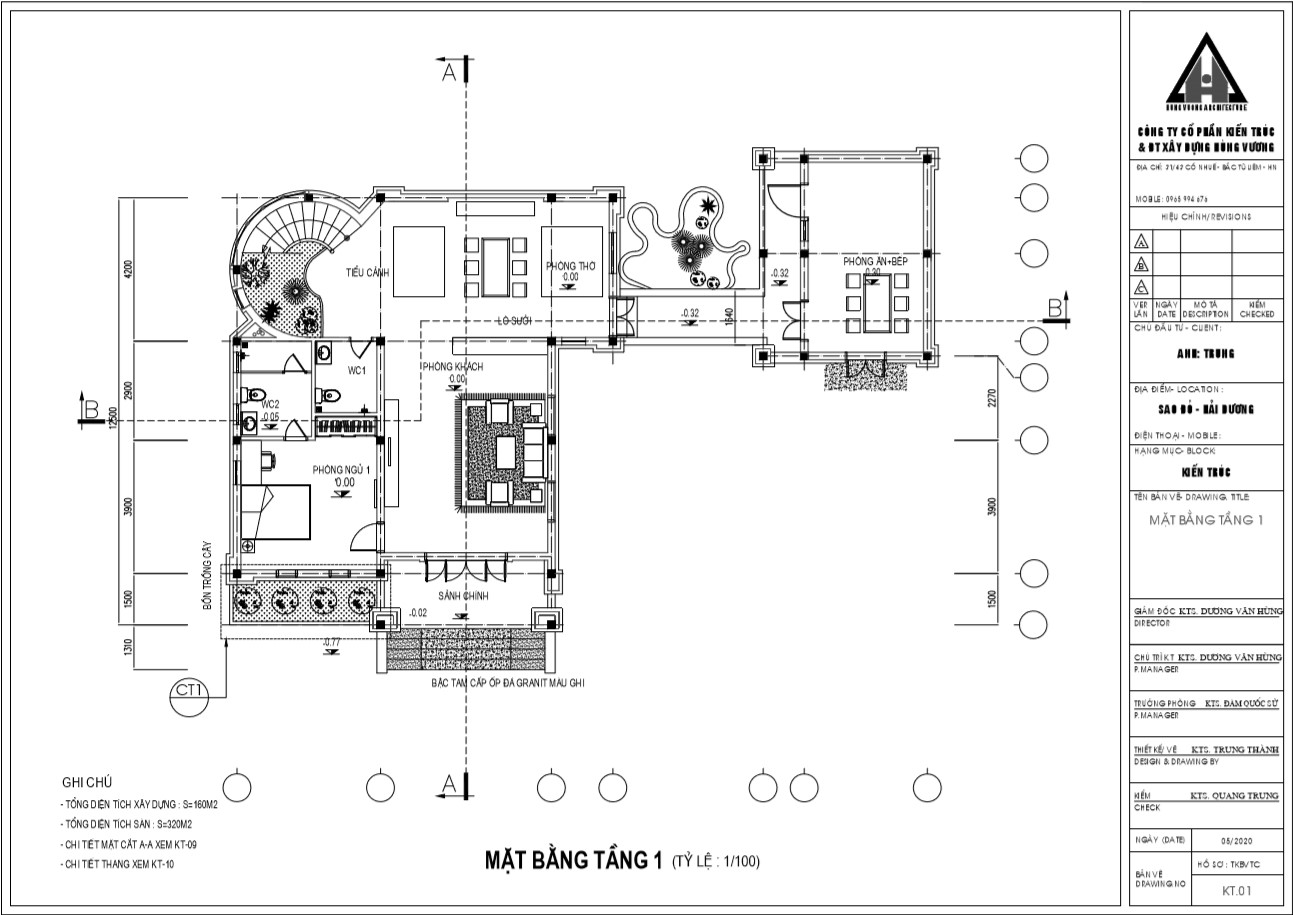
        Biệt thự anh Trung , Hải Dương
 
                 
                 
                 
                 
                 
                PROFESSIONAL | DỰ ÁN
                Nhóm thiết kế
                
            
            - 
                                 Dương Hùng Chủ trì thiết kế Dương Hùng Chủ trì thiết kế
                Thông tin dự án
            
            Biệt thự anh Trung , Hải Dương
            - 
                        Loại công trìnhBiệt Thự
- 
                        Tầng2 tầng
- 
                        Hạng mụcKiến trúc & nội thất
- 
                        Phong cáchTân Cổ Điển
- 
                        Trạng tháiẢnh 3D
- 
                        Phần mềm3D Max
- 
                        Vị tríHải Dương, Chí Linh
Đã có 0 người đánh giá dự án này
        
            Đánh giá
        
    
    - 
            00 đánh giá từ chủ nhà
- 
            00 đánh giá từ chuyên gia
Có 0 người đánh giá
            
        
                Chia sẻ dự án
            
            
                Sản phẩm đề xuất
            
             
                                         
                                         
                                         
                     
                                         
                                         
                                         
                                        