KIENTRUC.com
tạiShowroom
    tạiKiến Trúc Sư
      tạiDự án
        tạiTạp chí
          tạiCộng đồng
            • CHUYÊN GIA
            • DỰ ÁN
            • CỘNG ĐỒNG
            • SẢN PHẨM
            • VIỆC LÀM
            • TRANG CHỦ
            • CHUYÊN GIA
            • DỰ ÁN
            • CỘNG ĐỒNG
            • SẢN PHẨM
            • VIỆC LÀM
            Đăng nhập Đăng ký
            © 2015-2026 KIENTRUC.com jsc.
            All right reserved
            1. Chung Cư
            2. Chuyên gia

            Service apartment

            no-image
            no-image
            no-image
            no-image
            no-image
            no-image

            PROFESSIONAL | DỰ ÁN

            no-image

            Service apartment

            9 6
            Chung Cư
            no-image

            Nhà Mrs Quỳnh Anh

            11 11
            Chung Cư
            no-image

            thầm mỹ viện my chang

            21 19
            Spa
            no-image
            Kiến trúc sư Chau Nguyen
            Hà Nội, Hai Bà Trưng
            Nhóm thiết kế
            • no-image
              Chau Nguyen Chủ trì thiết kế
            Thông tin dự án
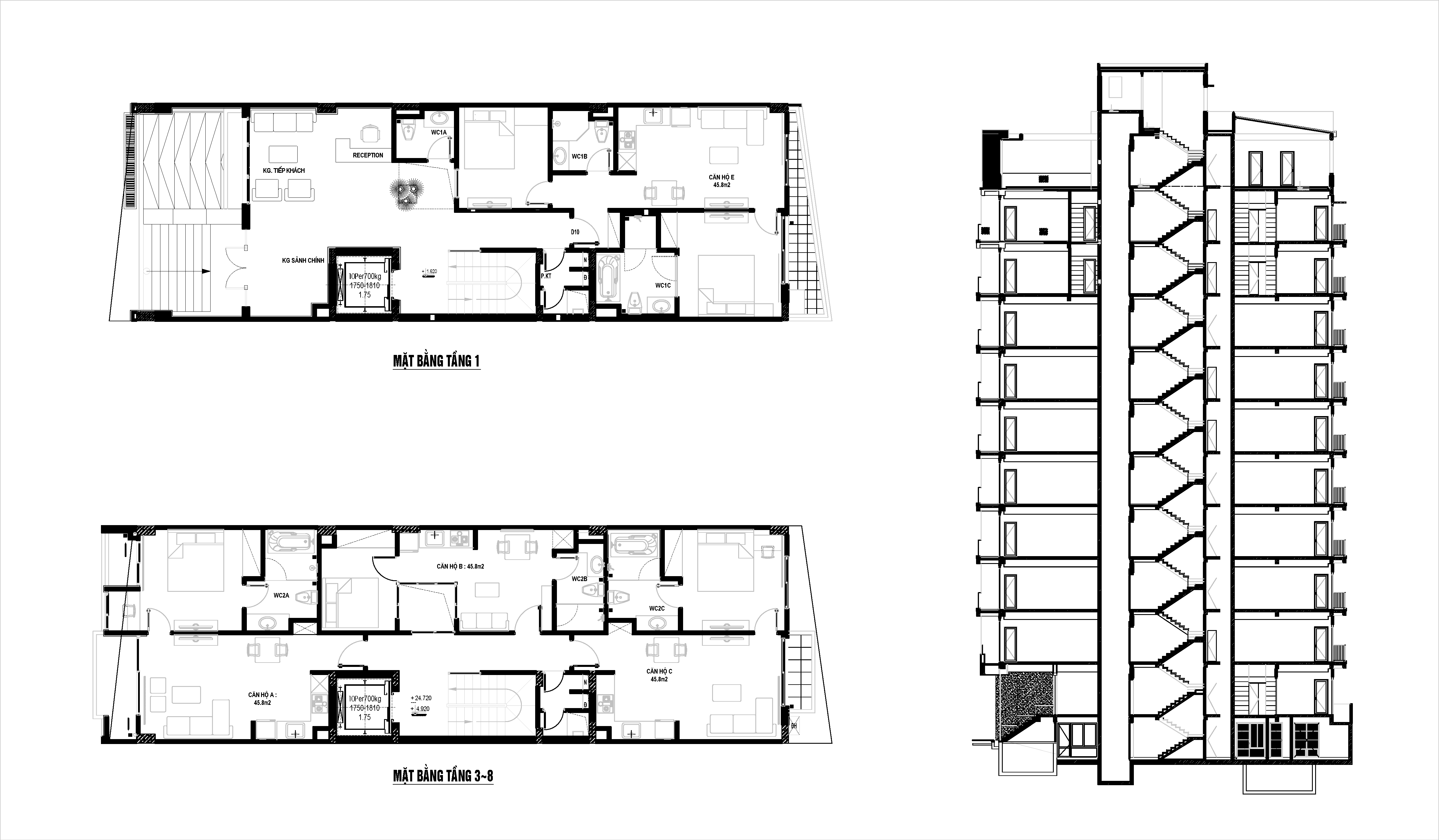
            The apartment provides housing for foreiner, mostly Japanese, Chinese and Korean, who are are interested in a live/ work/ no-commute lifestyle. The project proposes 51 apartments between 30 and 55 m²
            • Loại công trình
              Chung Cư
            • Hạng mục
              Kiến trúc & nội thất
            • Phong cách
              Hiện đại
            • Trạng thái
              Ảnh 3D
            • Phần mềm
              3D Max
            • Vị trí
              Hà Nội, Cầu Giấy

            Đã có 0 người đánh giá dự án này

            Đánh giá
            • 0
              0 đánh giá từ chủ nhà
            • 0
              0 đánh giá từ chuyên gia
            Xem chi tiết
            Có 0 người đánh giá
            Chia sẻ dự án
            Sản phẩm đề xuất
            no-image

            Máy Lọc Nước RO HJSR03A01-121

            4.660.000 Đánh giá 4
            no-image

            MÁY TẠO ẨM CAO CẤP THỤY SĨ BONECO U200

            4.300.000 Đánh giá 0
            no-image

            Máy Khoan Tốc Độ Cao ( Makita 6501)

            2.109.000 Đánh giá 0
            no-image

            Kệ gia vị đa năng kèm 2 ống đũa, móc treo Moen - KAC0104SL

            2.080.000 Đánh giá 4
            no-image

            Máy Làm Sữa Hạt Đa Năng MK-240A

            1.150.000 Đánh giá 0
            Tìm kiếm dự án
            Địa điểm
            Loại công trình
            Hạng mục thiết kế
            Phong cách thiết kế
            Bản vẽ
            Không gian
            Nhận E-book & Tài liệu chuyên môn từ KIENTRUC.com
            Cập nhật xu hướng thiết kế, thư viện vật liệu, chi tiết kỹ thuật và kinh nghiệm triển khai dự án dành cho Kiến trúc sư.
            FOLLOW US

            no-image
            © 2015 - 2026 KIENTRUC.com jsc. All right reserved
            • CHUYÊN GIA
            • DỰ ÁN
            • CỘNG ĐỒNG
            • SẢN PHẨM
            • LIÊN HỆ