KIENTRUC.com
tạiShowroom
    tạiKiến Trúc Sư
      tạiDự án
        tạiTạp chí
          tạiCộng đồng
            • CHUYÊN GIA
            • DỰ ÁN
            • CỘNG ĐỒNG
            • SẢN PHẨM
            • VIỆC LÀM
            • TRANG CHỦ
            • CHUYÊN GIA
            • DỰ ÁN
            • CỘNG ĐỒNG
            • SẢN PHẨM
            • VIỆC LÀM
            Đăng nhập Đăng ký
            © 2015-2026 KIENTRUC.com jsc.
            All right reserved
            1. Nhà Mặt Phố
            2. Chuyên gia

            BT C_House

            no-image
            no-image
            no-image
            no-image
            no-image

            PROFESSIONAL | DỰ ÁN

            no-image

            BNH-House

            7 6
            Nhà Mặt Phố
            no-image

            Chùa làng Gia Thụy

            13 6
            Công Trình Công Cộng
            no-image

            BT C_House

            3 6
            Nhà Mặt Phố
            no-image
            Kiến trúc sư Phạm Đình Quyết
            Bắc Ninh, Thuận Thành
            Nhóm thiết kế
            • no-image
              Phạm Đình Quyết Chủ trì thiết kế
            Thông tin dự án
            • Loại công trình
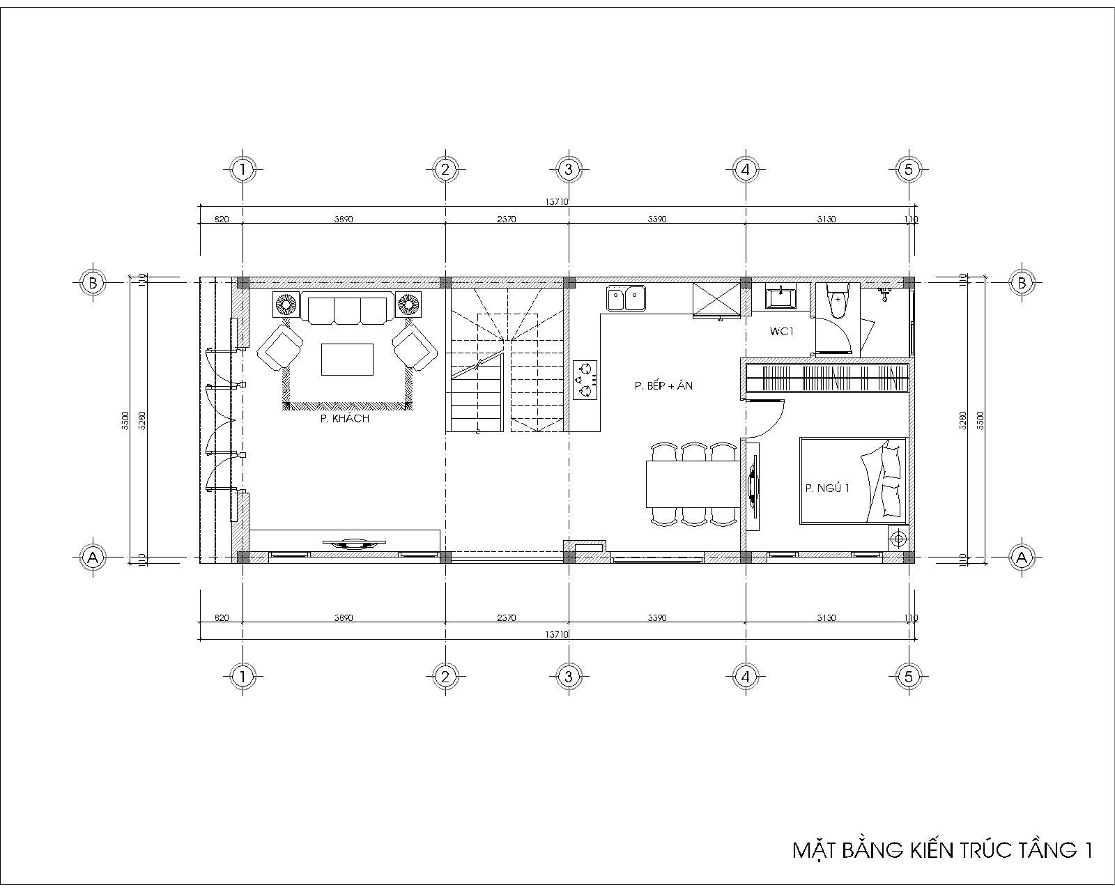
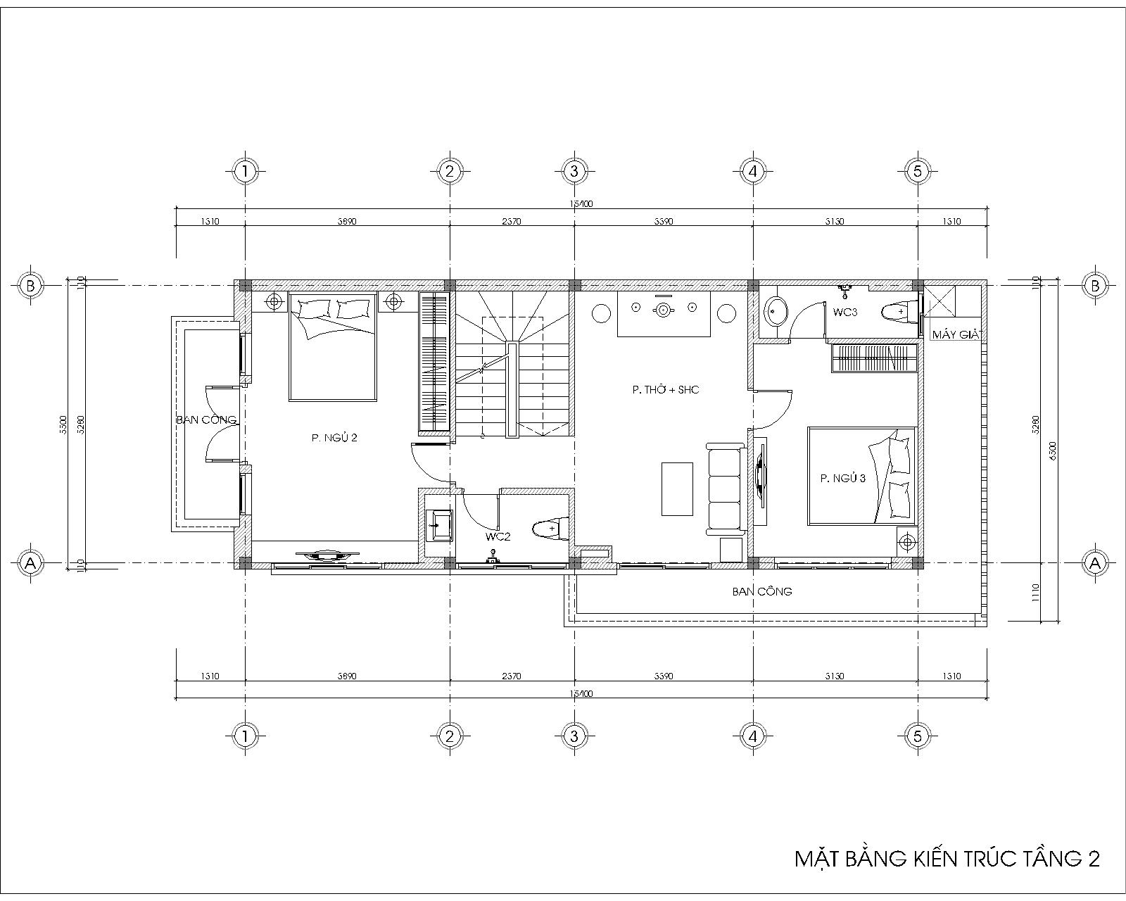
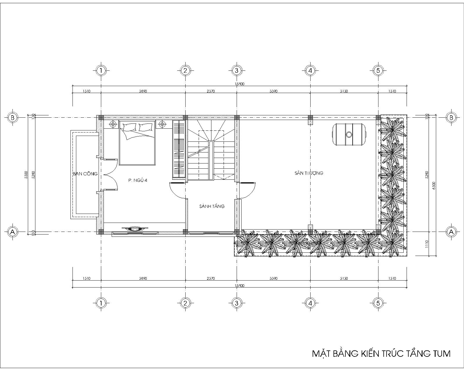
              Nhà Mặt Phố
            • Hạng mục
              Ngoại thất
            • Phong cách
              Hiện đại
            • Trạng thái
              Ảnh 3D
            • Tầng
              3 tầng
            • Vị trí
              Bắc Ninh, Thuận Thành

            Đã có 0 người đánh giá dự án này

            Đánh giá
            • 0
              0 đánh giá từ chủ nhà
            • 0
              0 đánh giá từ chuyên gia
            Xem chi tiết
            Có 0 người đánh giá
            Chia sẻ dự án
            Sản phẩm đề xuất
            no-image

            Phễu Thoát Sàn MAGdrain Pc30q3-B

            569.000 Đánh giá 7
            no-image

            Ghế ăn KENNEDY KDC604

            5.800.000 Đánh giá 0
            no-image

            Tủ Bảo Quản Rượu Vang Mini Độc Lập Kadeka 12 Chai KP115ER

            0 Đánh giá 0
            no-image

            Phễu Thoát Sàn MAGdrain PC30Q3-B

            599.000 Đánh giá 14
            no-image

            Máy xay rác Moen EX50MCL

            9.000.000 Đánh giá 0
            Tìm kiếm dự án
            Địa điểm
            Loại công trình
            Hạng mục thiết kế
            Phong cách thiết kế
            Bản vẽ
            Không gian
            Nhận E-book & Tài liệu chuyên môn từ KIENTRUC.com
            Cập nhật xu hướng thiết kế, thư viện vật liệu, chi tiết kỹ thuật và kinh nghiệm triển khai dự án dành cho Kiến trúc sư.
            FOLLOW US

            no-image
            © 2015 - 2026 KIENTRUC.com jsc. All right reserved
            • CHUYÊN GIA
            • DỰ ÁN
            • CỘNG ĐỒNG
            • SẢN PHẨM
            • LIÊN HỆ