Tham gia KIENTRUC để nhận tư vấn mới nhất
Khi đăng kí, tôi thừa nhận và đồng ý với điều khoản sử dụng và chính sách bảo mật của KIENTRUC.com
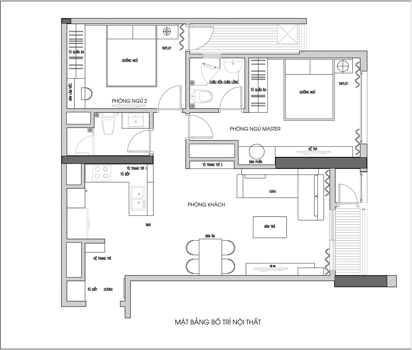
Apartment 75sq in Park Hill








PROFESSIONAL | DỰ ÁN
Nhóm thiết kế
-
Lê Hoan Thiết kế nội thất
Thông tin dự án
-
Loại công trìnhChung Cư
-
Hạng mụcNội thất
-
Phong cáchHiện đại
-
Trạng tháiẢnh 3D
-
Vị tríHà Nội, Hai Bà Trưng
Đã có 0 người đánh giá dự án này
Đánh giá
-
00 đánh giá từ chủ nhà
-
00 đánh giá từ chuyên gia
Có 0 người đánh giá
Chia sẻ dự án
Sản phẩm đề xuất