KIENTRUC.com
tạiShowroom
    tạiKiến Trúc Sư
      tạiDự án
        tạiTạp chí
          tạiCộng đồng
            • CHUYÊN GIA
            • DỰ ÁN
            • CỘNG ĐỒNG
            • SẢN PHẨM
            • VIỆC LÀM
            • TRANG CHỦ
            • CHUYÊN GIA
            • DỰ ÁN
            • CỘNG ĐỒNG
            • SẢN PHẨM
            • VIỆC LÀM
            Đăng nhập Đăng ký
            © 2015-2026 KIENTRUC.com jsc.
            All right reserved
            1. Nhà Mặt Phố
            2. Chuyên gia

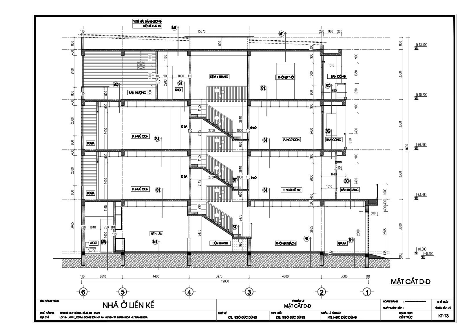
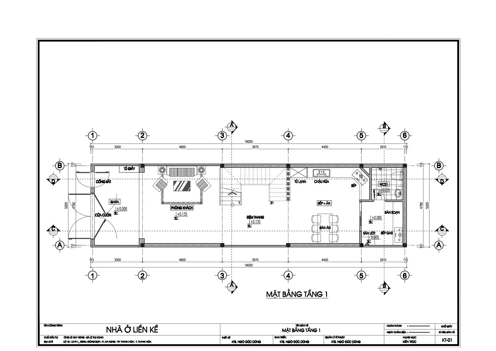
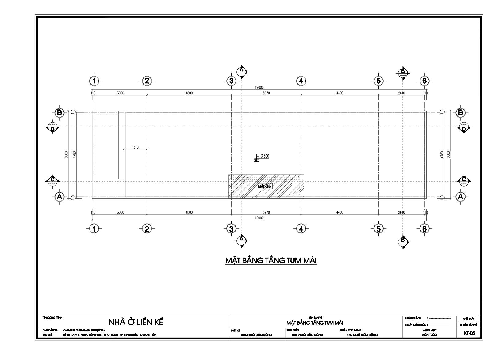
            Nhà ở liền kề _ 3 tầng _ 5x19 m

            no-image
            no-image
            no-image
            no-image
            no-image
            no-image
            no-image
            no-image
            no-image
            no-image
            no-image

            PROFESSIONAL | DỰ ÁN

            no-image

            Nhà ở liền kề đầu ve _ 6x18 m (PHONG CÁCH SCANDINAVIAN - BẮC ÂU)

            1 14
            Nhà Mặt Phố
            no-image

            Nhà ở liền kề _ 3 tầng _ 5x19 m

            2 11
            Nhà Mặt Phố
            no-image

            Nhà ở 1 tầng

            1 11
            Biệt Thự
            no-image
            Kiến trúc sư Ngô Đức Dũng
            Thanh Hóa, Thanh Hóa
            Nhóm thiết kế
            • no-image
              Ngô Đức Dũng Chủ trì thiết kế
            Thông tin dự án
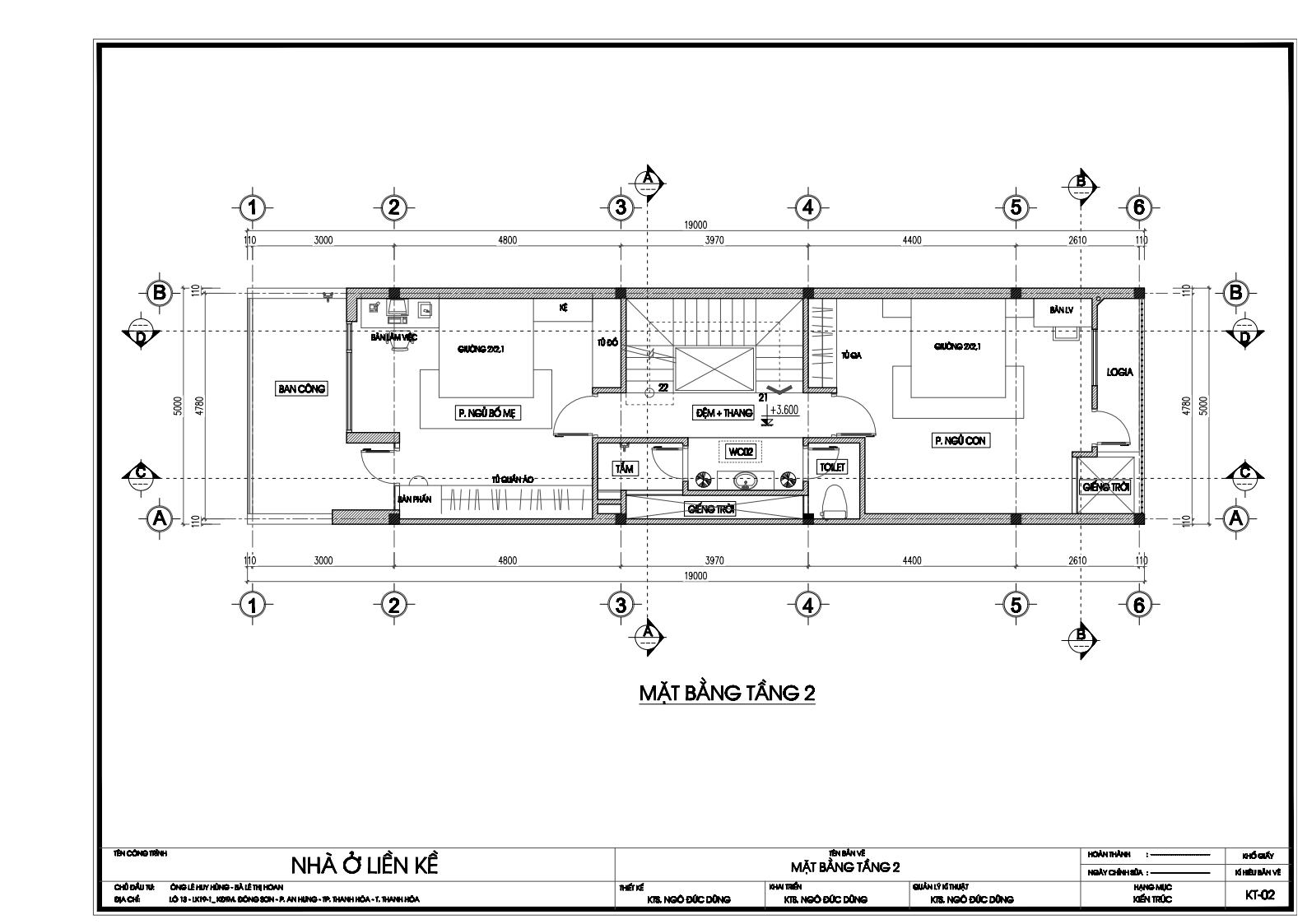
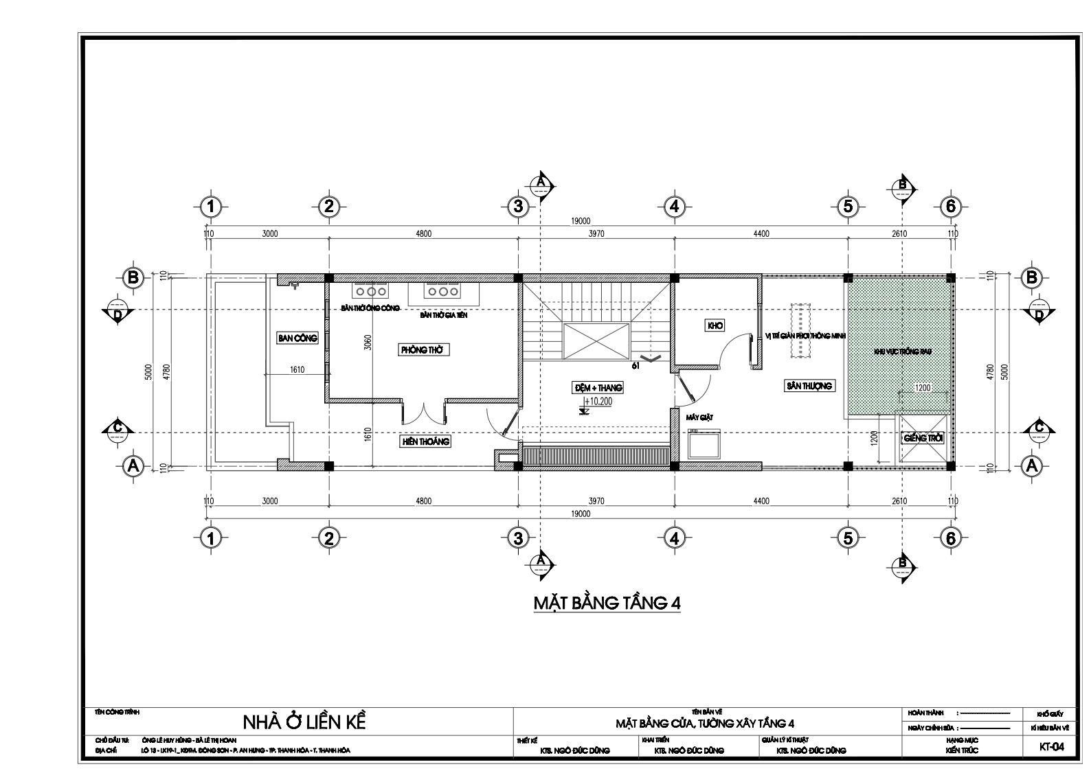
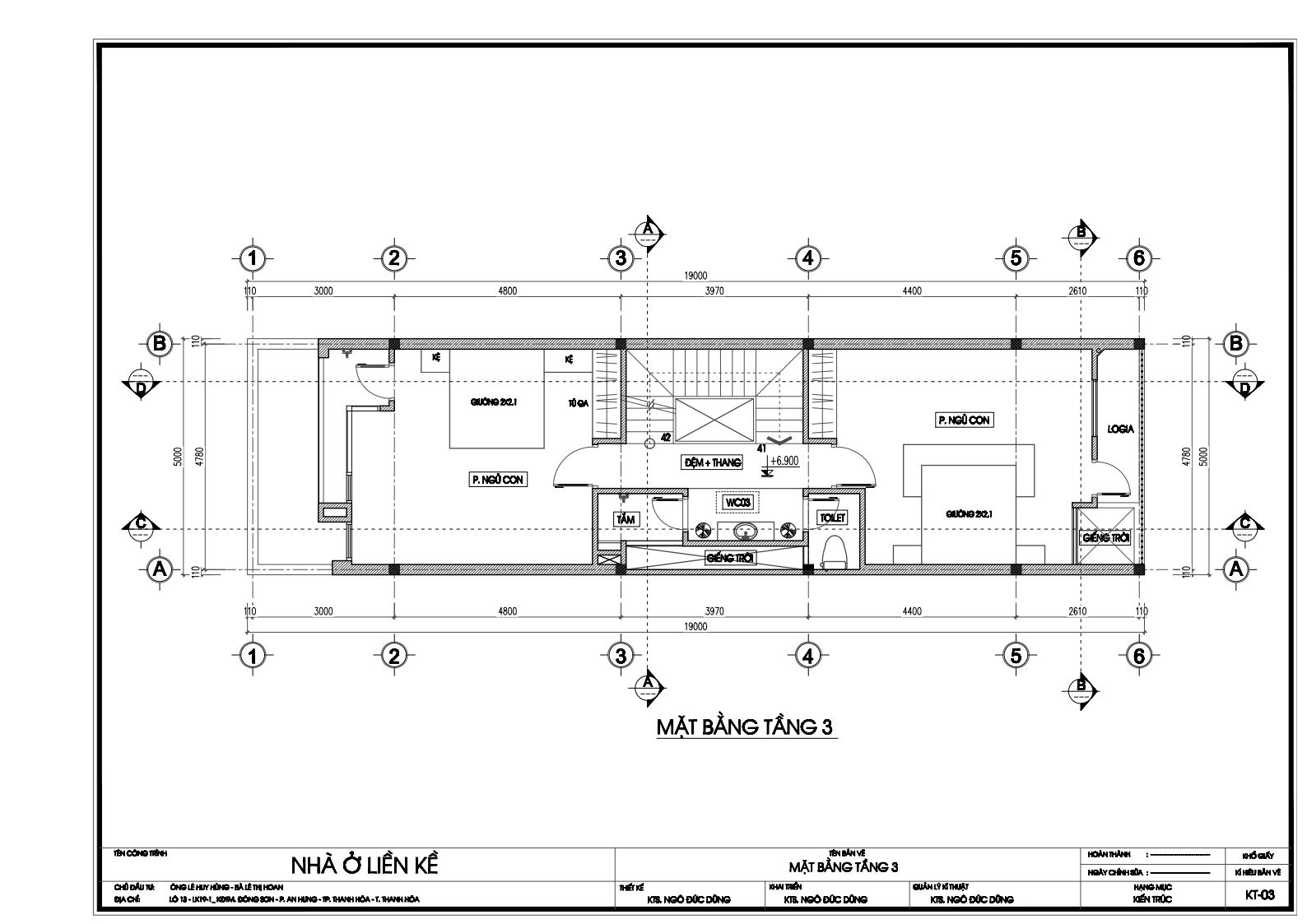
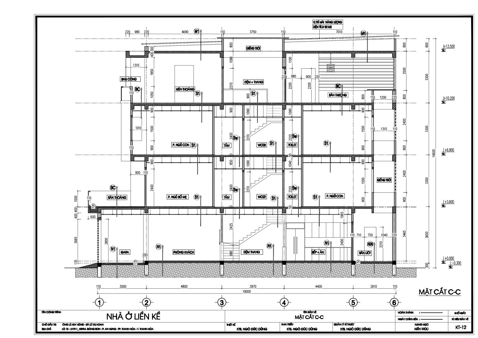
            Thiết kế kiến trúc - ngoại thất nhà ở liền kề Địa điểm xây dựng: Lô 13 - LK19-1- Khu đô thị mới Đông sơn - Tp. Thanh Hóa. Diện tích khu đất: 95 m2 (5x19 m) Hướng Tây Bắc. Tổng diện tích sàn xây dựng: 255 m2 Quy mô thiêt kế: 4 phòng ngủ, 1 phòng khách, 1 thờ , 2 bếp ( 1 bếp ngoài trời) , 1 phòng ăn, 3 vệ sinh chung, 1
            • Loại công trình
              Nhà Mặt Phố
            • Tầng
              3 tầng
            • Hạng mục
              Kiến trúc & nội thất
            • Phong cách
              Hiện đại
            • Trạng thái
              Ảnh 3D
            • Phần mềm
              3D Max
            • Vị trí
              Thanh Hóa, Thanh Hóa

            Đã có 0 người đánh giá dự án này

            Đánh giá
            • 0
              0 đánh giá từ chủ nhà
            • 0
              0 đánh giá từ chuyên gia
            Xem chi tiết
            Có 0 người đánh giá
            Chia sẻ dự án
            Sản phẩm đề xuất
            no-image

            Phễu Thoát Sàn MAGdrain Pc30q3-B

            569.000 Đánh giá 7
            no-image

            Ghế ăn KENNEDY KDC604

            5.800.000 Đánh giá 0
            no-image

            Tủ Bảo Quản Rượu Vang Mini Độc Lập Kadeka 12 Chai KP115ER

            0 Đánh giá 0
            no-image

            Phễu Thoát Sàn MAGdrain PC30Q3-B

            599.000 Đánh giá 14
            no-image

            Máy xay rác Moen EX50MCL

            9.000.000 Đánh giá 0
            Tìm kiếm dự án
            Địa điểm
            Loại công trình
            Hạng mục thiết kế
            Phong cách thiết kế
            Bản vẽ
            Không gian
            Nhận E-book & Tài liệu chuyên môn từ KIENTRUC.com
            Cập nhật xu hướng thiết kế, thư viện vật liệu, chi tiết kỹ thuật và kinh nghiệm triển khai dự án dành cho Kiến trúc sư.
            FOLLOW US

            no-image
            © 2015 - 2026 KIENTRUC.com jsc. All right reserved
            • CHUYÊN GIA
            • DỰ ÁN
            • CỘNG ĐỒNG
            • SẢN PHẨM
            • LIÊN HỆ