Tham gia KIENTRUC để nhận tư vấn mới nhất
Khi đăng kí, tôi thừa nhận và đồng ý với điều khoản sử dụng và chính sách bảo mật của KIENTRUC.com
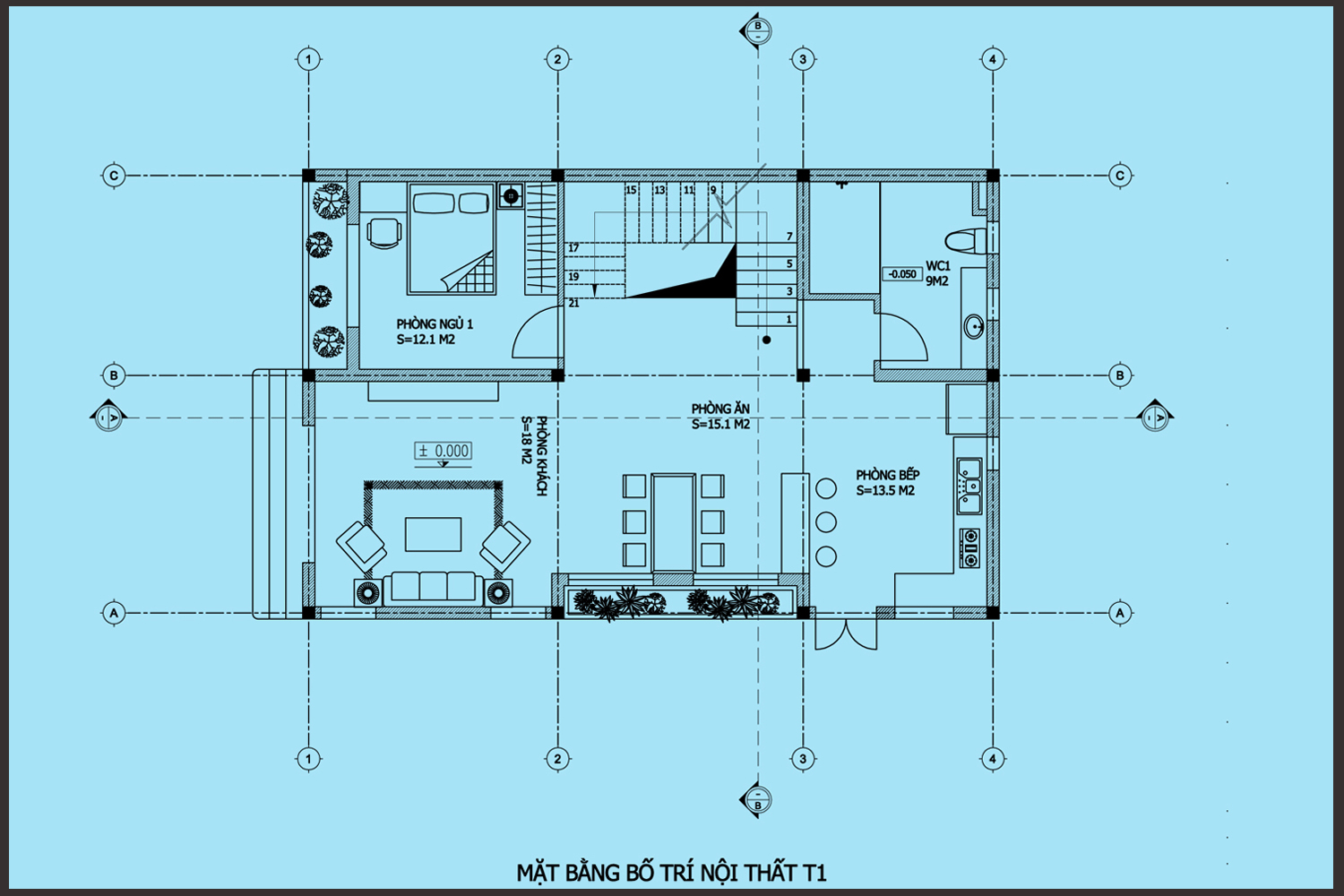
NHÀ PHỐ 2 MẶT TIỀN






PROFESSIONAL | DỰ ÁN
Nhóm thiết kế
-
Hoàng Liêm Chủ trì thiết kế
Thông tin dự án
Diện tích sàn tầng 1: 106 m2
Mặt tiền: 8.9 m.
Địa điểm công trình: Sóc Sơn, Hà Nội
-
Loại công trìnhNhà
-
Tầng3 tầng
-
Hạng mụcNội thất
-
Phong cáchHiện đại
-
Trạng tháiẢnh 3D
-
Phần mềm3D Max
-
Vị tríHà Nội, Sóc Sơn
Đã có 0 người đánh giá dự án này
Đánh giá
-
00 đánh giá từ chủ nhà
-
00 đánh giá từ chuyên gia
Có 0 người đánh giá
Chia sẻ dự án
Sản phẩm đề xuất