Tham gia KIENTRUC để nhận tư vấn mới nhất
Khi đăng kí, tôi thừa nhận và đồng ý với điều khoản sử dụng và chính sách bảo mật của KIENTRUC.com
OL Vietnam Office










PROFESSIONAL | DỰ ÁN
Nhóm thiết kế
-
Bản Thảo Studio Chủ trì thiết kế
Thông tin dự án
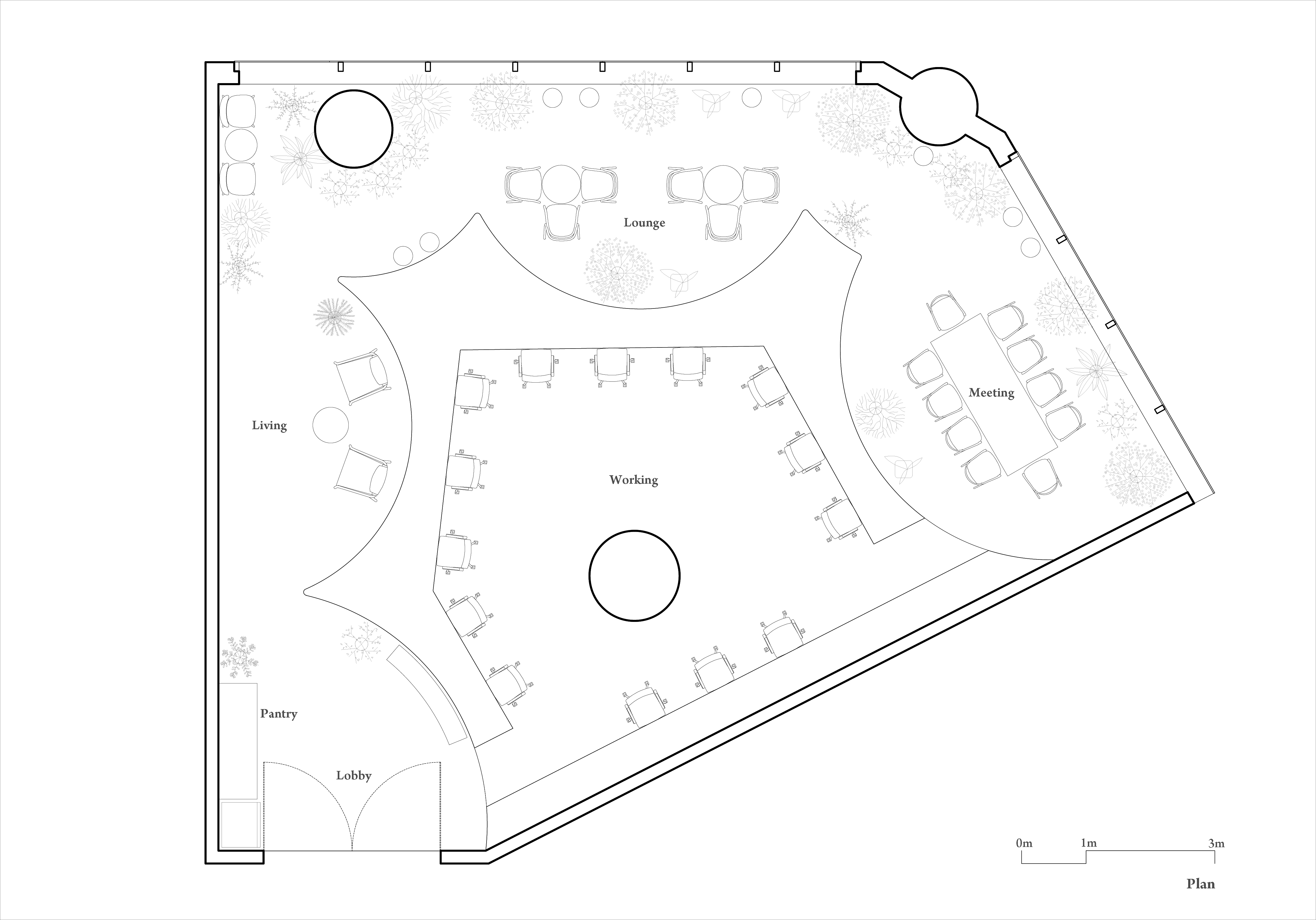
Dự án thiết kế văn phòng công ty công nghệ của Mỹ được team Bản Thảo hoàn thành vào năm 2018.
Với nhiệm vụ đặt ra là tạo ra được một môi trường làm việc thoải mái, kích thích sự sáng tạo, phát huy tối đa hiệu quả làm việc của nhân viên ở một công ty công nghệ hàng đầu, chúng tôi đã tạo ra một khu vườn nhỏ, là ranh giới mềm mại ngăn cách với thế giới sôi động bên ngoài và ôm lấy toàn bộ văn phòng mang đến một không gian thư giãn cùng nguồn năng lượng tích cực.
-
Loại công trìnhVăn Phòng
-
Hạng mụcNội thất
-
Phong cáchHiện đại
-
Trạng tháiẢnh 3D
-
Phần mềm3D Max
-
Vị tríHồ Chí Minh, 1
Đã có 0 người đánh giá dự án này
Đánh giá
-
00 đánh giá từ chủ nhà
-
00 đánh giá từ chuyên gia
Có 0 người đánh giá
Chia sẻ dự án
Sản phẩm đề xuất