KIENTRUC.com
tạiShowroom
    tạiKiến Trúc Sư
      tạiDự án
        tạiTạp chí
          tạiCộng đồng
            • CHUYÊN GIA
            • DỰ ÁN
            • CỘNG ĐỒNG
            • SẢN PHẨM
            • VIỆC LÀM
            • TRANG CHỦ
            • CHUYÊN GIA
            • DỰ ÁN
            • CỘNG ĐỒNG
            • SẢN PHẨM
            • VIỆC LÀM
            Đăng nhập Đăng ký
            © 2015-2026 KIENTRUC.com jsc.
            All right reserved
            1. Nhà Mặt Phố
            2. Chuyên gia

            nhà măt phố mặt tiền 5m

            no-image
            no-image
            no-image
            no-image
            no-image
            no-image

            PROFESSIONAL | DỰ ÁN

            no-image

            nhà măt phố mặt tiền 5m

            0 6
            Nhà Mặt Phố
            no-image

            Homestay Mr.Huy

            10 6
            Khách Sạn
            no-image

            Biệt Thự vườn Bến Cát

            17 6
            Biệt Thự
            no-image
            Kiến trúc sư Phan Đức Anh
            Hà Nội, Từ Liêm
            Nhóm thiết kế
            • no-image
              Phan Đức Anh Chủ trì thiết kế
            Thông tin dự án
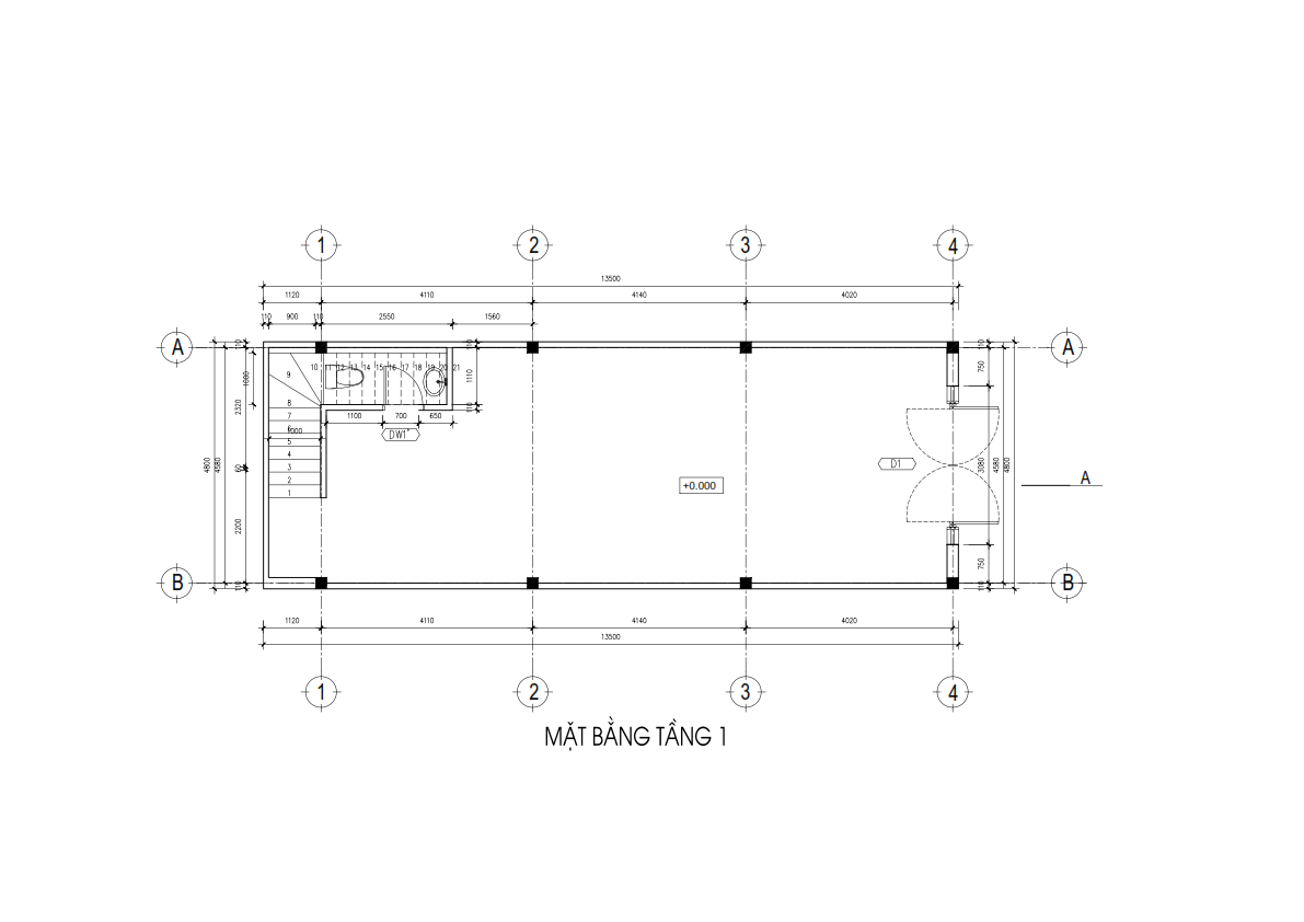
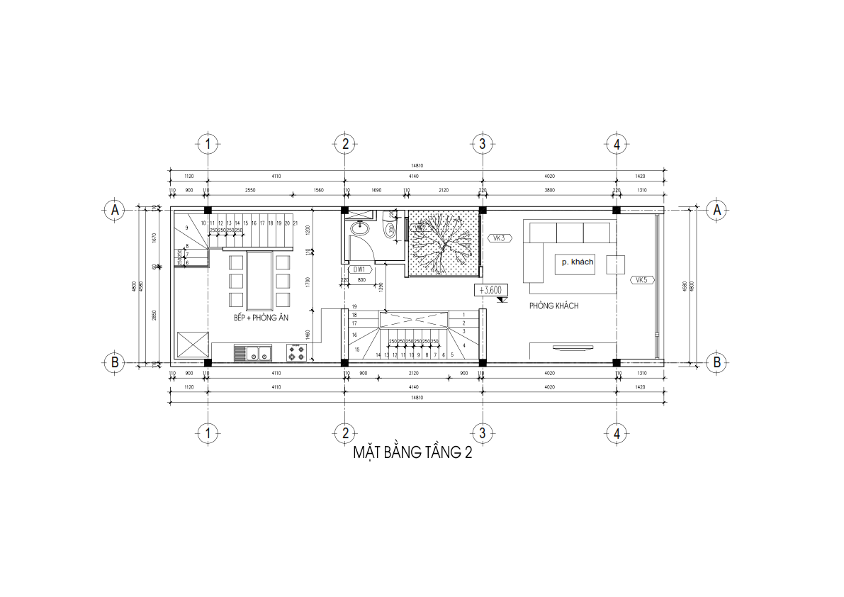
            nhà mặt phố 5 tầng sàn 70m2
            • Loại công trình
              Nhà Mặt Phố
            • Tầng
              5 tầng
            • Hạng mục
              Thiết kế & xây dựng
            • Phong cách
              Hiện đại
            • Trạng thái
              Ảnh 3D
            • Phần mềm
              3D Max
            • Vị trí
              Hà Nội, Hà Đông

            Đã có 1 người đánh giá dự án này

            Đánh giá
            • 0
              0 đánh giá từ chủ nhà
            • 5
              1 đánh giá từ chuyên gia
            Xem chi tiết
            Có 1 người đánh giá
            Chia sẻ dự án
            Sản phẩm đề xuất
            no-image

            Ghế ăn SENZA KDC836

            9.300.000 Đánh giá 0
            no-image

            Máy Lọc Không Khí Để Bàn KZ120G-A01

            2.460.000 Đánh giá 7
            no-image

            Máy pha cà phê tự động Espresso Italia Winci CM3000

            2.590.000 Đánh giá 0
            no-image

            Sofa băng da thật CANALETTO 3422

            0 Đánh giá 0
            no-image

            Phễu Thoát Sàn MAGdrain C21Q6-G

            1.410.000 Đánh giá 4
            Tìm kiếm dự án
            Địa điểm
            Loại công trình
            Hạng mục thiết kế
            Phong cách thiết kế
            Bản vẽ
            Không gian
            Nhận E-book & Tài liệu chuyên môn từ KIENTRUC.com
            Cập nhật xu hướng thiết kế, thư viện vật liệu, chi tiết kỹ thuật và kinh nghiệm triển khai dự án dành cho Kiến trúc sư.
            FOLLOW US

            no-image
            © 2015 - 2026 KIENTRUC.com jsc. All right reserved
            • CHUYÊN GIA
            • DỰ ÁN
            • CỘNG ĐỒNG
            • SẢN PHẨM
            • LIÊN HỆ