KIENTRUC.com
tạiShowroom
    tạiKiến Trúc Sư
      tạiDự án
        tạiTạp chí
          tạiCộng đồng
            • CHUYÊN GIA
            • DỰ ÁN
            • CỘNG ĐỒNG
            • SẢN PHẨM
            • VIỆC LÀM
            • TRANG CHỦ
            • CHUYÊN GIA
            • DỰ ÁN
            • CỘNG ĐỒNG
            • SẢN PHẨM
            • VIỆC LÀM
            Đăng nhập Đăng ký
            © 2015-2026 KIENTRUC.com jsc.
            All right reserved
            1. Nhà Mặt Phố
            2. Chuyên gia

            Nhà phố 5 tầng - Tân Phú

            no-image
            no-image
            no-image
            no-image
            no-image
            no-image

            PROFESSIONAL | DỰ ÁN

            no-image

            Nhà phố 5 tầng - Tân Phú

            0 6
            Nhà Mặt Phố
            no-image

            Cải tạo biệt thự Phú Mỹ Hưng

            0 6
            Biệt Thự
            no-image

            Tòa nhà văn phòng Timberland

            19 6
            Văn Phòng
            no-image
            Kiến trúc sư Đỗ Lưu Trung Minh
            Hồ Chí Minh, 12
            Nhóm thiết kế
            • no-image
              Đỗ Lưu Trung Minh Thiết kế 3D
            Thông tin dự án
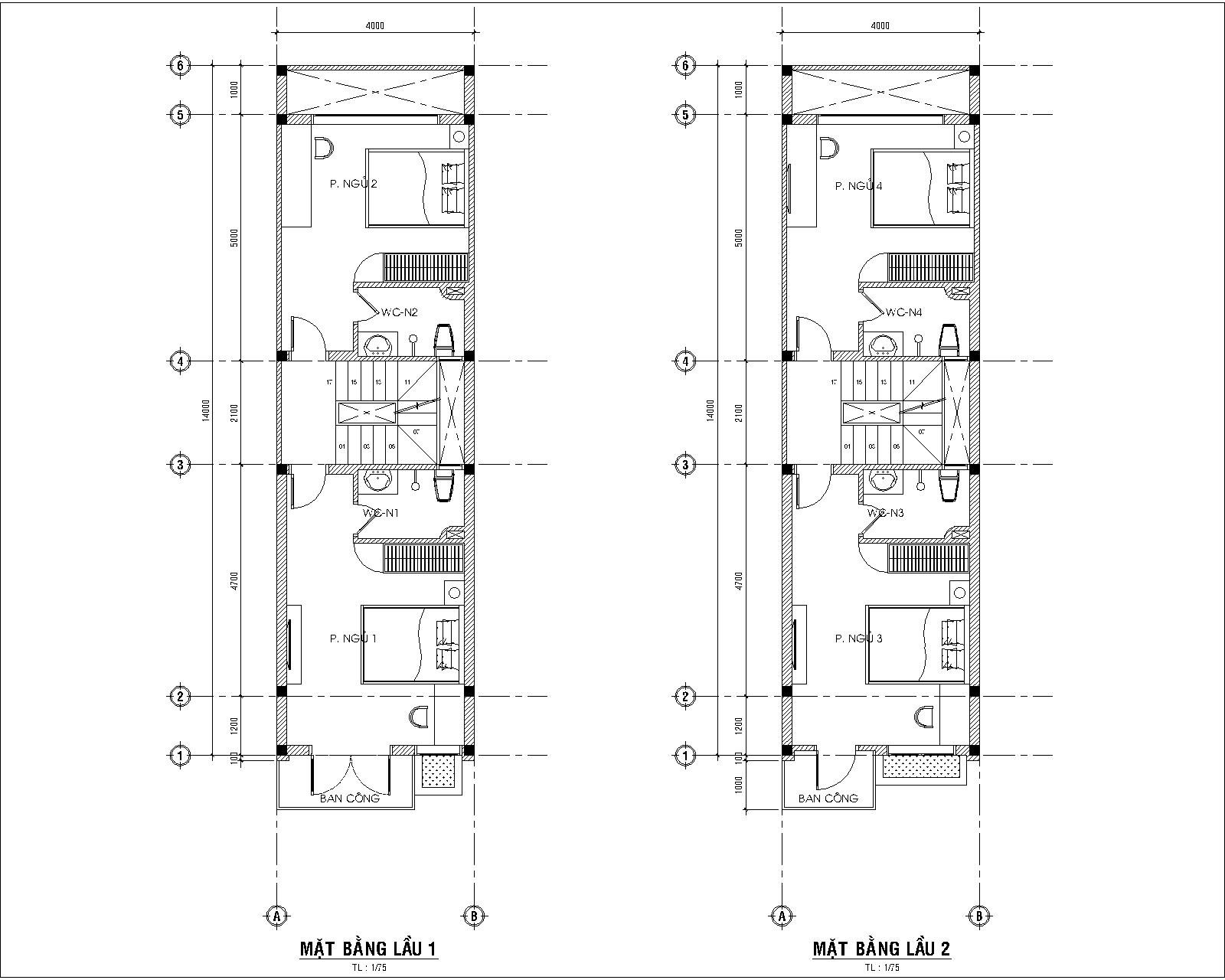
            Công trình : Nhà phố 4x14 (5 tầng) CĐT : Mr. Sơn ĐC : Tân Phú, TPHCM ĐVTK : Công ty TNHH You & Me Architecture. Hotline : 0963 90 99 33 - 077 77 88 994
            • Loại công trình
              Nhà Mặt Phố
            • Tầng
              5 tầng
            • Hạng mục
              Thiết kế & xây dựng
            • Phong cách
              Hiện đại
            • Trạng thái
              Ảnh 3D
            • Phần mềm
              SketchUp
            • Vị trí
              Hồ Chí Minh, Tân Phú

            Đã có 0 người đánh giá dự án này

            Đánh giá
            • 0
              0 đánh giá từ chủ nhà
            • 0
              0 đánh giá từ chuyên gia
            Xem chi tiết
            Có 0 người đánh giá
            Chia sẻ dự án
            Sản phẩm đề xuất
            no-image

            Máy Lọc Nước RO HJSR03A01-121

            4.660.000 Đánh giá 4
            no-image

            MÁY TẠO ẨM CAO CẤP THỤY SĨ BONECO U200

            4.300.000 Đánh giá 0
            no-image

            Máy Khoan Tốc Độ Cao ( Makita 6501)

            2.109.000 Đánh giá 0
            no-image

            Kệ gia vị đa năng kèm 2 ống đũa, móc treo Moen - KAC0104SL

            2.080.000 Đánh giá 4
            no-image

            Máy Làm Sữa Hạt Đa Năng MK-240A

            1.150.000 Đánh giá 0
            Tìm kiếm dự án
            Địa điểm
            Loại công trình
            Hạng mục thiết kế
            Phong cách thiết kế
            Bản vẽ
            Không gian
            Nhận E-book & Tài liệu chuyên môn từ KIENTRUC.com
            Cập nhật xu hướng thiết kế, thư viện vật liệu, chi tiết kỹ thuật và kinh nghiệm triển khai dự án dành cho Kiến trúc sư.
            FOLLOW US

            no-image
            © 2015 - 2026 KIENTRUC.com jsc. All right reserved
            • CHUYÊN GIA
            • DỰ ÁN
            • CỘNG ĐỒNG
            • SẢN PHẨM
            • LIÊN HỆ