Tham gia KIENTRUC để nhận tư vấn mới nhất
Khi đăng kí, tôi thừa nhận và đồng ý với điều khoản sử dụng và chính sách bảo mật của KIENTRUC.com
NHÀ THẰNG BẠN






















PROFESSIONAL | DỰ ÁN
Nhóm thiết kế
-
Chu Đinh Xuân Khánh Chủ trì thiết kế
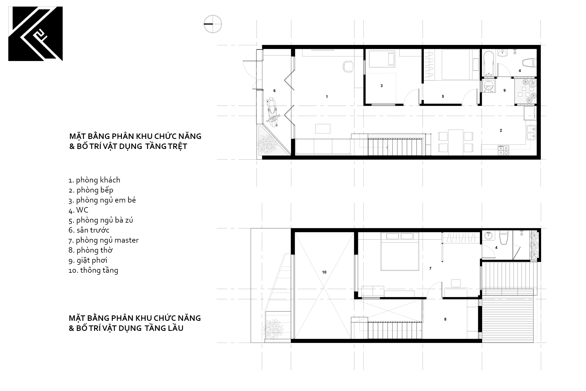
Thông tin dự án
SỰ HOÀN HẢO TRONG VIỆC DUNG HÒA GIỮA THIẾT KẾ VÀ THỰC TẾ.
-
Loại công trìnhNhà Mặt Phố
-
Tầng2 tầng
-
Hạng mụcThiết kế & xây dựng
-
Phong cáchHiện đại
-
Trạng tháiẢnh 3D
-
Phần mềm3D Max
-
Vị tríKhánh Hòa, Nha Trang
Đã có 1 người đánh giá dự án này
Đánh giá
-
00 đánh giá từ chủ nhà
-
51 đánh giá từ chuyên gia
Có 1 người đánh giá
Chia sẻ dự án
Sản phẩm đề xuất